街と暮らしに豊かさをもたらすバッファーゾーン
グランデュオ学芸大学4
施工中
一棟RCマンション
所在地: 東京都目黒区鷹番3-18Google MAP
2026.07.31完成予定
進捗度60
- 設計中
- 施工中
- 完成
UPDATED INFO.
- 2025.09.12グランデュオ学芸大学4を契約済に更新しました
- 2025.10.10平面図を更新しました
- 2025.11.05CGを更新しました
設計のこだわり
本計画は、学芸大学駅から徒歩3分、店舗と住居が混在する人通りの多い賑やかなエリアに位置します。街に活気をもたらしながらも、落ち着いた住環境が得られる都市型の商住複合建築です。バルコニーには緑やルーバーによるスクリーンを施し、街と生活との適度な距離感を保つバッファーゾーンとして機能させています。また、アスファルトが広がる雑多な都市空間において、建築に取り込まれた緑は人を惹きつけるランドマークとなり、街に対する建築からのギフトとも言える存在になります。建築と街が互いの魅力を引き出し、共に豊かさを享受し合う、そんな関係性の実現を目指して計画を進めました。
周辺分析:街を読み解く
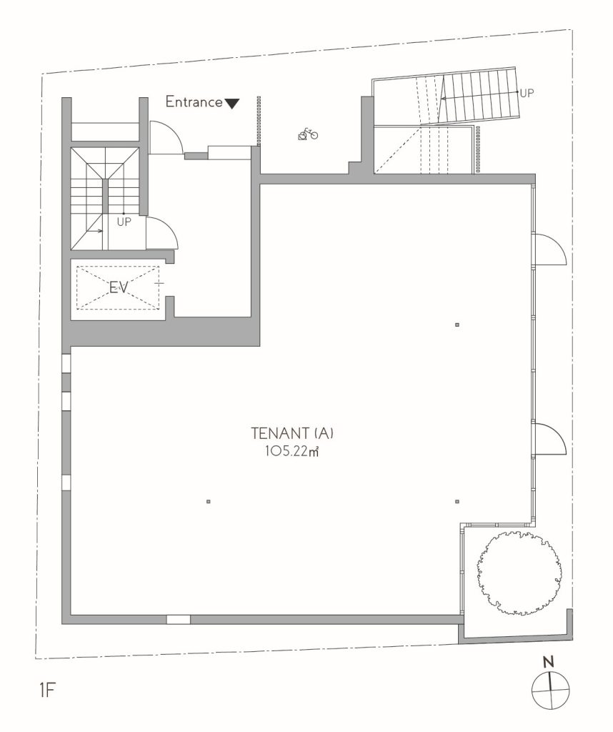
駅西口から1〜2分圏内には、小型の飲食店や利便施設が集積し、3〜5分圏でも飲食店の多さは変わらず、美容系店舗やクリニック、学習塾なども多く見受けられます。2階に店舗を構える事例も多いため、本計画においても2階店舗の展開可能性は高いと判断しました。
また、周辺には新築の商業施設が少なく、飲食店も小規模なものが中心です。30坪を超える新築物件という点は、本計画ならではの大きな強みとなります。
近隣にはコインパーキングもあるため、車利用の来客も想定し、1階にはイタリアンなどの飲食店、2階には美容室やサロンなどを配置することで、この土地にふさわしい構成と建物デザインとの調和が図れると考えました。
水平線と垂直面を掛け合わした柔らかで奥行きのあるファサード

賑やかな街並みに馴染むよう、整然とした佇まいではなく、軽やかでリズムのあるファサードを目指しました。スラブと低木による水平ラインをずらすことで動きを生み出し、バルコニー先端にはルーバー、植栽スクリーン、シンボルツリーを配置。シンボルツリーは遠景からのアイストップとなり、植栽スクリーンは潤いを、木板張りの軒裏は温かみを添えています。
見る距離や角度によって、街を背景に多様な表情を見せるファサードデザインとしました。
バルコニー:都市と居住のバッファーゾーン

バルコニーに設けた植栽スクリーンやルーバー、シンボルツリーは、都市の喧騒や視線を和らげ、居住空間との間に多層的な距離感を生み出します。
街の賑わいや日差しの変化に応じて、LDK内での居場所を細かに変えたり、バルコニーへ出たり、奥に引きこもったりと、室名に縛られない自由な空間の使い方が可能となります。自身で居場所を選び、街との関係性をコントロールする。そんな都市的でアクティブなライフスタイルを支える設計です。
建築全体を調和させるマテリアルとテクスチャ

無機質でクールな質感のコンクリートを基調としながらも、杉板型枠による表情や、軒天の木板、木製ルーバー、植物の蔦といった自然素材を組み合わせることで、温かみと親しみやすさのある外観を演出しました。
蔦やルーバー、杉板の向きや垂直性を統一するなど、ディテールに細やかな配慮を重ね、多様なマテリアルの調和を実現しています。
計画地

東急東横線 学芸大学駅 徒歩3分
周辺施設
買い物・飲食店
- まいばすけっと 鷹番3丁目店 徒歩約1分
- トモズ 学芸大学店 徒歩約2分
- ファミリーマート 学芸大学駅西店 徒歩約2分
- マクドナルド 学芸大店 徒歩約2分
レジャー・施設
- 碑文谷公園 徒歩約5分
- スイング碑文谷 徒歩約12分
- 目黒区立目黒本町図書館 徒歩約13分
その他
- きらぼし銀行 学芸大学駅前支店 徒歩約1分
- 今井医院 徒歩約2分
- 碑文谷警察署 学芸大学駅前交番 徒歩約3分
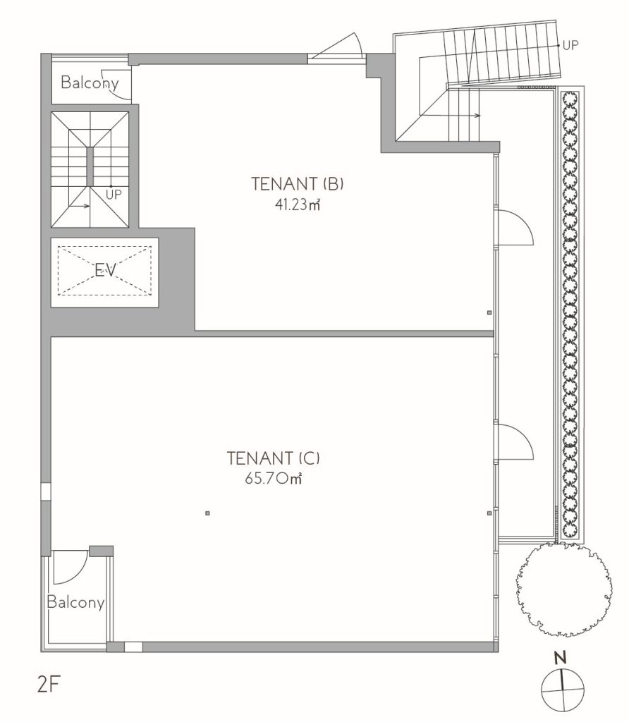
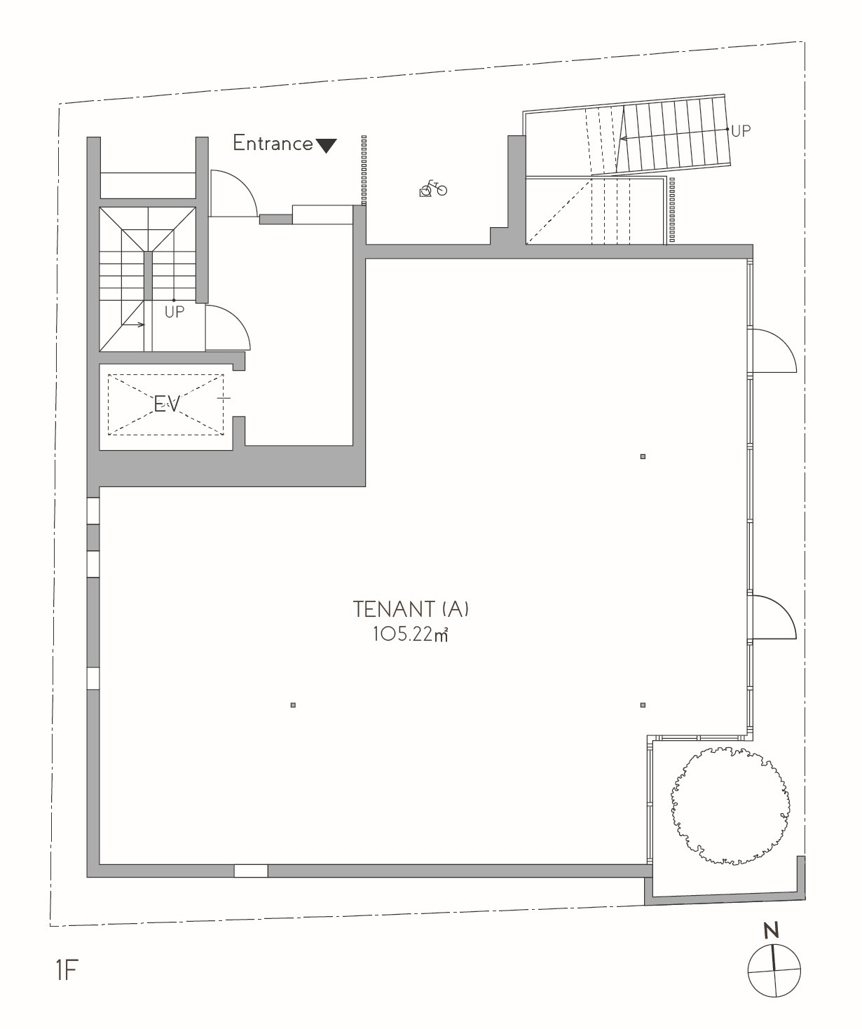
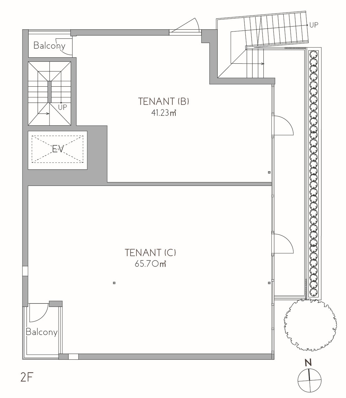
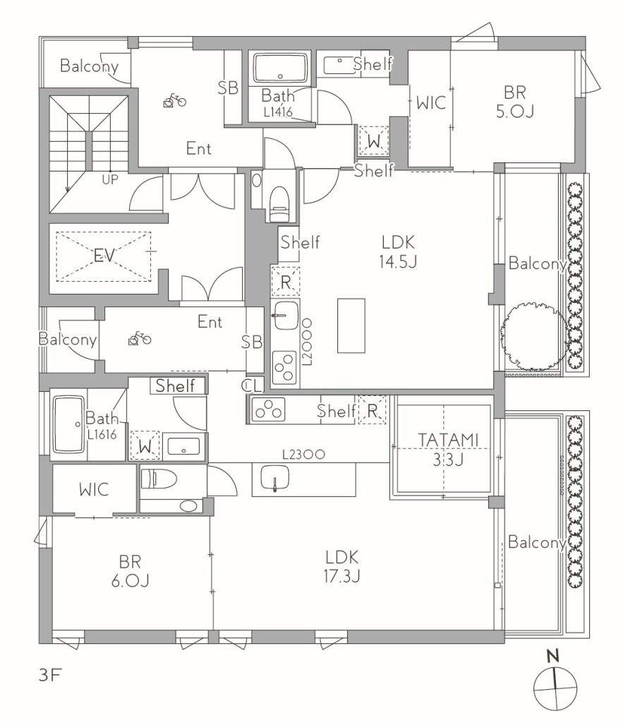
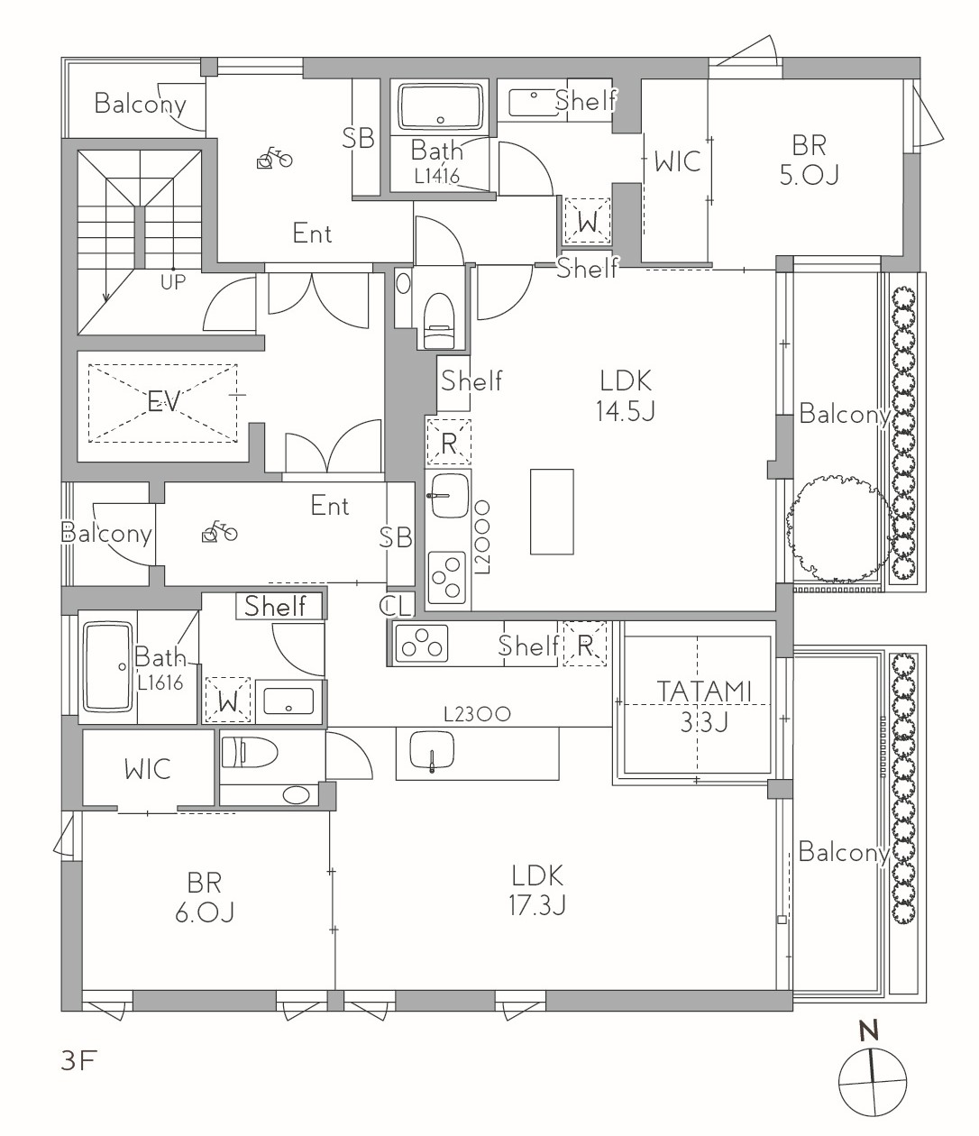
物件概要
- 物件名グランデュオ学芸大学4
- 所在地東京都目黒区鷹番3-18
- 敷地面積206.90㎡
- 土地権利所有権
- 用途地域第一種中高層住居専用地域/近隣商業地域
- 指定建ぺい率60%/80%
- 指定容積率200%/300%
- 接道東側7.19m(42条1項1号道路)/北側4.0m(42条2項道路)
- 高度地区17m第二種高度地区/20m第三種高度地区
- 防火地域準防火地域
- 構造・規模鉄筋コンクリート造 地上4階建
- 延床面積490.66㎡
- 貸床面積418.93㎡
- 用途共同住宅/店舗
- 竣工年月2026年7月31日予定
- 総戸数6戸(住戸×3 / 店舗×3)
- 建築確認番号第25ABNT-01-0211号
ARCHITECT
設計
内野 智之
Tomoyuki Uchino
株式会社FTRA
■略歴
1978年 横浜市生まれ
2004年 横浜国立大学大学院修士課程修了
2004-2010年 SAKO建築設計工社
個人と共同設立事務所での活動を経て
2017年 FTRA一級建築士事務所創業
2020年 株式会社FTRA設立
■受賞歴
2011年 JCDデザインアワード銀賞
2015年 グッドデザイン未来づくりデザイン賞
2021年、2024年 グッドデザイン賞
株式会社FTRA
■略歴
1978年 横浜市生まれ
2004年 横浜国立大学大学院修士課程修了
2004-2010年 SAKO建築設計工社
個人と共同設立事務所での活動を経て
2017年 FTRA一級建築士事務所創業
2020年 株式会社FTRA設立
■受賞歴
2011年 JCDデザインアワード銀賞
2015年 グッドデザイン未来づくりデザイン賞
2021年、2024年 グッドデザイン賞
本ページへの掲載内容は、計画段階の図面やコンセプトを基にしており、実際のものとは異なる可能性があります。
施工上の変更が生じた場合は、建物が完成した時点の状態を優先します。
方位に若干の差異がある可能性もありますので、ご了承ください。
物件に関するお問い合わせ
※当社開発物件は投資用一棟販売不動産であり、新築一棟RCマンション、新築RC戸建邸宅を販売しています。
※賃貸に関するお問い合わせの方は上のボタンよりご連絡ください
