UPDATED INFO.
- 2025.04.22グランデュオ代沢5のプロジェクトページを公開しました
- 2025.11.05CGを更新しました
設計のこだわり
大きな顔のある建築
本計画地は、南側に淡島通り、西側に私道が接する角地に位置しています。
建蔽率100%の敷地であるため、まず初めに敷地いっぱいのボリュームを検討しました。その後、法的・外的要因により形状を調整しながら、特に淡島通りからの視線を意識した計画を行いました。建物のファサードと外構フェンスの一体感を創出するため、フェンスを建物本体に組み込み、その上層にデザイン性の高いパネルを設置しています。これにより、外構フェンスと一体となった統一感のあるファサードを形成し、淡島通りに対してしっかりと顔を向けた印象的な外観を形成しています。
流れを表す積層のボリューム

淡島通りは、古くから人の往来が多くある道で、現在でも人や車の往来が目立ちます。そんな淡島通りの人々の流れに合わせ、積層ボリュームを計画することで、建物の横ラインを強調しました。そうすることで、淡島通りと調和のとれた建築とします。
※「設計のこだわり」に使用している画像は、イメージを表現するための参考として掲載しております。実際の仕上がりとは異なる場合がございますので、ご了承ください。
光が差し込むドライエリア

地下階に位置するドライエリアは、二層分の吹き抜けとすることで、室内にも光が差し込み、豊かな住空間を生み出します。また、前面道路に面した花壇には多くの植栽を配置し、ドライエリアと前面道路が緑を介して繋がる計画としました。
中庭で癒しを提供
共用部の吹抜けには大きな花壇をイメージした中庭を設けました。この中庭には、光や雨が差し込み、植物の生き生きとした様子を感じられるとともに、夜はライトアップによって幻想的な空間を演出することで、入居者の日常に癒しを提供します。
洗練された空間の演出

代沢は、近隣に下北沢や渋谷といった大きな駅があり、大使館も点在しているため、年齢や国籍の異なるさまざまな人々が住んでいます。そんな代沢には、飽きの来ない、どんな人にもマッチする内装デザインがふさわしいのではないかと考えました。
そこで、内装デザインのコンセプトを「ニュートラルカラーの洗練された空間」とし、どんな入居者や家具にも調和するデザインとしました。
計画地
京王井の頭線 池ノ上駅 徒歩約10分
周辺施設
買い物・飲食店
- セブン-イレブン 世田谷代沢3丁目店 徒歩約3分
- ファミリーマート 世田谷淡島通り店 徒歩約11分
- スターバックス コーヒー 代沢5丁目 徒歩約12分
- まいばすけっと 池ノ上駅前店 徒歩約13分
レジャー・施設
- ONE by FITNESS GYM T.I.S三宿店 徒歩約5分
- 代沢せせらぎ公園 徒歩約6分
- 世田谷区立池尻見晴らし広場 徒歩約12分
- 下北沢トリウッド 徒歩約16分
その他
- シンセン薬局 池ノ上店 徒歩約1分
- あわしまデンタルオフィス 徒歩約3分
- 目黒警察署 駒場一丁目駐在所 徒歩約8分
- 世田谷区役所 北沢総合支所 徒歩約13分
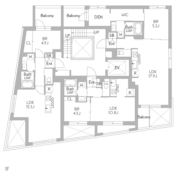
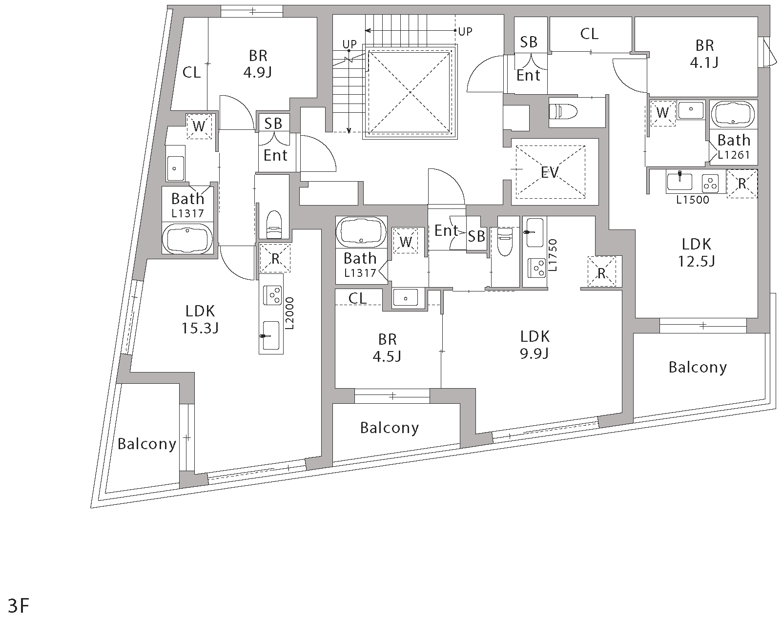
物件概要
- 物件名グランデュオ代沢5
- 所在地 東京都世田谷区代沢1丁目27
- 敷地面積249.86㎡
- 土地権利所有権
- 用途地域近隣商業地域
- 指定建ぺい率80%
- 指定容積率200%
- 接道南側15m / 西側4m
- 高度地区第二種高度地区
- 防火地域準防火地域
- 構造・規模鉄筋コンクリート造 地下1階 地上3階建
- 延床面積688.55㎡
- 貸床面積533.24㎡
- 用途共同住宅
- 竣工年月2026年6月30日予定
- 総戸数12戸
- 建築確認番号第JTC25Y-AZ0117-00号
ARCHITECT
設計
フェイスネットワーク/建築デザイナー
本敷地は「淡島通」という渋谷へと続く大きな通りに面しており、バスや自動車、自転車など、多くの人が行き交う場所となっています。そのため、現在の淡島通には、人目を気にして1階を店舗や駐車場とした一体感の無い建物が並び、どこか寂しい印象を受けます。
そこで、淡島通という大通りに面した立地の特性を理解し、閑静な住宅街とは違う、より都市的でまとまりのあるデザインを考える必要があると感じました。
以上のことより、「淡島通の集合住宅」をテーマとし、淡島通を行き交う人々の目に留まる、「大きな顔のある建築」を提案いたします。
本敷地は「淡島通」という渋谷へと続く大きな通りに面しており、バスや自動車、自転車など、多くの人が行き交う場所となっています。そのため、現在の淡島通には、人目を気にして1階を店舗や駐車場とした一体感の無い建物が並び、どこか寂しい印象を受けます。
そこで、淡島通という大通りに面した立地の特性を理解し、閑静な住宅街とは違う、より都市的でまとまりのあるデザインを考える必要があると感じました。
以上のことより、「淡島通の集合住宅」をテーマとし、淡島通を行き交う人々の目に留まる、「大きな顔のある建築」を提案いたします。
OTHER PROJECT
同じエリアのプロジェクト
本ページへの掲載内容は、計画段階の図面やコンセプトを基にしており、実際のものとは異なる可能性があります。
施工上の変更が生じた場合は、建物が完成した時点の状態を優先します。
方位に若干の差異がある可能性もありますので、ご了承ください。
物件に関するお問い合わせ
※当社開発物件は投資用一棟販売不動産であり、新築一棟RCマンション、新築RC戸建邸宅を販売しています。
※賃貸に関するお問い合わせの方は上のボタンよりご連絡ください