オーセンティシティな居住空間
THE GRANDUO
KAMIMEGURO
施工中
一棟RCマンション
所在地: 東京都目黒区上目黒4-33Google MAP
2026.06.30完成予定
進捗度87
- 設計中
- 施工中
- 完成
UPDATED INFO.
- 2025.06.05THE GRANDUO KAMIMEGUROのプロジェクトページを公開しました
設計のこだわり
1925年に開催されたパリ装飾博覧会。当時、近代建築の巨匠が提案した静謐で美しいプロポーションを持つ居住空間は、100年経った今もなお私たちを魅了し続けています。そこには大きな気積と確かな素材感、そして樹木やアート作品など生活を楽しませる他者の受容があるからです。100年前と比べて利便性は飛躍的に向上しましたが、居住空間の本質的な魅力を完全に手にしているとは言い難く、その全てとは言わないまでも、より多くを得られることを目指しました。
微地形を活かす

目黒川の支流・蛇崩川の河岸段丘の上に位置する敷地。その地形的特徴を活かし、周辺の谷や尾根が織りなす微地形を巧みに取り込んだ、坂道のある集合住宅が誕生しました。
2面接道を活かす

南側と西側に接する恵まれた敷地条件を活かし、歩行者が自由に通り抜けられるパスウェイを設けました。この開放的な空間が新たな動線を生み出し、周辺の散歩コースにさらなる楽しみの幅を広げます。
トンネル空間

トンネルを抜ける瞬間に、誰もが抱く小さな心の動き、期待感、開放感、驚き、喜び。それらは日常生活に不可欠なリズムの変化をもたらします。そのような空間的インスタレーションと共にある集合住宅です。
計画地
東急東横線 祐天寺駅 徒歩約7分
東急東横線 中目黒駅 徒歩約15分
周辺施設
買い物・飲食店
- まいばすけっと祐天寺駅西店 徒歩約4分
- ローソンストア100 世田谷下馬店 徒歩約5分
- エトモ祐天寺店 徒歩約8分
レジャー・施設
- 目黒テニススクール 徒歩約7分
- セントラルスポーツジム24祐天寺 徒歩約7分
- せたがや公園 徒歩約8分
- 目黒ゴルフ練習場 徒歩約10分
その他
- 上目黒四郵便局 徒歩約4分
- 目黒区役所 徒歩約15分
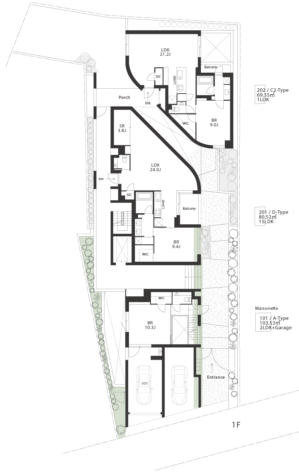
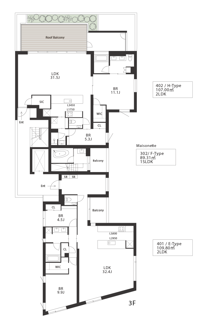
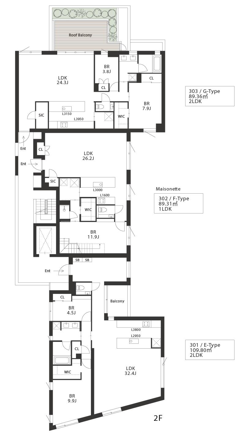
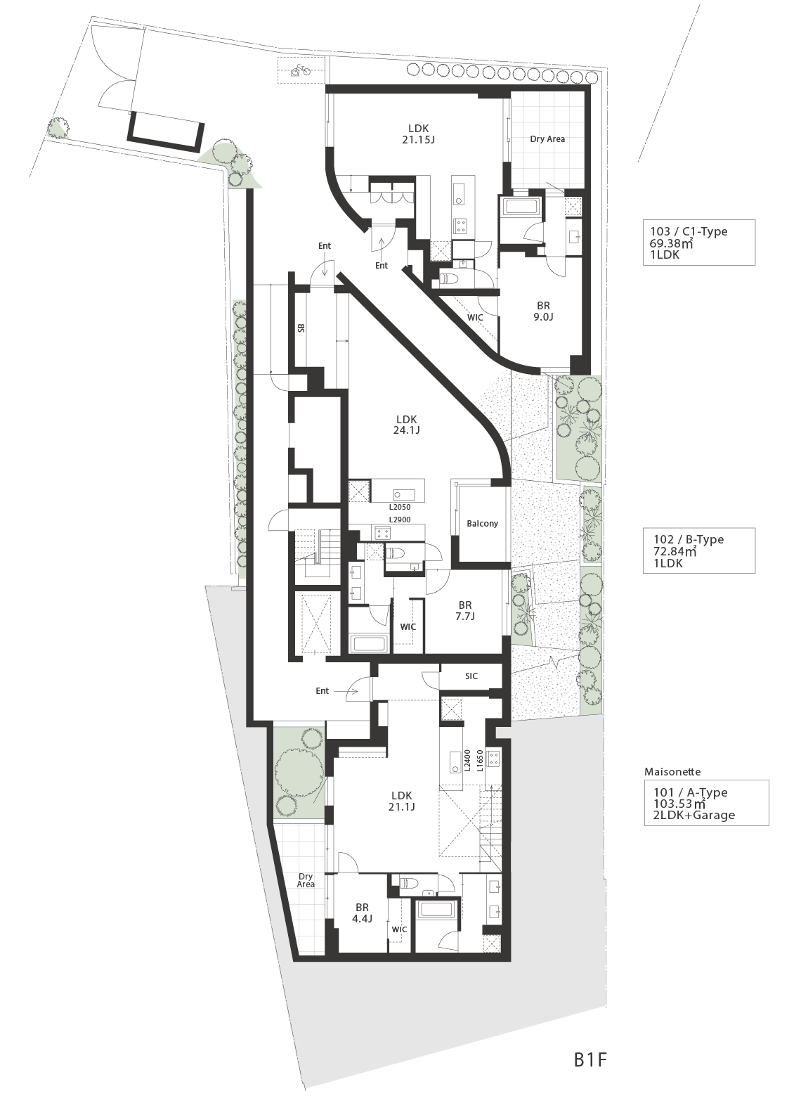
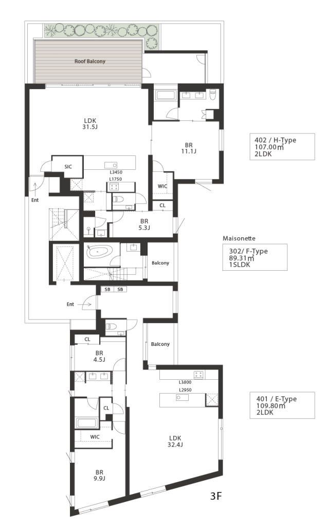
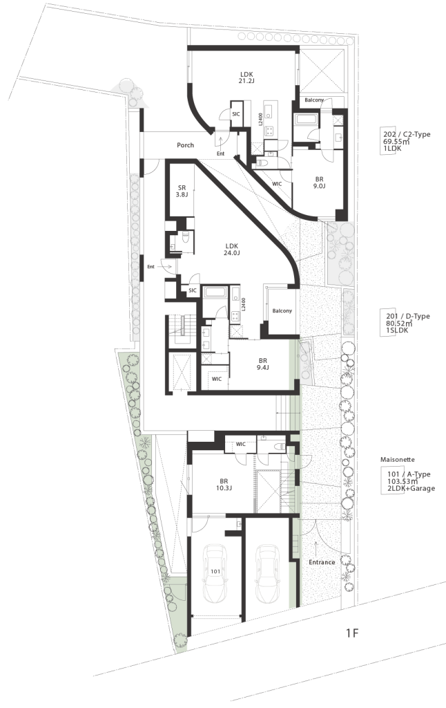
物件概要
- 物件名THE GRANDUO KAMIMEGURO
- 所在地東京都目黒区上目黒4-33
- 敷地面積567.98㎡
- 土地権利所有権
- 用途地域第一種低層住居専用地域
- 指定建ぺい率60%
- 指定容積率150%
- 接道南側 7.27m(42条1項1号)/北西側 4.0m(42条1項5号)
- 高度地区第一種高度地区
- 防火地域準防火地域
- 構造・規模鉄筋コンクリート構造(WRC造)地下1階地上3階建
- 延床面積1,158.58㎡
- 貸床面積901.09㎡
- 用途共同住宅
- 竣工年月2026年6月30日予定
- 総戸数10戸
- 建築確認番号JCIA確認S24第00143号(03)
ARCHITECT
設計
ヨコミゾマコト
yokomizo makoto
aat+ヨコミゾマコト建築設計事務所
集合住宅をはじめ、美術館や図書館、劇場や庁舎、都市広場などの「公」の空間から、個人住宅やギャラリーなどの「個」の空間まで、多様なプロジェクトを手掛ける。人/建築/都市をひと続きに捉え、それを取り巻く様々な事象を環境と呼び、絶え間なく変化する環境の流れの中に建築を位置づける。歴史、経済、文化の流れ。水や風、熱や光の流れ。そして地形や地勢、力学的重力の流れ。これらの流れを受け止め制御すること、流れの方向を変え新しい流れを生むこと、それが建築デザインであると考え、実践している。日本建築学会賞作品賞、日本建築家協会賞、グッドデザイン賞金賞、BCS賞、公共建築賞など受賞。
aat+ヨコミゾマコト建築設計事務所
集合住宅をはじめ、美術館や図書館、劇場や庁舎、都市広場などの「公」の空間から、個人住宅やギャラリーなどの「個」の空間まで、多様なプロジェクトを手掛ける。人/建築/都市をひと続きに捉え、それを取り巻く様々な事象を環境と呼び、絶え間なく変化する環境の流れの中に建築を位置づける。歴史、経済、文化の流れ。水や風、熱や光の流れ。そして地形や地勢、力学的重力の流れ。これらの流れを受け止め制御すること、流れの方向を変え新しい流れを生むこと、それが建築デザインであると考え、実践している。日本建築学会賞作品賞、日本建築家協会賞、グッドデザイン賞金賞、BCS賞、公共建築賞など受賞。
OTHER PROJECT
同じエリアのプロジェクト
本ページへの掲載内容は、計画段階の図面やコンセプトを基にしており、実際のものとは異なる可能性があります。
施工上の変更が生じた場合は、建物が完成した時点の状態を優先します。
方位に若干の差異がある可能性もありますので、ご了承ください。
物件に関するお問い合わせ
※当社開発物件は投資用一棟販売不動産であり、新築一棟RCマンション、新築RC戸建邸宅を販売しています。
※賃貸に関するお問い合わせの方は上のボタンよりご連絡ください
