外部空間を取り込んだ豊かな空間
THE GRANDUO
SAKURASHINMACHI
施工中
一棟RCマンション
所在地: 東京都世田谷区桜新町1-22Google MAP
2025.11.19完成予定
進捗度99
- 設計中
- 施工中
- 完成
UPDATED INFO.
- 2024.09.24THE GRANDUO SAKURASHINMACHIのプロジェクトページを公開しました
- 2025.07.02完成予定日を更新しました
- 2025.10.03完成予定日を更新しました
設計のこだわり
外部空間を取り込んだ豊かな空間
自然を取り入れることで、空間が豊かになります。プライバシーを守りながら、内部と外部をシームレスに繋げることで、快適でウェルビーイングな暮らしが実現します。
光と風が通り抜ける住戸

全ての住戸が南北に面しており、光と風が通り抜ける開放的な空間が快適でウェルビーイングな生活を支えます。
連続する内と外

それぞれの住戸は、特徴的な外部空間を持っています。土間・リビングと繋がる広い前庭を持った住戸と、南北に貫通するバルコニーを持った住戸を計画しました。どちらの外部空間も生活の場となり得るよう、プライバシー性に配慮しながら、デザインと間取りを整理しました。
形態と素材

シンプルなデザインは普遍的な美しさを持ち、素材の魅力を引き立てます。素材感のある外壁は、時間と共に風合いと深みが増し、「成熟する建築」として長く愛されます。
計画地

田園都市線 桜新町駅(南口)徒歩約7分
田園都市線 用賀駅(東口)徒歩約10分
周辺施設
買い物・飲食店
- ファミリーマート 桜新町一丁目店 徒歩約3分
- まいばすけっと桜新町1丁目店 徒歩約3分
- ドラッグセイムス世田谷桜新町店 徒歩約4分
- スターバックスコーヒー桜新町店 徒歩約5分
レジャー・施設
- 長谷川町子美術館 徒歩約6分
- コジマ×ビックカメラ 用賀店 徒歩約10分
- セントラルフィットネスクラブ用賀 徒歩約14分
- つるまき皮膚科 徒歩約14分
その他
- 三井住友銀行 桜新町支店 徒歩約6分
- 世田谷区役所 用賀出張所 徒歩約6分
- 世田谷桜新町郵便局 徒歩約7分
- 世田谷区役所二子玉川出張所 徒歩約9分
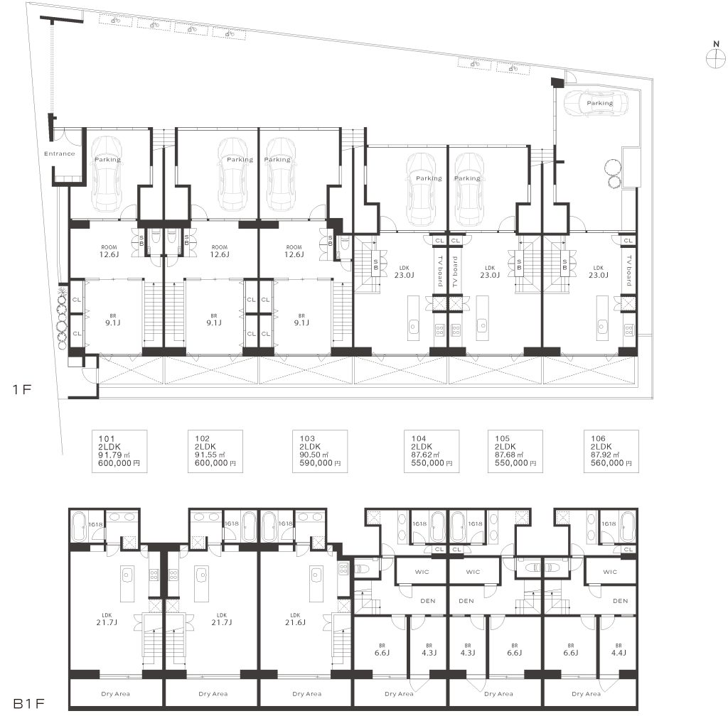
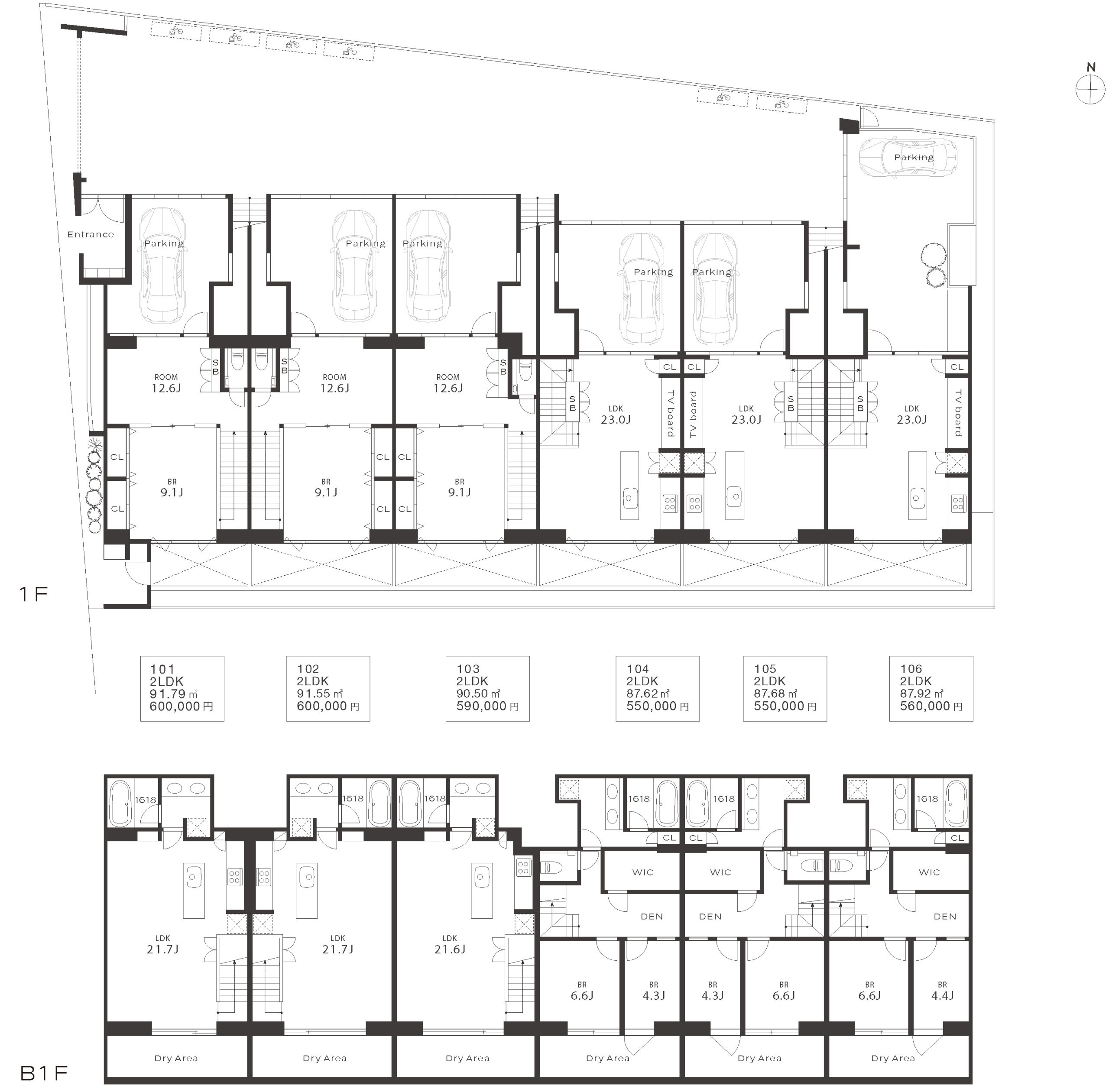
物件概要
- 物件名THE GRANDUO SAKURASHINMACHI
- 所在地 東京都世田谷区桜新町1-22
- 敷地面積725.06㎡
- 土地権利所有権
- 用途地域第一種低層住居専用地域
- 指定建ぺい率50%
- 指定容積率100%
- 接道西側4.0m(42条2項道路)
- 高度地区第一種高度地区(絶対高さ10.0m)
- 防火地域準防火地域
- 構造・規模鉄筋コンクリート造 地下1階地上3階建
- 延床面積1,136.16㎡
- 貸床面積1,000.63㎡
- 用途共同住宅
- 竣工年月2025年11月19日予定
- 総戸数12戸
- 建築確認番号第UHEC建確R060425号
ARCHITECT
設計
窪田 茂
Shigeru Kubota
デジンズ ジェーピー 株式会社 代表取締役
時間の流れと自然を感じる空間
桜新町の落ち着いている空間の中に建つこの住宅は、とても開放的で、太陽の光や風、雨などを間近で感じながら季節の移ろいを感じられるような空間と、永く住むことで愛着を持つことのできる素材感など、生活のリアリティを感じられる建築を目指しました。
略歴
1969年 東京生まれ
1991年 中央工学校建築設計科卒業
1999年 設計事務所などを経て独立
2003年 窪田建築都市研究所を設立
2005~2007年 CAFE COMPANY(株)取締役 設計部長を兼任
2013~2018年 (株)ダブリューズカンパニー取締役兼任
2018年 一般社団法人 日本商環境デザイン協会(JCD)理事長に就任
2023年 Degins JPへ社名変更
不動産部門クラストスマウ、
デジタルデザイン部門Degins Digital Designをスタート
現在に至る
建築、インテリア、プロダクトを中心に、様々なジャンルや業態のデザインを行なっている。
企画開発やプロデュースも行い、人が集まりコミュニティーが生まれる場所作りを提案している。デジタルデザイン部門、不動産部門をスタート。
デジンズ ジェーピー 株式会社 代表取締役
時間の流れと自然を感じる空間
桜新町の落ち着いている空間の中に建つこの住宅は、とても開放的で、太陽の光や風、雨などを間近で感じながら季節の移ろいを感じられるような空間と、永く住むことで愛着を持つことのできる素材感など、生活のリアリティを感じられる建築を目指しました。
略歴
1969年 東京生まれ
1991年 中央工学校建築設計科卒業
1999年 設計事務所などを経て独立
2003年 窪田建築都市研究所を設立
2005~2007年 CAFE COMPANY(株)取締役 設計部長を兼任
2013~2018年 (株)ダブリューズカンパニー取締役兼任
2018年 一般社団法人 日本商環境デザイン協会(JCD)理事長に就任
2023年 Degins JPへ社名変更
不動産部門クラストスマウ、
デジタルデザイン部門Degins Digital Designをスタート
現在に至る
建築、インテリア、プロダクトを中心に、様々なジャンルや業態のデザインを行なっている。
企画開発やプロデュースも行い、人が集まりコミュニティーが生まれる場所作りを提案している。デジタルデザイン部門、不動産部門をスタート。
OTHER PROJECT
同じエリアのプロジェクト
本ページへの掲載内容は、計画段階の図面やコンセプトを基にしており、実際のものとは異なる可能性があります。
施工上の変更が生じた場合は、建物が完成した時点の状態を優先します。
方位に若干の差異がある可能性もありますので、ご了承ください。
物件に関するお問い合わせ
※当社開発物件は投資用一棟販売不動産であり、新築一棟RCマンション、新築RC戸建邸宅を販売しています。
※賃貸に関するお問い合わせの方は上のボタンよりご連絡ください
