WORKS

一棟RCマンション

グランデュオ経堂17

グレーカラーと木目をベースとし、外壁の仕上げを統一させることで周囲に落ち着いた印象を与える作りとなっております。さらに勾配を付けた袖壁とファサード面のフェンスとバルコニーには、木目素材を用いることでスタイリッシュさだけではなく、木目の温かさを感じることができ、街の空気や人の流れに自然と溶け込めるデザインとなっております。内装には、2面採光やホワイトを基調としたデザインが採用されており、明るく清潔感のある空間での日常生活が叶います。

  • 所在地 東京都世田谷区経堂2-33-10
  • 敷地面積 194.5㎡
  • 建ぺい率 80%
  • 容積率 200%
  • 延床面積 443.33㎡
  • 築年月日 2023年09月
  • 構造・階数 RC造・地上4階建
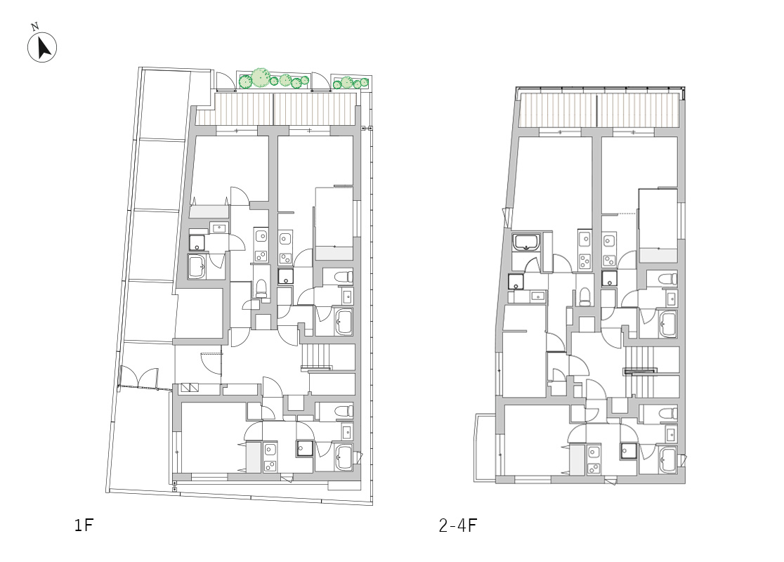
  • 間取り 1K×5戸、1LDK×7戸

CONTACT US

フェイスネットワークではお客様のニーズに合わせたご相談の窓口をご用意しています。
お気軽にご相談・お問い合わせください。