WORKS

一棟RCマンションGOOD DESIGN AWARD2024

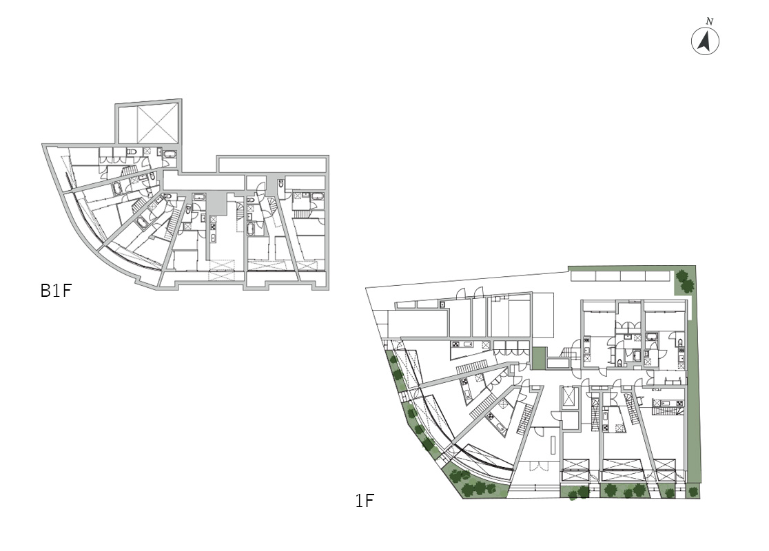
グランデュオ代々木2

曲線的な外観・印象深い金属メッシュのスクリーンが人々の目を惹く「GranDuo 代々木2」は閑静な住宅地に建ち上がります。内装はダークグレーを基調としたシックなデザイン。吹き抜けや、大開口窓からは採光をたっぷりと取り込むことができるため、まさに“陽だまりの中”に住むことが叶います。各住戸はコンパクトな動線と視線の抜けを計算し設計。『柔らかなランドマーク』がコンセプトで、やがて緑に覆われて「杜」のような神聖な場所を連想させるような、現代のランドマークにふさわしくなること期待しております。

  • 所在地 東京都渋谷区代々木4-56-10
  • 敷地面積 673.97㎡
  • 建ぺい率 60%
  • 容積率 200%
  • 延床面積 1781.47㎡
  • 築年月日 2023年04月
  • 構造・階数 RC造・地上4階、地下1階建
  • 間取り 2LDK×7戸、3LDK×1戸、1LDK×7戸、1R×5戸、2DK×1戸、2K×7戸、1DK×3戸

CONTACT US

フェイスネットワークではお客様のニーズに合わせたご相談の窓口をご用意しています。
お気軽にご相談・お問い合わせください。