WORKS

一棟RCマンション

グランデュオ用賀5

コンクリートが持つスタイリッシュさと緑あふれるデザインを活かした「GranDuo 用賀5」は、堅牢でありながらも自然を感じる作りになっております。外観は、閑静な街並みと調和し周辺風景とのつながりを持つ豊かな都市生活を表現。ゆとりのあるバルコニーや内装からもおおらかな景色や光と風を取り込むことが出来るのが魅力の一つです。また、共有部分には半屋外空間を採用しているため、用賀の豊かな自然に触れることができます。

  • 所在地 東京都世田谷区玉川台2-9-8
  • 敷地面積 352.88㎡
  • 建ぺい率 60%
  • 容積率 200%
  • 延床面積 801.05㎡
  • 築年月日 2023年02月
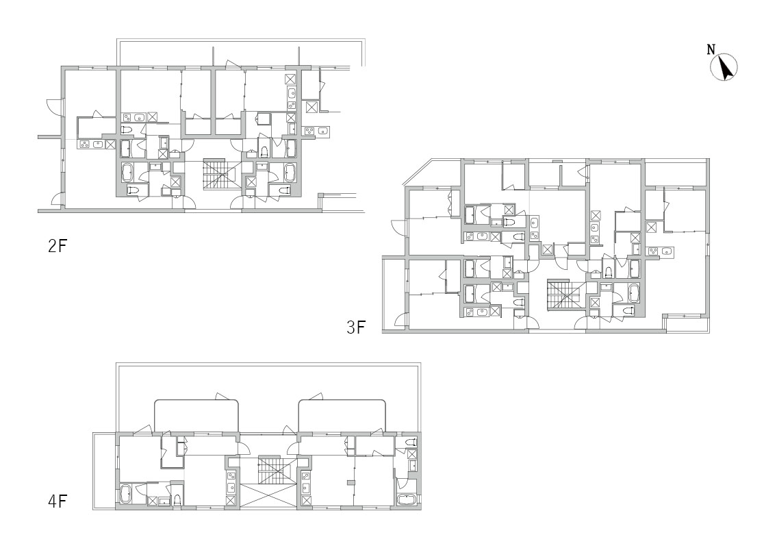
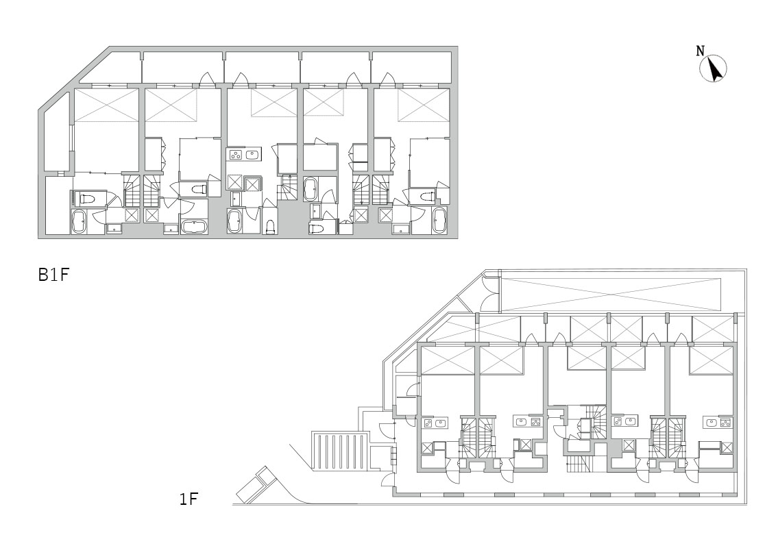
  • 構造・階数 RC造・地上4階、地下1階建
  • 間取り 1LDK×9戸、1SLDK×2戸、1R×4戸、1DK×1戸

CONTACT US

フェイスネットワークではお客様のニーズに合わせたご相談の窓口をご用意しています。
お気軽にご相談・お問い合わせください。