WORKS

一棟RCマンション

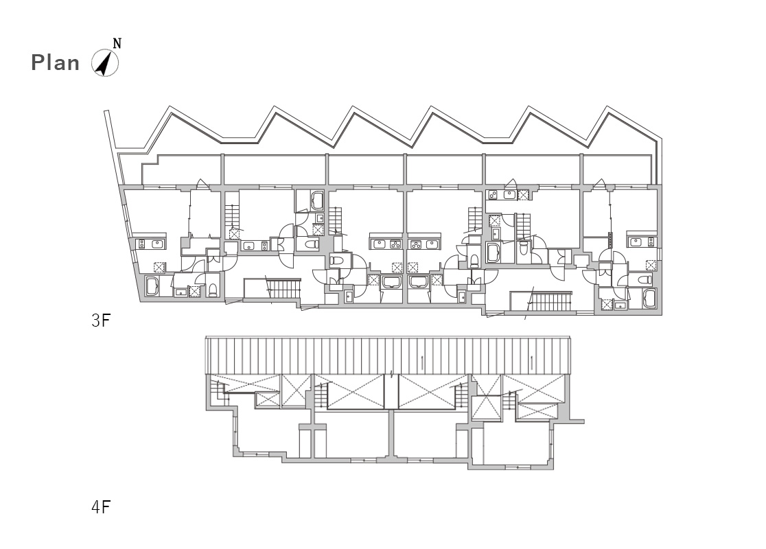
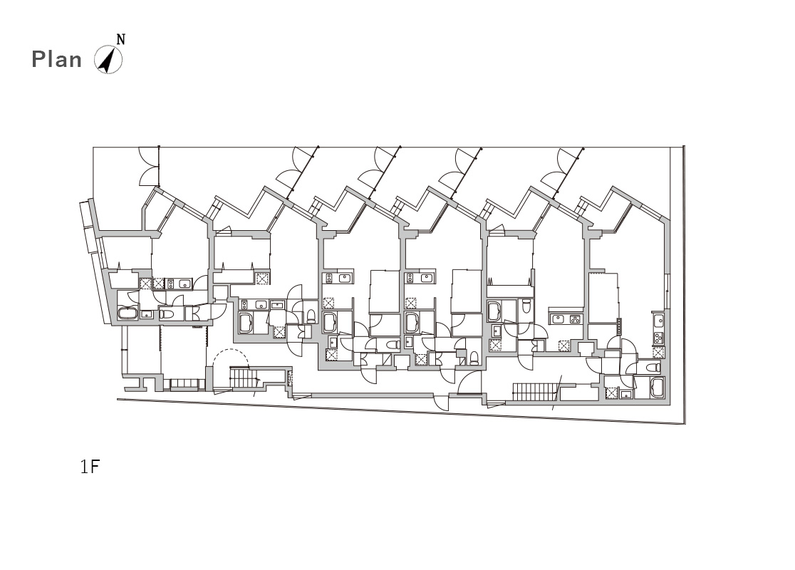
グランデュオ駒沢10

グランデュオ駒沢10周辺は、緑豊かな「駒沢オリンピック公園」があり都会の喧騒を忘れる住環境が魅力です。建物は、グレーとホワイトを基調とし落ち着いた街に調和する地上4階建ての物件。デザイン性に優れたバルコニーは休日のリフレッシュには最適です。各部屋アクセントクロスがお部屋のポイントとなっており、淡いブルーやグリーンのカラーを用いているので、色彩から「落ち着き」や「安らぎ」を感じることができるのではないでしょうか。

  • 所在地 東京都目黒区東が丘2-1-11
  • 敷地面積 477.91㎡
  • 建ぺい率 60%
  • 容積率 150%
  • 延床面積 852.9㎡
  • 築年月日 2022年08月
  • 構造・階数 RC造・地上4階建
  • 間取り 1DK×1戸、1LDK×17戸

CONTACT US

フェイスネットワークではお客様のニーズに合わせたご相談の窓口をご用意しています。
お気軽にご相談・お問い合わせください。