WORKS

一棟RCマンション

グランデュオ代沢3

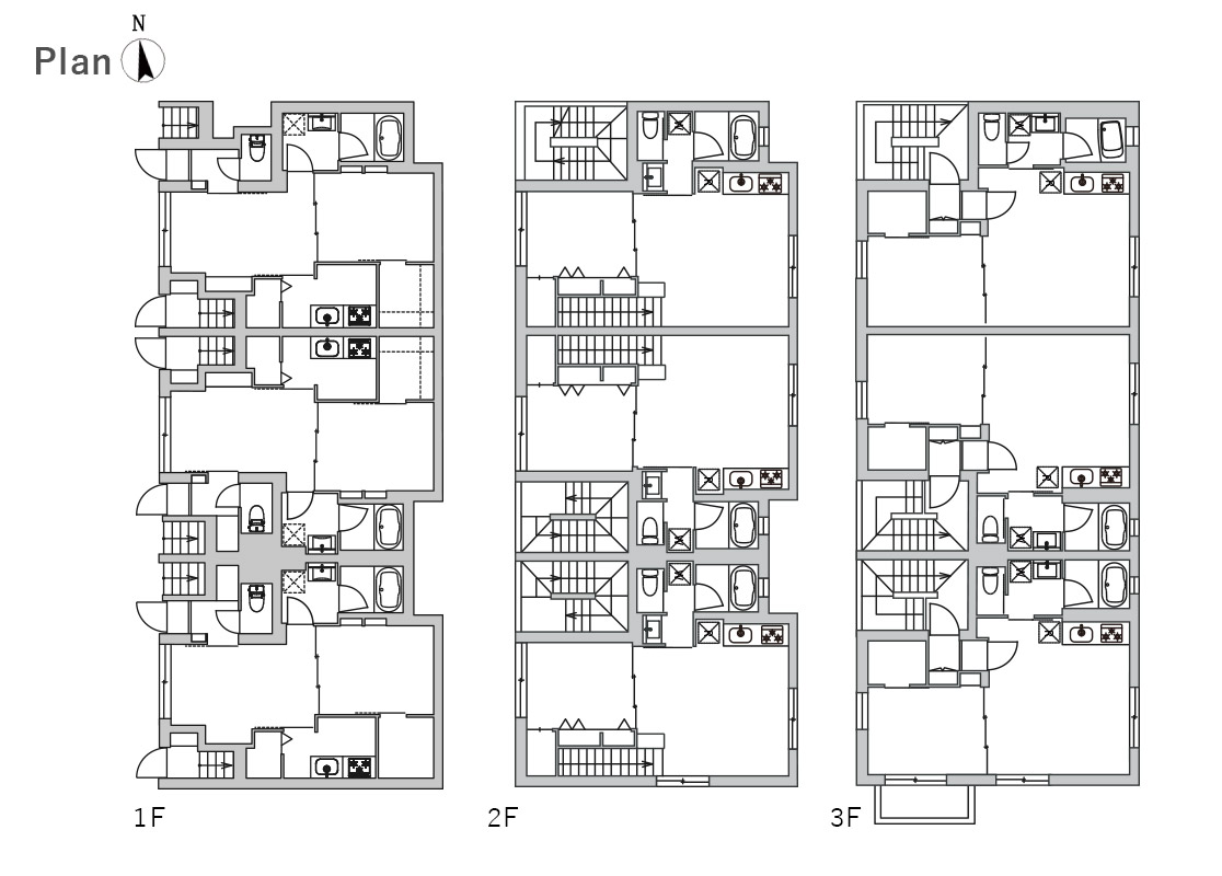
都内屈指の高級住宅街に位置するグランデュオ代沢3は、閑静な住宅地にある、全9世帯の長屋造のマンションです。建物は道路から地状分を階段・スロープで3.7m程上がった高台に建ちます。そのため最上階からの眺望は良好です。オートロックを設け、2・3階の各住戸には専用階段を設けているため、プライバシーが高く確保された設計となっています。

  • 所在地 東京都世田谷区代沢1-29-11
  • 敷地面積 309.66㎡
  • 建ぺい率 50%
  • 容積率 150%
  • 延床面積 399.86㎡
  • 築年月日 2021年06月
  • 構造・階数 RC造・地上3階建
  • 間取り 1LDK×9戸

CONTACT US

フェイスネットワークではお客様のニーズに合わせたご相談の窓口をご用意しています。
お気軽にご相談・お問い合わせください。