WORKS
一棟RCマンション
グランデュオ田園調布4
その他2020年09月
グランデュオ田園調布4の周辺は、緑豊かで美しい街並みの高級住宅が広がる街です。この街はガーデンシティーとしての景観の調和が図られています。暖かさ・優しさ・高級感を田園調布らしさと捉えてデザインを計画。白や茶系・素焼き感によるデザインで暖かさと優しさを表現し、コンクリート打ち放しを採用することにより、色味のトーンを落ち着かせ意匠性の向上をはかり高級感を演出しています。
- 所在地 東京都大田区田園調布2-38-10
- 敷地面積 267.01㎡
- 建ぺい率 80%
- 容積率 200%
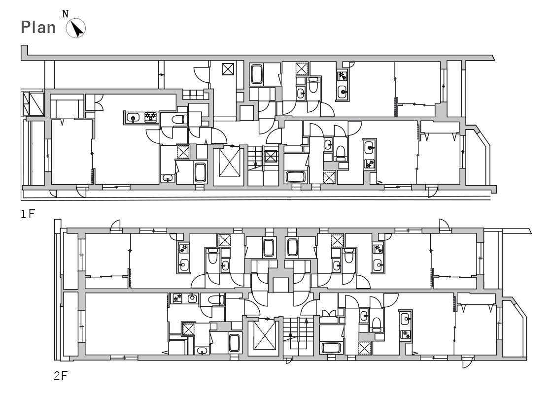
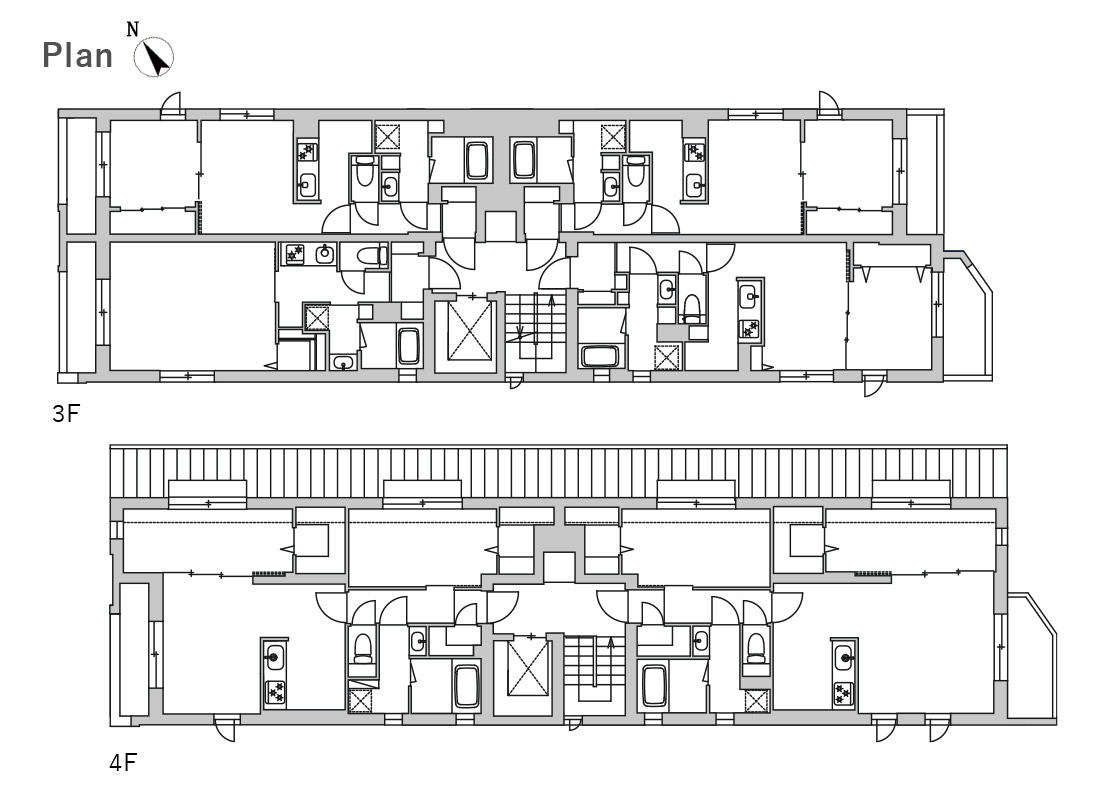
- 延床面積 609.22㎡
- 築年月日 2020年09月
- 構造・階数 RC造・地上4階建
- 間取り 1K×2戸、1LDK×9戸、2LDK×2戸
 
     
     
     
     
           
           
           
           
           
           
           
           
           
           
           
           
           
           
           
           
           
           
           
           
           
           
           
             
             
            