WORKS

一棟RCマンション

グランデュオ上野毛4

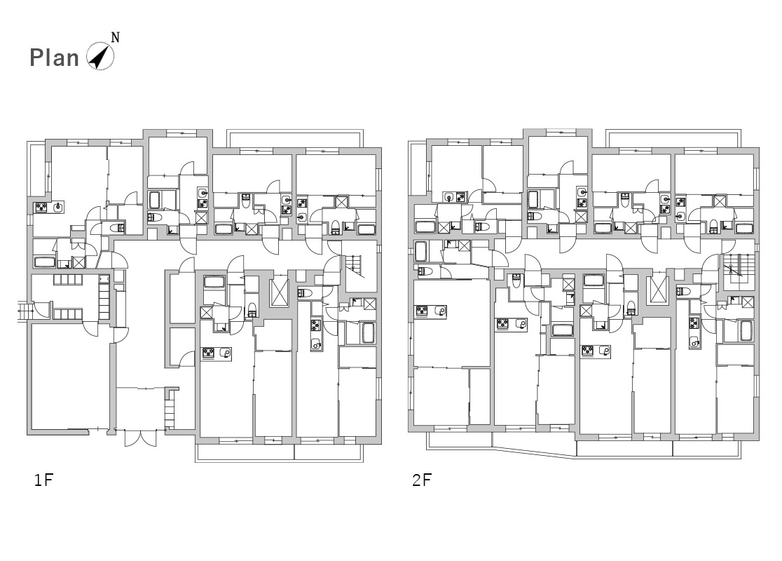
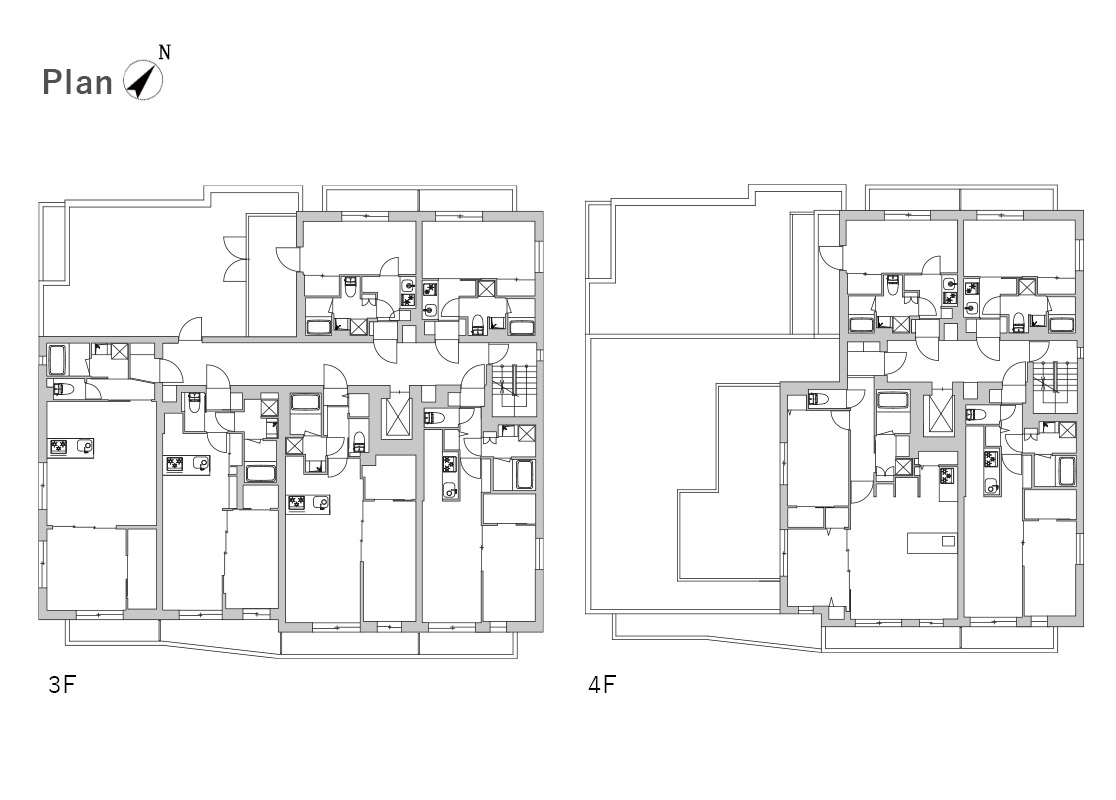
グランデュオ上野毛4は、コンクリートの建物に、金属板を積層させゆるやかに弧を描くように構成した手摺を取り付けることで、流れるような動きのある表情を創り出しています。その堅牢な佇まいは、見る角度や光の陰影によって変化するように設計しています。

  • 所在地 東京都世田谷区瀬田2-1-2
  • 敷地面積 428.42㎡
  • 建ぺい率 80/50%
  • 容積率 300/100%
  • 延床面積 1187.56㎡
  • 築年月日 2020年06月
  • 構造・階数 RC・地上5階建
  • 間取り 1K×12戸、1DK×1戸、1LDK×13戸、2LDK×2戸

CONTACT US

フェイスネットワークではお客様のニーズに合わせたご相談の窓口をご用意しています。
お気軽にご相談・お問い合わせください。