WORKS

一棟RCマンション

グレイシア自由が丘

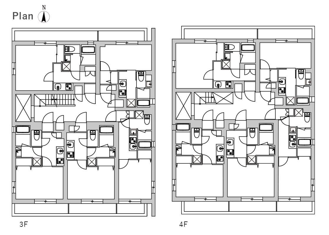
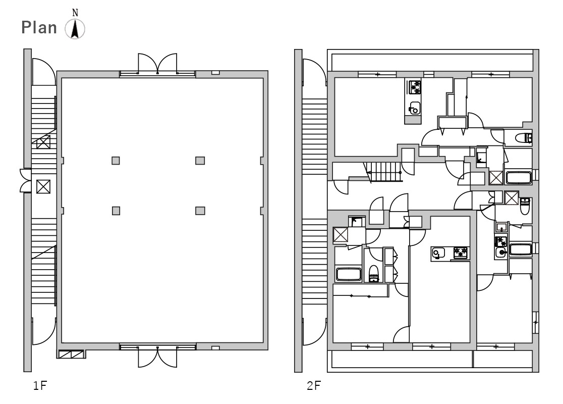
共同住宅へのエントランスを兼ねる1 階から2階へと昇る階段に5.6mの高天井、15mある奥行きを感じられる階段、階段を上った先の吹き抜けなど、空間の多様性をもたせたグレイシア自由が丘。バルコニーのスチール手摺が軽やかな軟らかさを印象付け、コンクリート打放しのボリュームと袖壁が重厚感を強調し、重さと軽さのバランスを重要視した物件。

  • 所在地 東京都世田谷区奥沢2-10-3
  • 敷地面積 234.58㎡
  • 建ぺい率 60%
  • 容積率 200%
  • 延床面積 542.48㎡
  • 築年月日 2019年12月
  • 構造・階数 RC造・地上4階建
  • 間取り 店舗×1戸、1K×11戸、1LDK×2戸

CONTACT US

フェイスネットワークではお客様のニーズに合わせたご相談の窓口をご用意しています。
お気軽にご相談・お問い合わせください。