WORKS

一棟RCマンション

グランデュオ恵比寿3

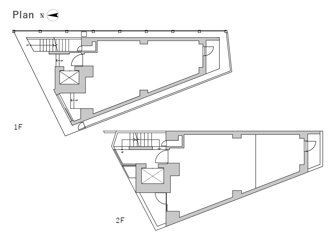
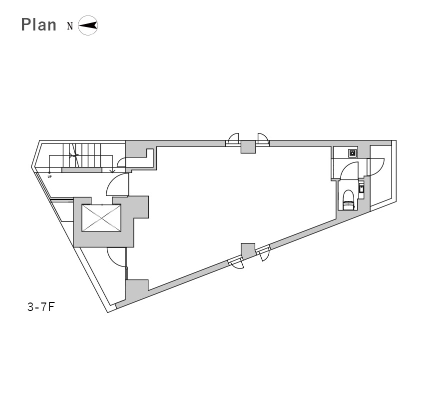
駅から近く、人通りの多い場所に位置するグランデュオ恵比寿3。行き来する人の目にオリジナルカラーが目立ち、街並みに自然に溶け込む外観を再現しました。三角形の敷地が洗練されたお店や事務所を演出できるようなデザインに仕上げています。

  • 所在地 東京都渋谷区恵比寿1-22-10
  • 敷地面積 86.68㎡
  • 建ぺい率 80%
  • 容積率 500%
  • 延床面積 329.42㎡
  • 築年月日 2019年09月
  • 構造・階数 RC造・地上7階建
  • 間取り 店舗×2戸、事務所5戸

CONTACT US

フェイスネットワークではお客様のニーズに合わせたご相談の窓口をご用意しています。
お気軽にご相談・お問い合わせください。