WORKS

一棟RCマンション

グランデュオ蒲田

その他2017年10月

グランデュオ蒲田は、打ち放しの壁に照明に照らされたパンチングメタルで装飾したシックな建物に、日本のシンボルカラーである「朱色」をあしらったアクセント。変化していく蒲田の街に溶け込みながらも、日本らしさを連想させる朱色が人目を惹きつけます。

  • 所在地 東京都大田区蒲田1-15-3
  • 敷地面積 184.78㎡
  • 建ぺい率 60%
  • 容積率 300%
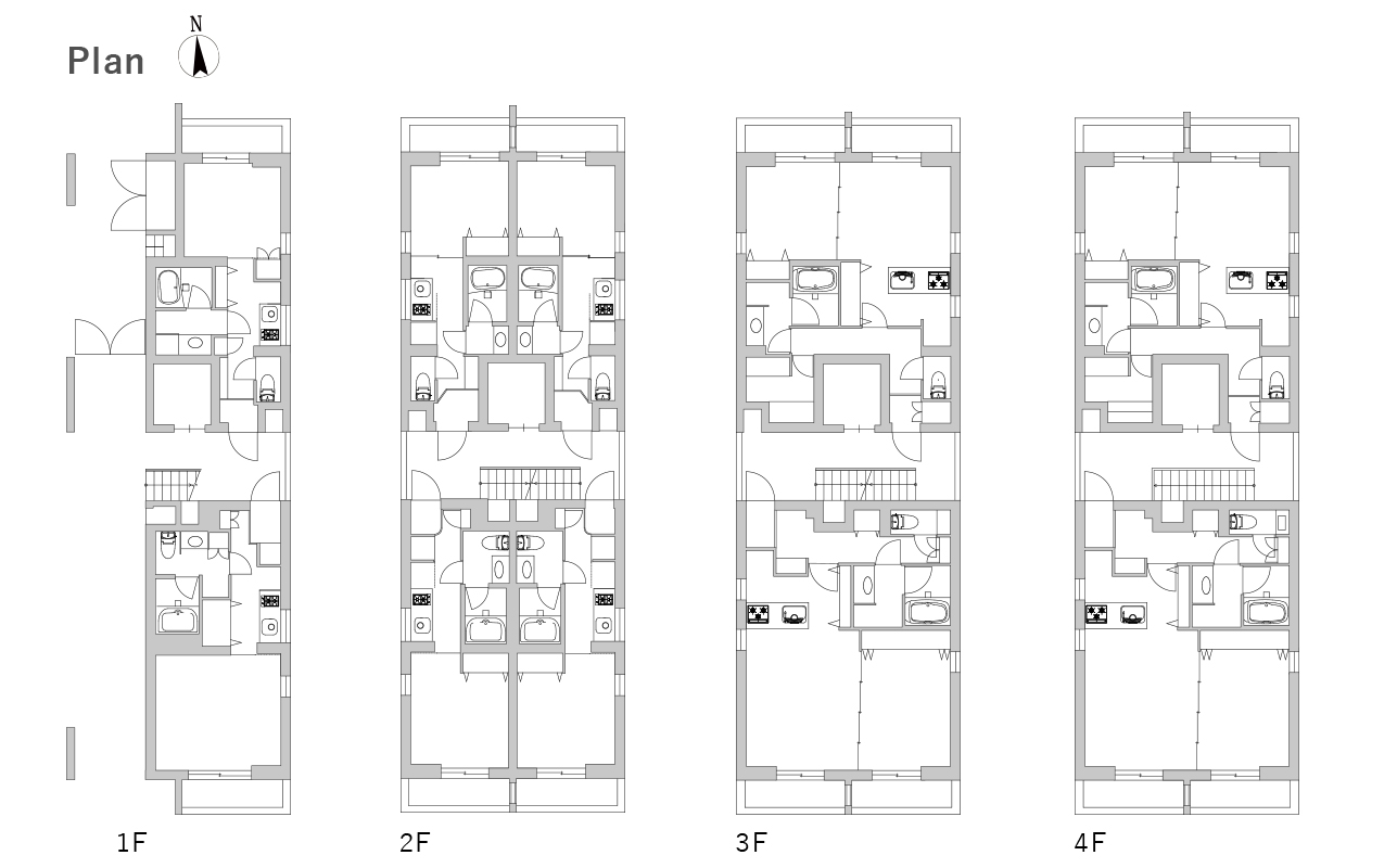
  • 延床面積 551.8㎡
  • 築年月日 2017年10月
  • 構造・階数 RC造・地上5階建
  • 間取り 1K×10戸、1LDK×4戸

CONTACT US

フェイスネットワークではお客様のニーズに合わせたご相談の窓口をご用意しています。
お気軽にご相談・お問い合わせください。