WORKS

一棟RCマンション

共用部を道の連続として扱い、エリア全体に活気を生みだす

保護中: グランデュオ祖師谷7

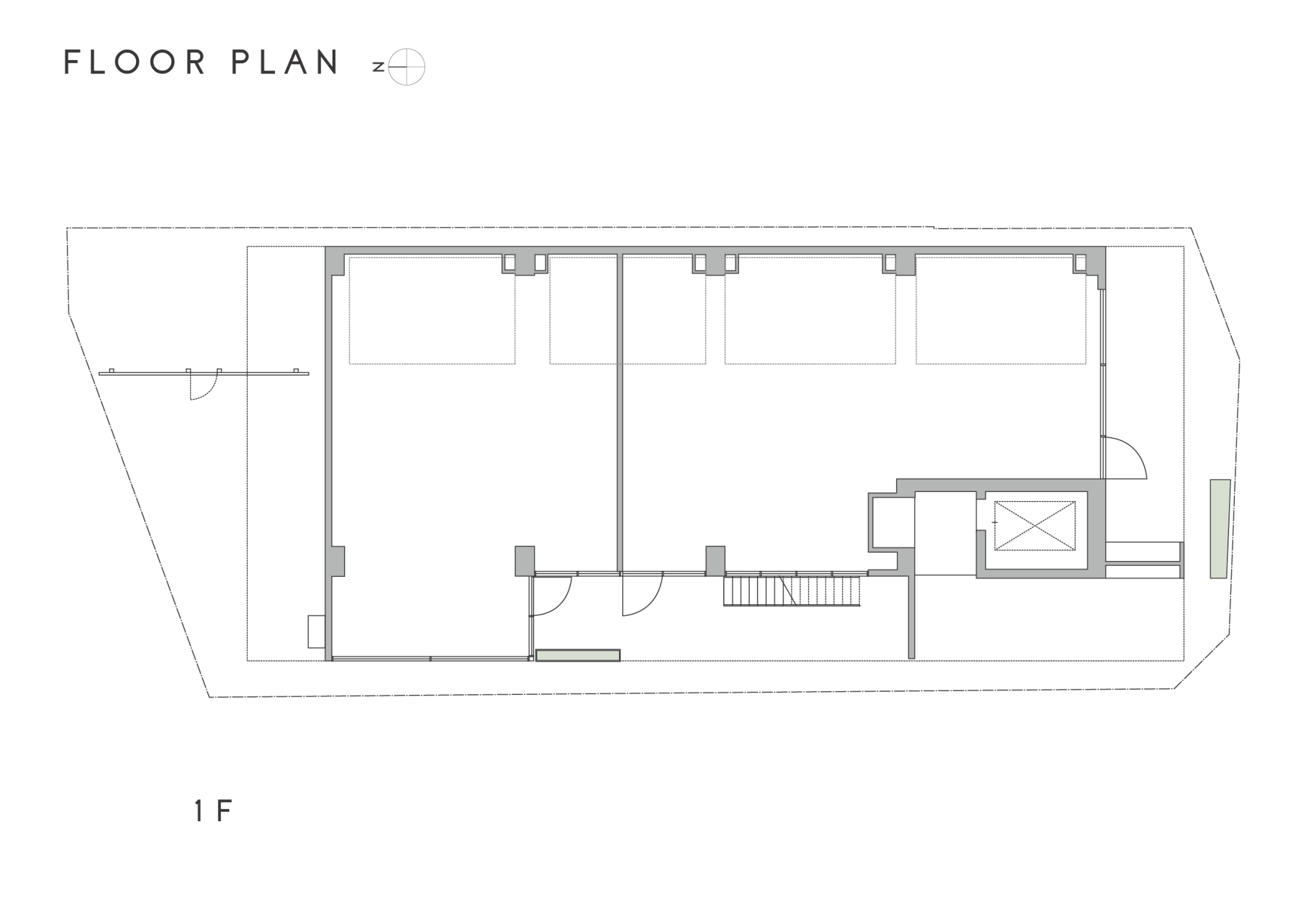
祖師ヶ谷大蔵駅から徒歩1分、落ち着いた住環境に寄り添うテナント・事務所ビルです。利用者の活動が自然と広がる“立体的な路地”のような共用部を備えており、屋内外がゆるやかにつながるこの空間は、地域の人々との偶発的な交流が生まれる場所となるようデザインしました。また、長く使い継がれる建物であるために、将来的な用途変更に柔軟に対応できるフレームを採用。1フロア2区画のシンプルな構成とし、界壁を非構造壁とすることで、区画の一体利用やレイアウト変更にもスムーズに対応できる計画としています。さらに、歩道に面したファサードには、周辺環境に潤いをもたらす植栽を設置。行き交う人の視線を受け止めながら、奥行きを感じさせる緑が街とのつながりをつくり出し、建物そのものが街にひらかれた存在となるよう意図しています。

  • 所在地 東京都世田谷区砧6-39
  • 敷地面積 346.84㎡
  • 建ぺい率 60%
  • 容積率 200%
  • 延床面積 739.76㎡
  • 築年月日 2025年11月
  • 構造・階数 鉄筋コンクリート造 地上4階建
  • 間取り 店舗×5戸、事務所×3戸、店舗・事務所×4戸

CONTACT US

フェイスネットワークではお客様のニーズに合わせたご相談の窓口をご用意しています。
お気軽にご相談・お問い合わせください。