WORKS

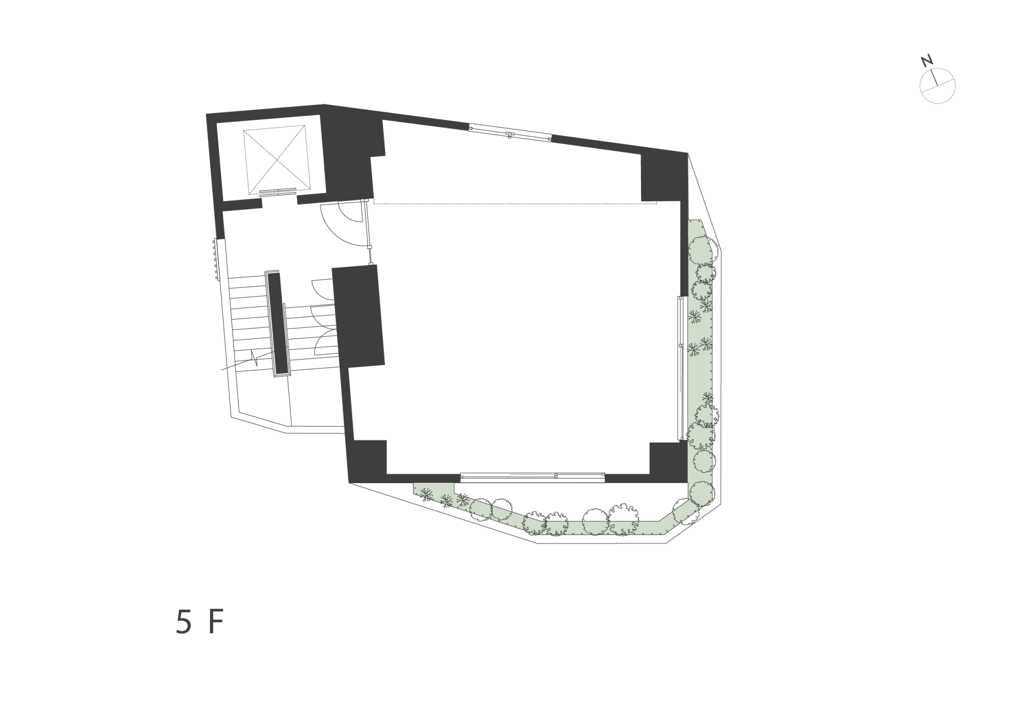
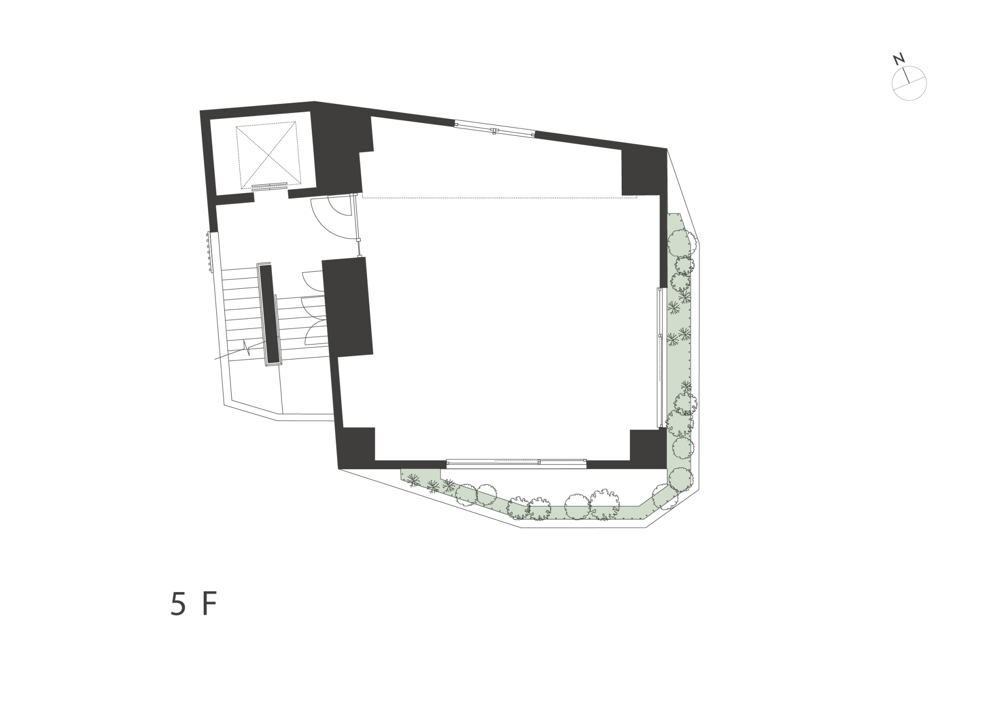
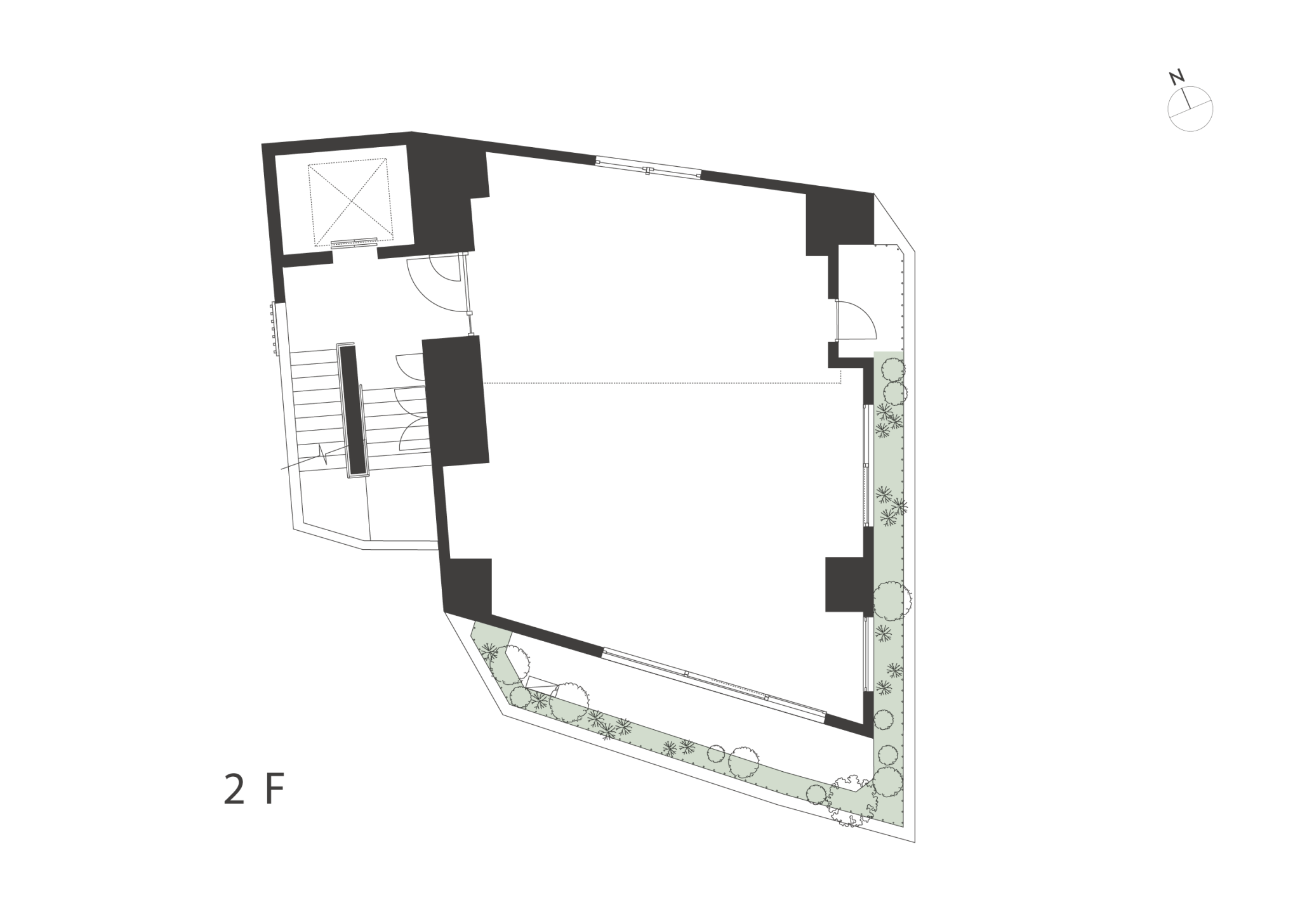
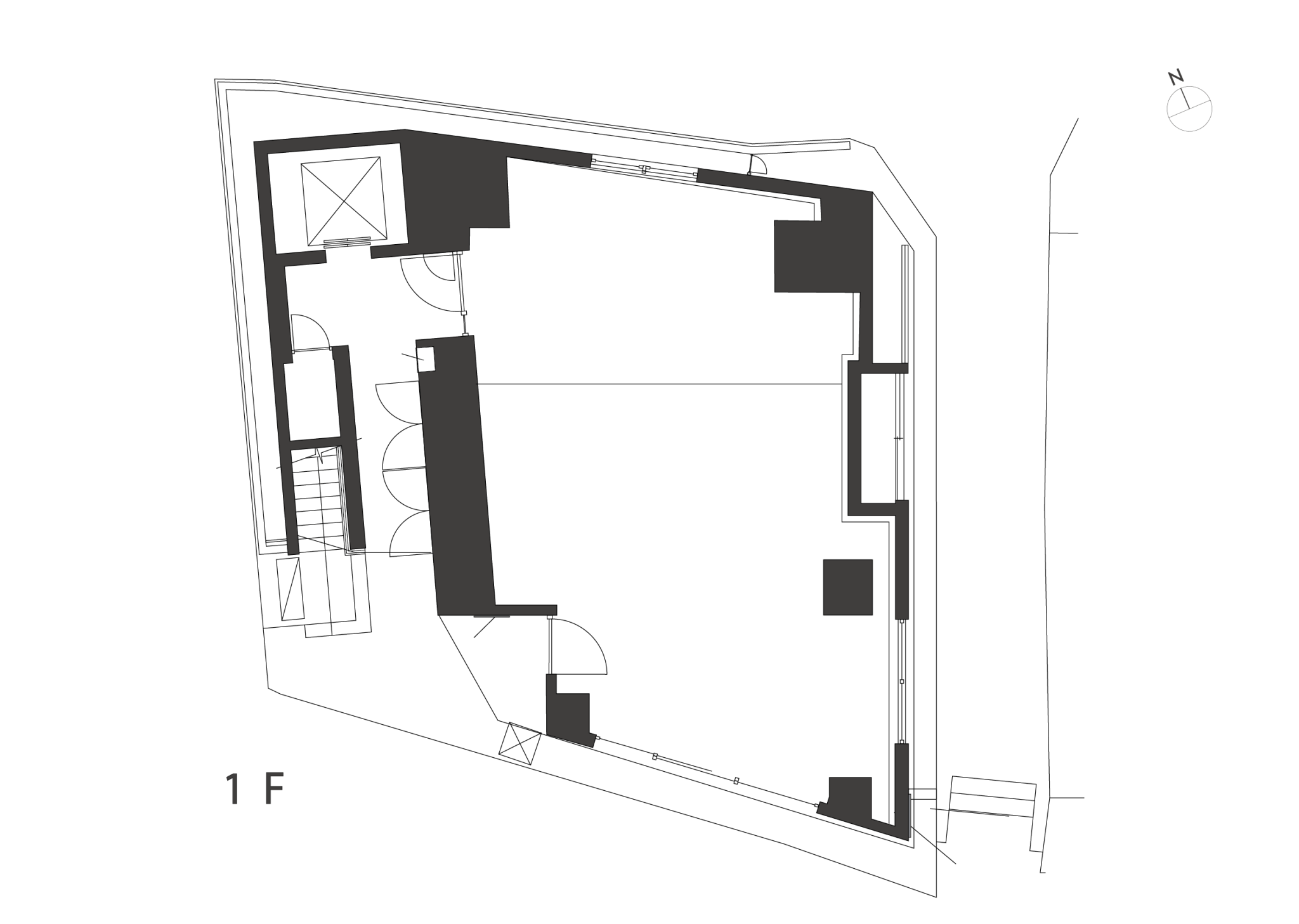
一棟RCマンション

街と一体となった施設づくり

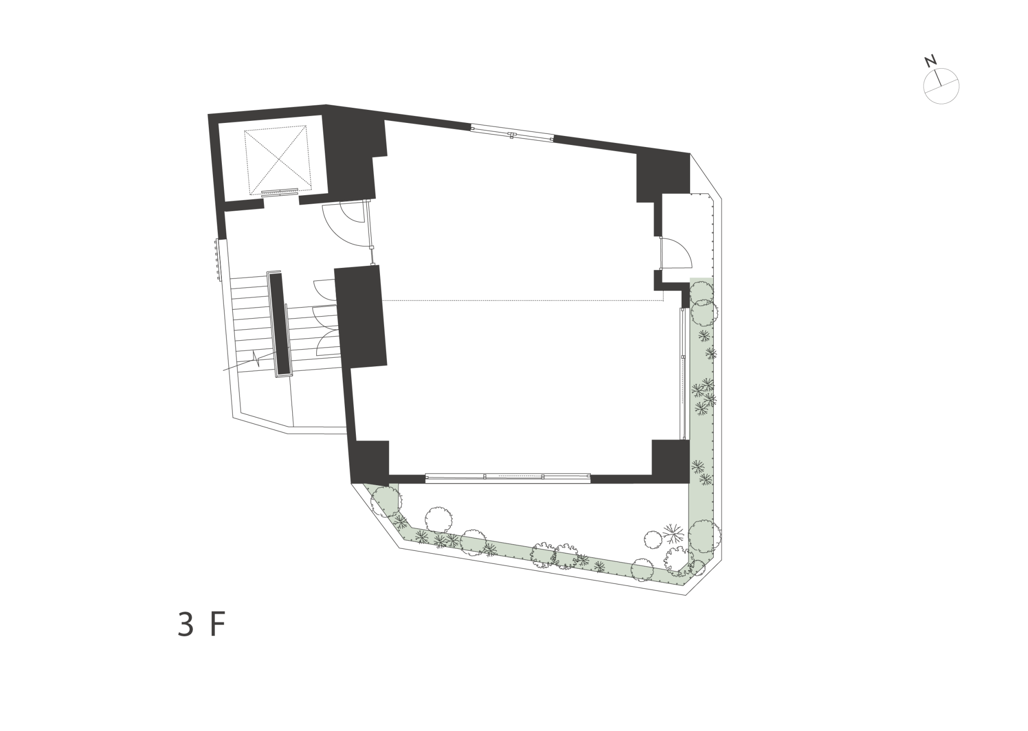
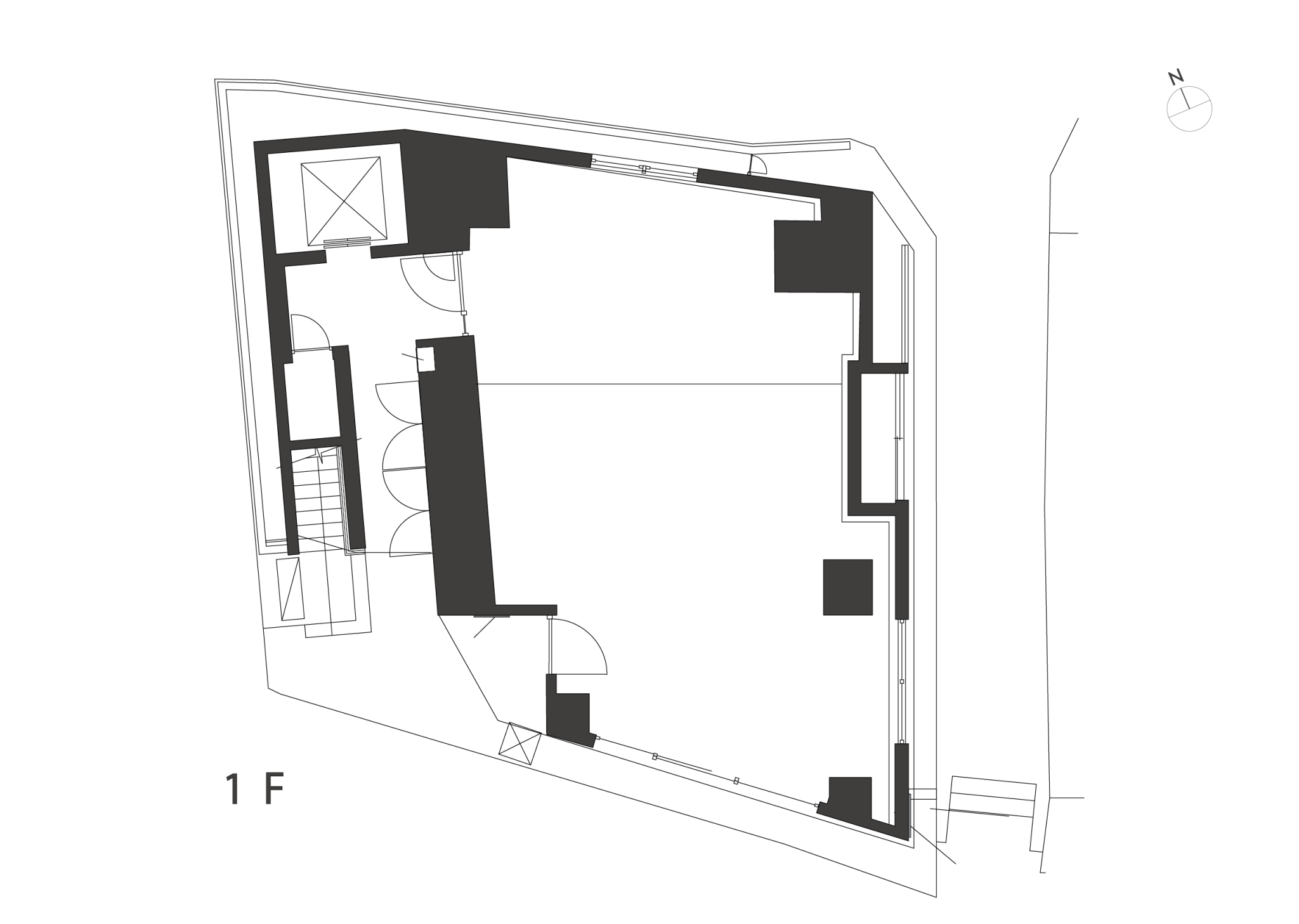
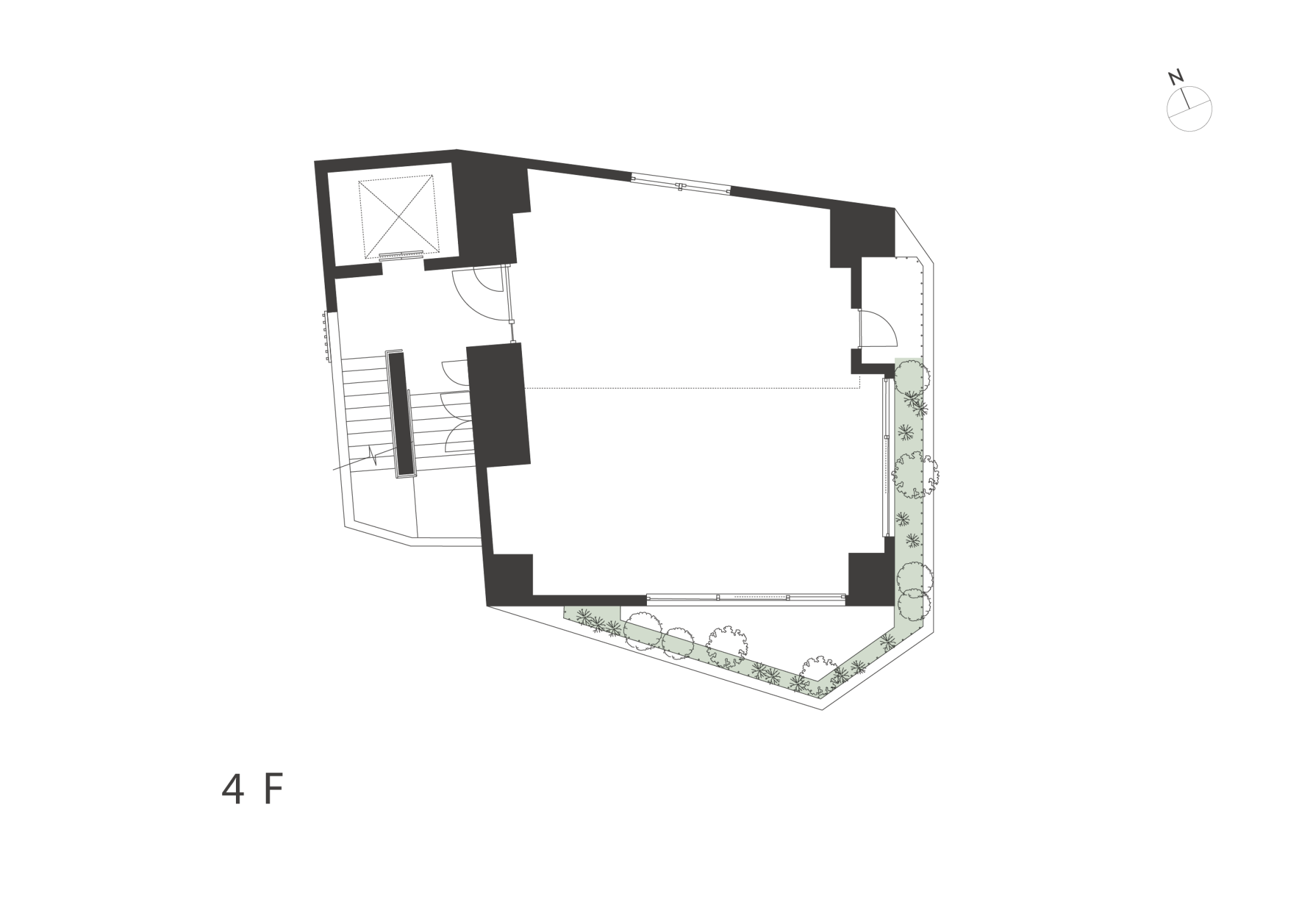
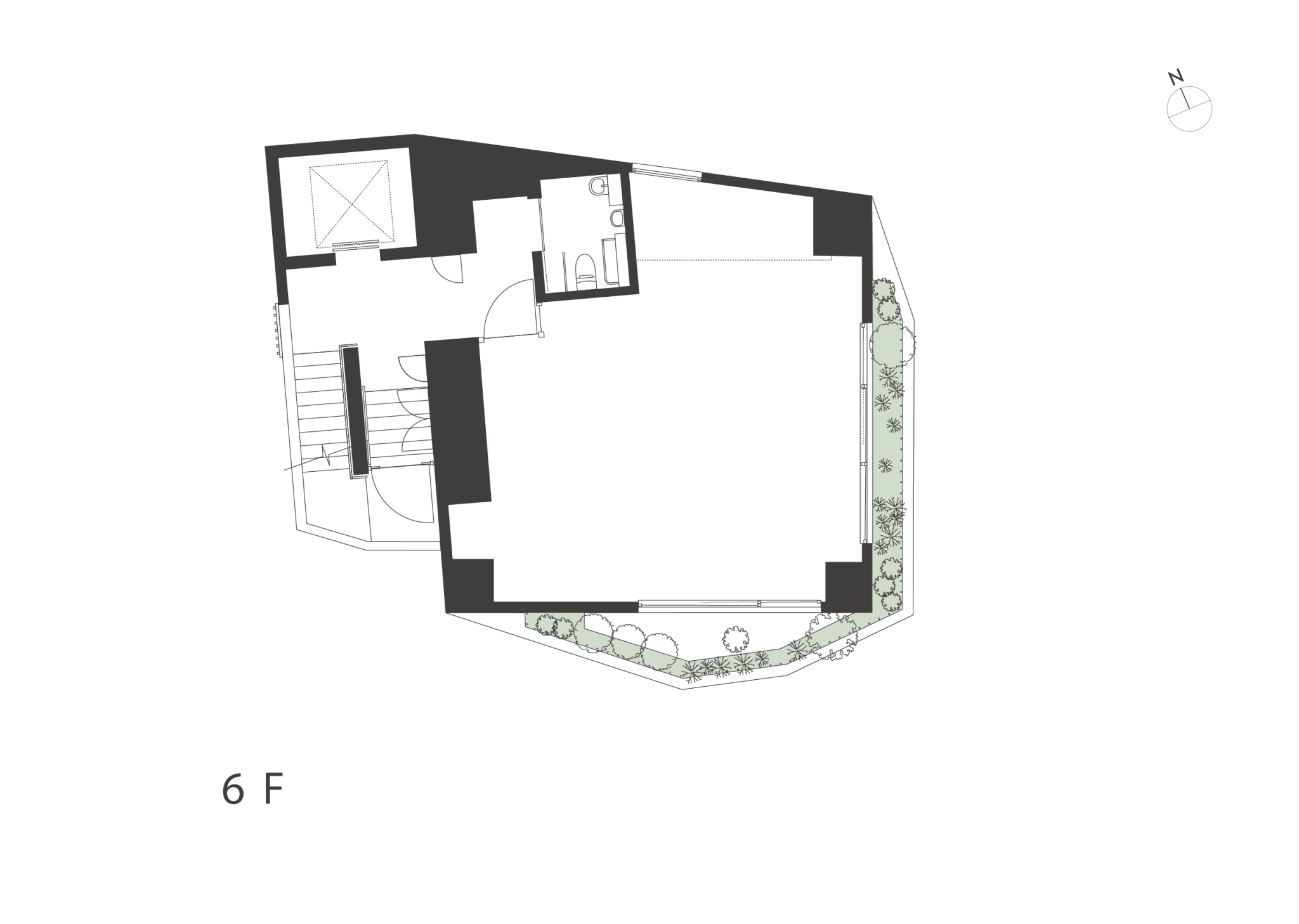
Porte Shimokitazawa

Porte Shimokitazawaは、サブカルチャーとレトロな街並みに加え、近年は緑を基軸とした再開発で新たな魅力を放つ下北沢に誕生しました。本計画は、その流れを汲み、緑を立体的に取り込むテラスを各階に設け、周辺環境と調和しながら開放感あるデザインとしました。ファサードは岩の積層を思わせる造形に植栽を施し、建築というよりも彫刻や自然物のような佇まいを実現。さらに、コンクリート洗出し仕上げによる陰影のある豊かな表情が、街並みに溶け込みながらもアイコニックな存在感を放ちます。時を超えて街に馴染み、人々に親しまれる住まいで、日常に安らぎと誇りをもたらします。

  • 所在地 東京都世田谷区北沢2-23
  • 敷地面積 148.82㎡
  • 建ぺい率 80%
  • 容積率 500%
  • 延床面積 477.98㎡
  • 築年月日 2025年10月
  • 構造・階数 鉄筋コンクリート造 地上6階建
  • 間取り -

CONTACT US

フェイスネットワークではお客様のニーズに合わせたご相談の窓口をご用意しています。
お気軽にご相談・お問い合わせください。