WORKS

一棟RCマンション

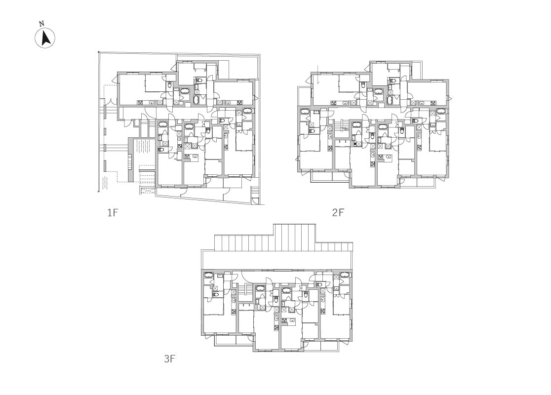
グランデュオ豪徳寺3

招き猫の発祥地としても有名な豪徳寺。最近はおしゃれな飲食店も増え、落ち着いた雰囲気の中にも活気が感じられる人気の街として知られています。コンクリートの外壁とアースカラーを基調とした特徴的なバルコニーフェンスは、周囲の街並みと調和した佇まいとなっております。また、内装にはブラックのサッシや扉を採用し、シックで落ち着いた空間を実現しました。招き猫が出迎えてくれる街で、幸福度の高い暮らしを実現してみませんか。

  • 所在地 東京都世田谷区豪徳寺2-27-3
  • 敷地面積 432.39㎡
  • 建ぺい率 60%
  • 容積率 150%
  • 延床面積 779㎡
  • 築年月日 2024年03月
  • 構造・階数 RC造・地上3階建
  • 間取り 1LDK×9戸、1SLDK×5戸、1K×1戸

CONTACT US

フェイスネットワークではお客様のニーズに合わせたご相談の窓口をご用意しています。
お気軽にご相談・お問い合わせください。