静穏と品格を備えた都市型レジデンス
グランデュオ用賀9
設計中
一棟RCマンション
所在地: 東京都世田谷区上用賀1-14Google MAP
2027.03.26完成予定
進捗度6
- 設計中
- 施工中
- 完成
UPDATED INFO.
- 2026.03.19グランデュオ用賀9のプロジェクトページを公開しました
設計のこだわり
用賀は、渋谷まで田園都市線で約15分、人気の二子玉川へ一駅の好立地。週末には馬事公苑や砧公園まで足を延ばせば、広大な緑の中で過ごすこともできます。本計画では、都市の利便性を享受しながら、自然に包まれた穏やかな暮らしをかなえる「静けさ」と「品格」を備えた都市型レジデンスを目指しました。
街並みに調和する品格ある外観デザイン
外観は、やわらかなブラウンを基調とした落ち着きのある色彩の上階、1層目にはより深みのあるトーンを採用。建物の重心を視覚的に下方に置くことで、全体に安定感のあるたたずまいを演出しています。サッシや手すり、水平リブにはマットブラックを用い、建物全体の輪郭を明確にすることで、端正で洗練された印象を生み出しています。
素材の質感が際立つ落ち着きのあるエントランス
縦目地入りのジョリパットに真鍮(しんちゅう)製の館銘板、入口にはブリックタイルを敷き、素材の質感にこだわったしつらえで品格を感じさせるエントランスに仕上げています。
多様な樹種がもたらす潤いと、街に開かれた穏やかな景観
エントランスを中心に各所へ植栽を施し、緑に包まれたアプローチが訪れる人をやさしく迎えます。高木には、常緑のソヨゴ。中木には、剪定(せんてい)の頻度が少なくローメンテナンスのハイノキやカクレミノ。低木には、人気のシルバープリペットや黄色い小花を咲かせるマホニアコンフューサなど約15種類の樹種を選定しました。
異素材の表情を引き立てる、光あふれる心地よい暮らし
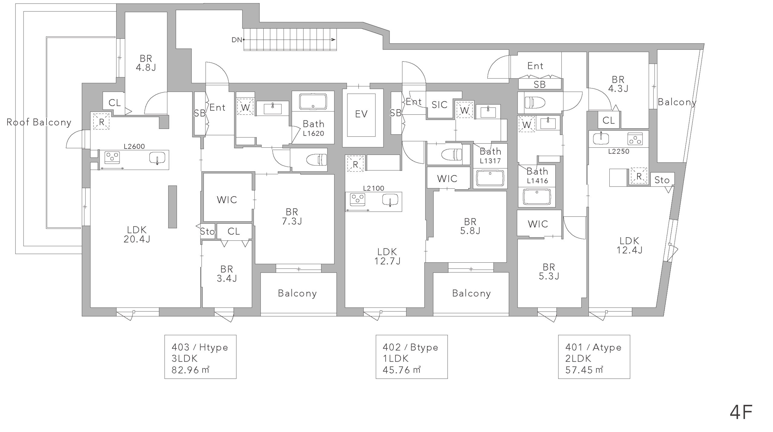
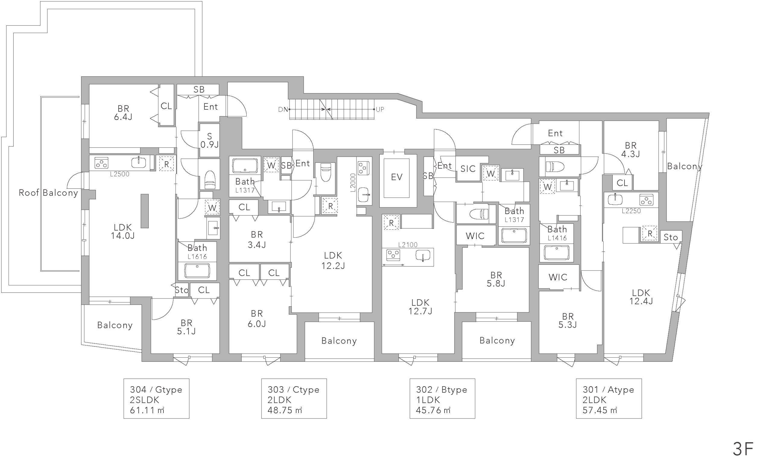
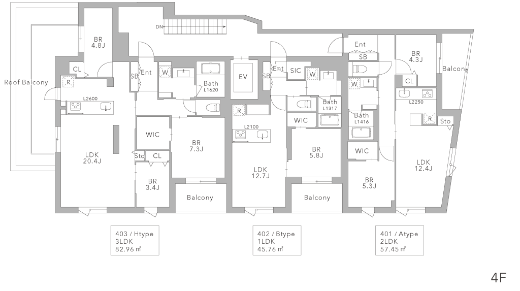
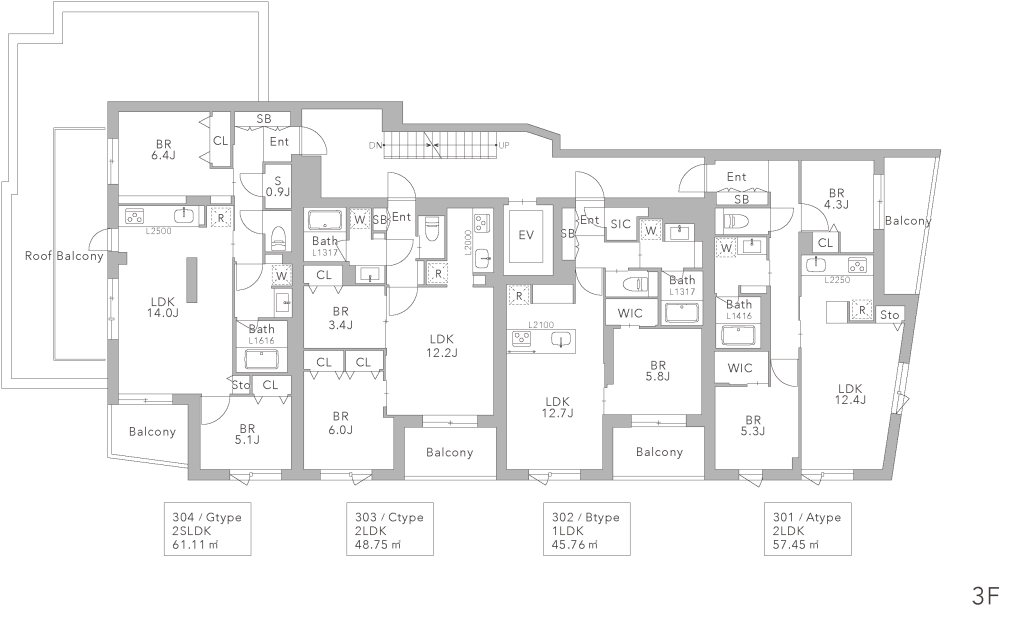
住戸はグレートーンを基調に木・石・金属といった異素材の質感を活かした内装とし、流行に左右されない長く快適に過ごせる空間としました。また、高さのあるサッシにより十分な採光と開放感を確保し、昼白色と白熱色を切り替えられる照明で、用途や時間帯に応じた快適な光環境を実現しています。最上階のHタイプには、一般的なバルコニーに加え、広々としたルーフバルコニーを設けることで、日当たりや開放感にすぐれた、もうひとつのリビングのような屋外空間が魅力です。アウトドアリビングやガーデニングなど、思い思いの時間を楽しめる、多様なライフスタイルに応える柔軟性を備えています。
計画地

田園都市線 用賀駅 徒歩約11分
田園都市線 桜新町駅 徒歩約13分
周辺施設
買い物・飲食店
- セブンイレブン世田谷上用賀1丁目店 徒歩約2分
- まいばすけっと上用賀1丁目店 徒歩約5分
- ライフEC桜新町店 徒歩約7分
- オーケー用賀駅前店 徒歩約12分
レジャー・施設
- エニタイムフィットネス用賀店 徒歩約9分
- JRA馬事公苑 徒歩約10分
- 用賀神社 徒歩約11分
- 長谷川町子美術館 徒歩約16分
その他
- 上用賀歯科矯正歯科 徒歩約4分
- 玉川警察署馬事公苑前駐在所 徒歩約6分
- 世田谷用賀郵便局 徒歩約6分
- 世田谷区弦巻区民集会所 徒歩約10分
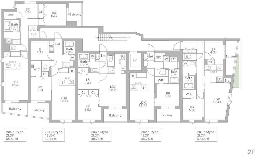
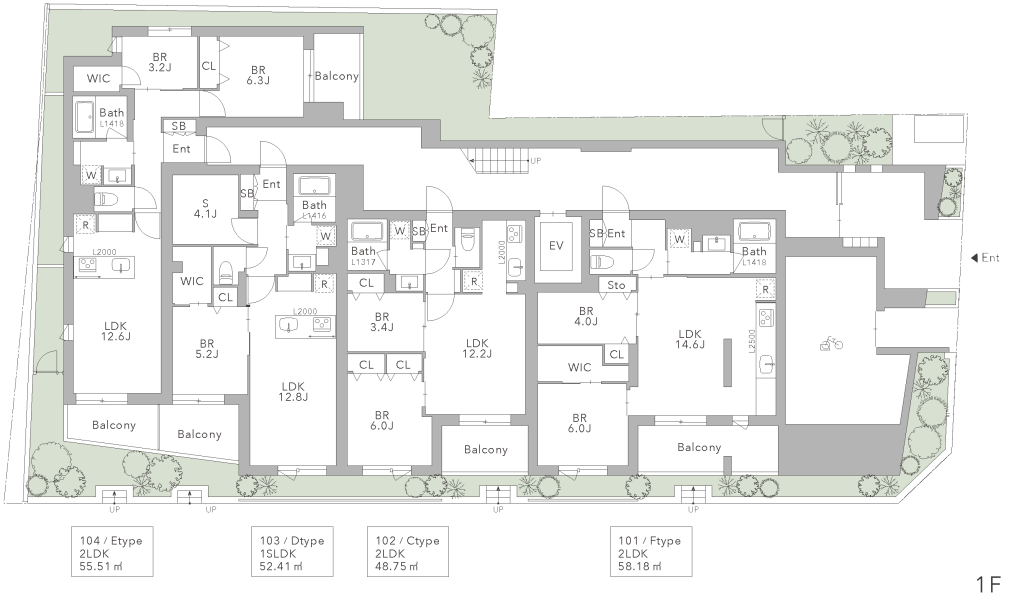
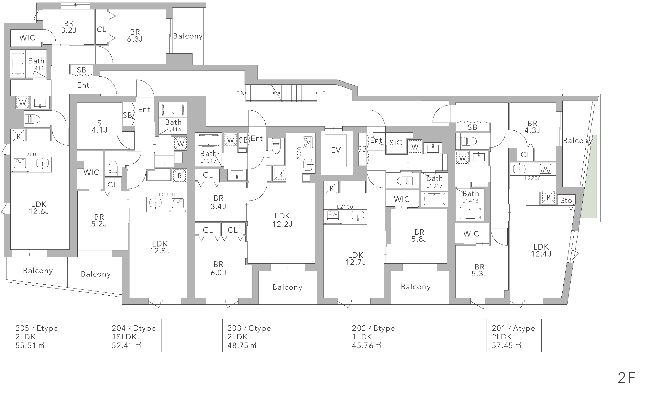
物件概要
- 物件名グランデュオ用賀9
- 所在地東京都世田谷区上用賀1-14
- 敷地面積447.27㎡
- 土地権利所有権
- 用途地域第一種中高層住居専用地域
- 指定建ぺい率60%
- 指定容積率200%
- 接道西側 6m 南側 7.9m
- 高度地区19m第二種高度地区
- 防火地域準防火地域
- 構造・規模鉄筋コンクリート造 地上4階建
- 延床面積1,072.12㎡
- 貸床面積873.97㎡
- 用途共同住宅
- 竣工年月2027年3月26日予定
- 総戸数16戸
- 建築確認番号-
ARCHITECT
設計
安達敏明
Toshiaki Adachi
安達建築設計事務所
1974年山口県生まれ。1996年に広島工業大学工学部を卒業後、1999年より東京計画研究所に勤務。2007年からは同社の社外取締役を務める。2007年、安達建築設計事務所を設立。大手ゼネコンや組織設計事務所などの主要プロジェクトに参画し、集合住宅を中心に多様な用途の建築設計に携わる。事務所フィロソフィーは、「人々に愛される、未来へとつながるデザイン」。建築が地域に新たなシナジーをもたらし、関わるすべての人が幸せで健康に過ごせることを願い、日々の設計に取り組んでいる。
安達建築設計事務所
1974年山口県生まれ。1996年に広島工業大学工学部を卒業後、1999年より東京計画研究所に勤務。2007年からは同社の社外取締役を務める。2007年、安達建築設計事務所を設立。大手ゼネコンや組織設計事務所などの主要プロジェクトに参画し、集合住宅を中心に多様な用途の建築設計に携わる。事務所フィロソフィーは、「人々に愛される、未来へとつながるデザイン」。建築が地域に新たなシナジーをもたらし、関わるすべての人が幸せで健康に過ごせることを願い、日々の設計に取り組んでいる。
本ページへの掲載内容は、計画段階の図面やコンセプトを基にしており、実際のものとは異なる可能性があります。
施工上の変更が生じた場合は、建物が完成した時点の状態を優先します。
方位に若干の差異がある可能性もありますので、ご了承ください。
物件に関するお問い合わせ
※当社開発物件は投資用一棟販売不動産であり、新築一棟RCマンション、新築RC戸建邸宅を販売しています。
※賃貸に関するお問い合わせの方は上のボタンよりご連絡ください