ヴァーティカルガーデンのある都市型複合ビル
グランデュオ大手町
設計中
一棟RCマンション
所在地: 東京都千代田区内神田1-10Google MAP
2027.05.28完成予定
進捗度32
- 設計中
- 施工中
- 完成
UPDATED INFO.
- 2026.02.09グランデュオ大手町のプロジェクトページを公開しました
設計のこだわり
「地上から垂直に連続する庭園=ヴァーティカルガーデン」 をテーマとする都市型複合ビルの計画です。細長いペンシルビルの立面に設けたスリットから、有機的な木のフレームと植栽が溢れ出し、硬質な押出成形セメント板との対比によって、都市空間に自然のリズムを呼び込みます。各階に設けたバルコニーにより、働く人や住まう人が地上から離れた場所にいても、身近に緑を感じることが可能です。
1・2階の店舗部分は開放的な構成とし、柱・梁を木材仕上げとすることで、上層階との一体感を確保しています。上層階は、バルコニーと一体的な木天井仕上とすることで、内と外のつながりを強め、都市にいながら自然を感じられる空間を生み出しています。単なるペンシルビルではなく、ヴァーティカルガーデンによって自然豊かな環境を提供する建築を目指しました。
街と建築をつなぐ、低層部とサイネージのデザイン

都市との関係性をつくる、低層部の素材と構成
1・2階の飲食店舗はガラス張りによる開放的なつくりとし、柱・梁を木材仕上げとすることで、上層階まで続く建築全体の一体感を生み出します。街に対して開かれた表情をつくりがら、建物の世界観を低層部から明確に示す設計としました。
建築の「顔」となるサイネージ計画
2階上部の庇に設けたサイネージは、広告機能に加え、建物の低層部に明確なアクセントを与える要素として位置づけています。夜間には光の演出によって通りに表情を与え、歩行者に対して建築の存在を印象づける都市的な装置となります。
用途と利用者を切り分ける動線計画
飲食店舗は前面道路から直接アクセスできる計画とし、オフィスや住戸の利用者と導線を明確に分けています。さらにオフィス・住戸部分においても、来訪者用のメインエントランスと、居住者動線となるバックエントランスを分けています。2面道路の立地を活かし、用途や利用シーンに応じた安心で効率的な動線計画としています。これにより、都市型複合ビルとしての機能性とセキュリティを高めています。
都市に自然を立ち上げる「ヴァーティカルガーデン」

細長い立面に設けたスリットから木フレームと植栽が立ち上がり、硬質な外装との対比によって都市に自然のリズムをもたらします。地上から上層階まで緑が連続する、立体的な庭園を建築の主題としています。
個々の区画へと行き渡る「ヴァーティカルガーデン」

建築全体を彩るヴァーティカルガーデンは、立面の意匠にとどまらず、各階に設けたバルコニーを通じて個々の区画へと引き込まれます。オフィスで働く人や住戸に暮らす人々が、それぞれの場所から緑や外気を身近に感じられるように計画することで、都市に立つ建築の中に、日常的に自然を享受できる環境を重ね合わせています。
計画地

JR中央線 神田駅 徒歩約6分
東京メトロ半蔵門線 大手町駅 徒歩約6分
周辺施設
買い物・飲食店
- セブン-イレブン内神田1丁目店 徒歩約1分
- 万英プロデュース神田店 徒歩約1分
- まいばすけっと神田駅西口商店街 徒歩約2分
- エニタイムフィットネス内神田店 徒歩約1分
レジャー・施設
- エニタイムフィットネス内神田店 徒歩約1分
- 神田駅西口商店街 徒歩約3分
- 神田診療所 徒歩約4分
- KANDA SQUARE 芝生広場 徒歩約8分
その他
- 神田警察署 司町交番 徒歩約4分
- 神田錦町郵便局 徒歩約5分
- 城北信用金庫神田支店 徒歩約3分
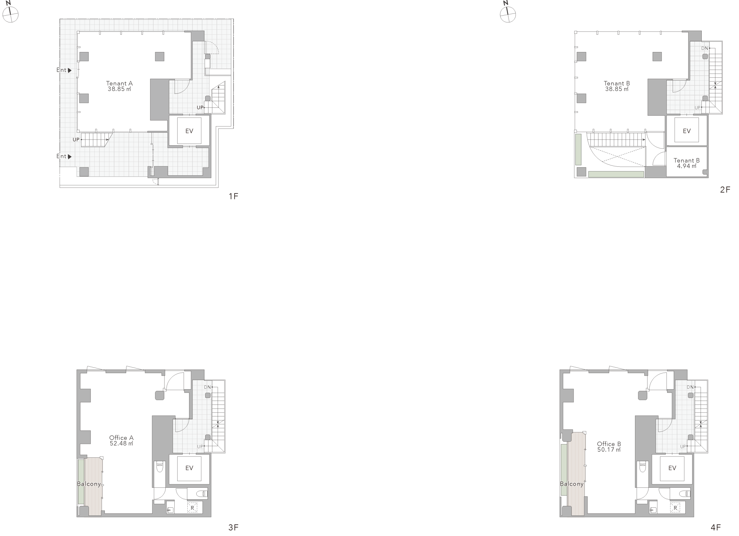
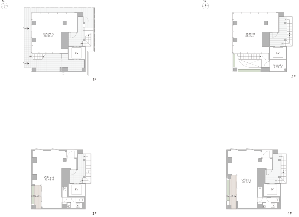
物件概要
- 物件名グランデュオ大手町
- 所在地東京都千代田区内神田1-10
- 敷地面積106.86㎡
- 土地権利所有権
- 用途地域商業地域
- 指定建ぺい率80%
- 指定容積率600%
- 接道西側 7.90m 北側 2.98m
- 高度地区-
- 防火地域防火地域
- 構造・規模鉄骨造 地上12階建
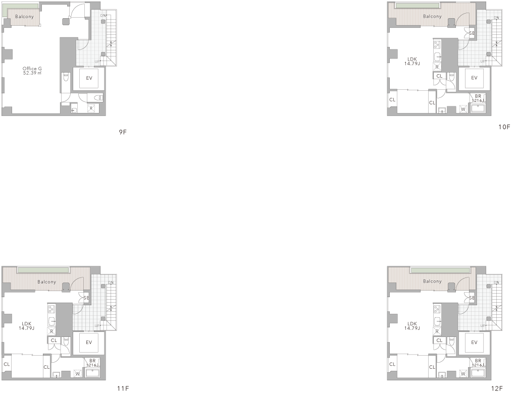
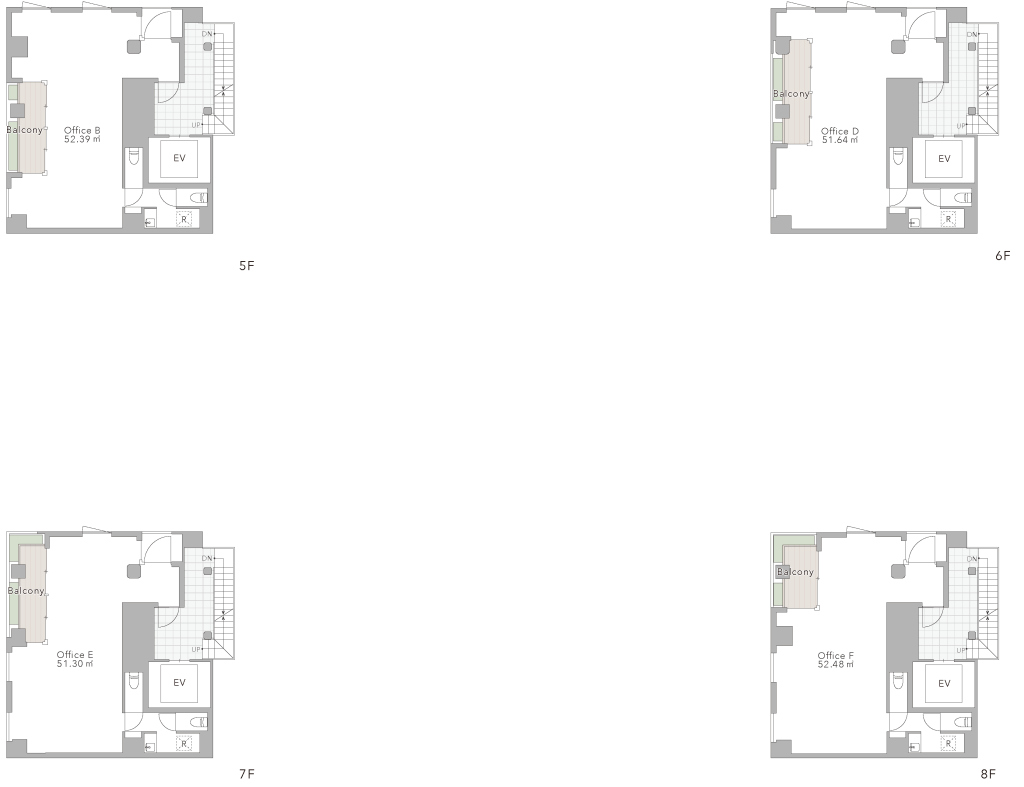
- 延床面積703.20㎡
- 貸床面積618.78㎡
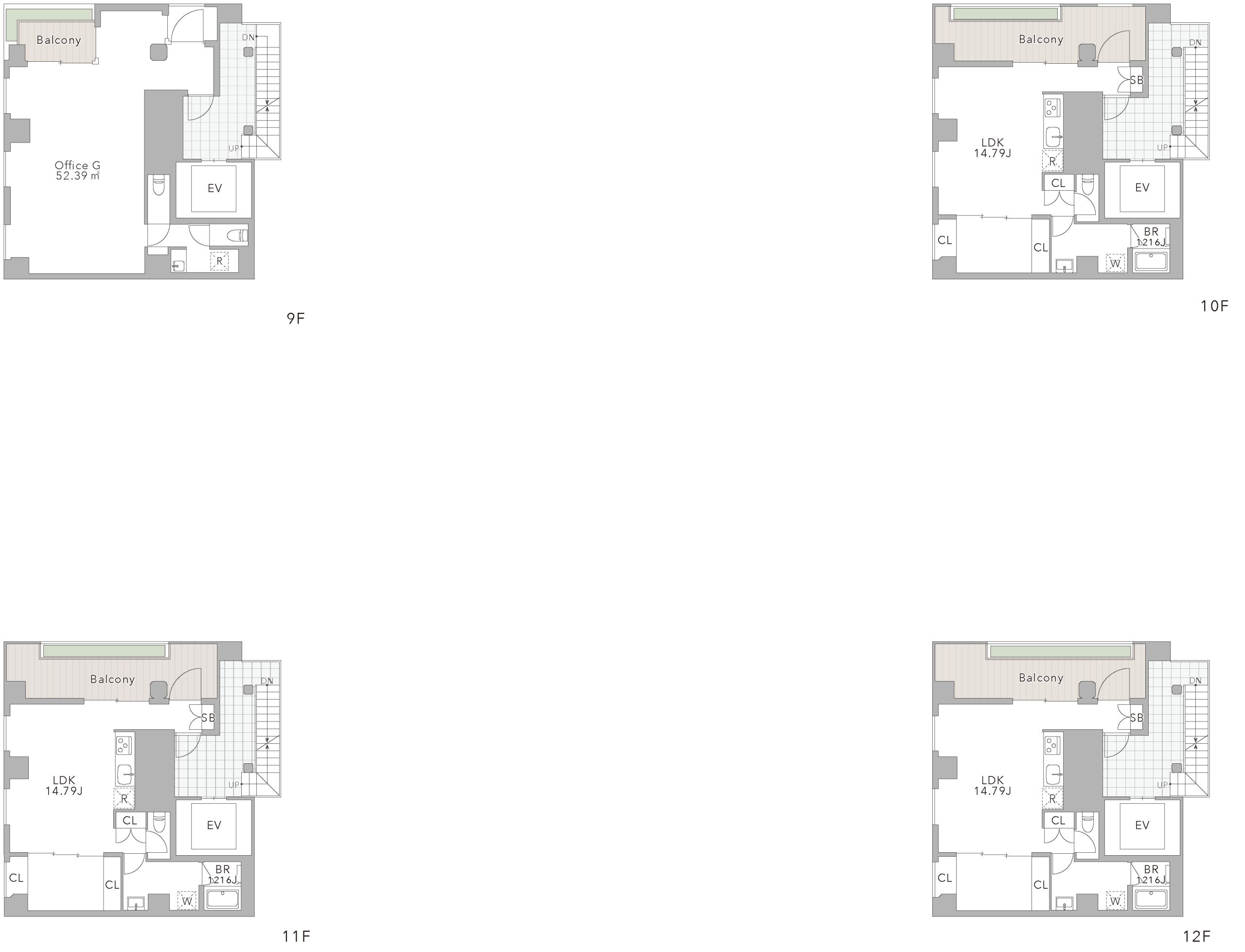
- 用途店舗、事務所、共同住宅
- 竣工年月2027年5月28日予定
- 総戸数12戸(店舗×2、事務所×7、住戸×3)
- 建築確認番号-
ARCHITECT
設計
小山 光
Akira Koyama
株式会社キー・オペレーション
2005年の事務所設立以来、プロジェクト・マネジメントおよび設計監理業務を通じて、ZARA、Bershka、ZARA Home、Stradivarius、Hermès、Berluti、Levi’s、Calvin Klein、Charles & Keith、Starbucks など、世界的ブランドの店舗プロジェクトを20年間で190件以上手がけてきました。これらの商業プロジェクトと並行して、住宅や別荘、マンションリノベーション、集合住宅、商業テナントビル、映画館、オフィス、複合ビル、墓園、駅施設、ランドスケープなど、幅広い分野のプロジェクトに取り組んでいます。
私たちの目標は、シンプルでありながら革新的な空間構成や建築技術を用い、首尾一貫した論理的かつ美しい解決策を導き出すことです。そのために、クライアントのご要望を丁寧に分析し、都市や社会の文脈を読み取り、地域の歴史や文化、法規制、自然環境を踏まえた上で、適切な材料や技術を選び抜きます。
また、建築は単に形をつくる行為にとどまらず、運営し続けるための経済性とも不可分です。私たちは、建築が都市の経済を活性化し、文化を受け入れ、社会課題の解決にも寄与できると信じています。
1970 東京生まれ
1994 東京都立大学工学部建築学科卒業(小林克弘研究室)
1996 ロンドン大学バートレット校建築修士課程優等修了
1998 東京工業大学建築学科修士課程修了(坂本一成研究室)
1998 アトリエ・コ創立
1998 Zara Japan Corp.
1998-2001 Studio E Architects
2001 ARB(Architects RegisterationBoard) 登録
2002-2003 David ChipperfieldArchitects
2002 英国王立建築家協会(RIBA)会員
2003-2005 Zara Japan Corp.店舗開発部長
2005 (有)アトリエ・コ・アーキテクツ設立
2006 (株)キー・オペレーションに改称
株式会社キー・オペレーション
2005年の事務所設立以来、プロジェクト・マネジメントおよび設計監理業務を通じて、ZARA、Bershka、ZARA Home、Stradivarius、Hermès、Berluti、Levi’s、Calvin Klein、Charles & Keith、Starbucks など、世界的ブランドの店舗プロジェクトを20年間で190件以上手がけてきました。これらの商業プロジェクトと並行して、住宅や別荘、マンションリノベーション、集合住宅、商業テナントビル、映画館、オフィス、複合ビル、墓園、駅施設、ランドスケープなど、幅広い分野のプロジェクトに取り組んでいます。
私たちの目標は、シンプルでありながら革新的な空間構成や建築技術を用い、首尾一貫した論理的かつ美しい解決策を導き出すことです。そのために、クライアントのご要望を丁寧に分析し、都市や社会の文脈を読み取り、地域の歴史や文化、法規制、自然環境を踏まえた上で、適切な材料や技術を選び抜きます。
また、建築は単に形をつくる行為にとどまらず、運営し続けるための経済性とも不可分です。私たちは、建築が都市の経済を活性化し、文化を受け入れ、社会課題の解決にも寄与できると信じています。
1970 東京生まれ
1994 東京都立大学工学部建築学科卒業(小林克弘研究室)
1996 ロンドン大学バートレット校建築修士課程優等修了
1998 東京工業大学建築学科修士課程修了(坂本一成研究室)
1998 アトリエ・コ創立
1998 Zara Japan Corp.
1998-2001 Studio E Architects
2001 ARB(Architects RegisterationBoard) 登録
2002-2003 David ChipperfieldArchitects
2002 英国王立建築家協会(RIBA)会員
2003-2005 Zara Japan Corp.店舗開発部長
2005 (有)アトリエ・コ・アーキテクツ設立
2006 (株)キー・オペレーションに改称
OTHER PROJECT
同じエリアのプロジェクト
本ページへの掲載内容は、計画段階の図面やコンセプトを基にしており、実際のものとは異なる可能性があります。
施工上の変更が生じた場合は、建物が完成した時点の状態を優先します。
方位に若干の差異がある可能性もありますので、ご了承ください。
物件に関するお問い合わせ
※当社開発物件は投資用一棟販売不動産であり、新築一棟RCマンション、新築RC戸建邸宅を販売しています。
※賃貸に関するお問い合わせの方は上のボタンよりご連絡ください