UPDATED INFO.
- 2026.01.15グランデュオ三宿3のプロジェクトページを公開しました
設計のこだわり
本プロジェクトは、緑豊かな住環境が広がる三宿エリアに計画されました。周辺には学校や公園、烏山川緑道の豊かな緑が点在し、都心にありながらも、日々にやすらぎをもたらします。この恵まれた自然環境を享受できるよう、建物は分棟配置とし、光と風が心地よく抜ける住環境を実現しました。また、エントランスから続く緑道のような共用廊下を設け、建物全体に周囲の緑と自然の気配を取り込んでいます。外観は、緑を引き立てるブロンズ色の落ち着いたトーンで統一。三宿の気品ある街並みに、静かに呼応する佇まいを目指しました。さらに、各住戸にはアルコーブを設けることで、戸建てのようなプライベート感を確保。都市に暮らしながらも、自然と調和した穏やかな日常を叶える住まいです。
緑道のような共用廊下

エントランスから共用廊下にかけて緑豊かな緑道のような空間をつくります。ふと足を止めて深呼吸したくなるような、心ほどける安らぎの空間です。
街と暮らしの境界に、光と風がめぐる
ブロンズ色の連なる壁

建物を分節する壁が、街のスケールに呼応しながら、奥行きと静けさを生み出します。特徴的なブロンズ色の壁は、三宿の木々や葉を支える土や幹をイメージしました。
風と光の抜ける住戸配置

建物を分棟配置とすることで、住戸同士のプライバシーを確保し、光と風の抜ける快適な住環境をつくり出します。ライトコートを通じて採光できるため、1階でも明るい環境が得られます。
計画地
田園都市線 三軒茶屋駅 徒歩約10分
田園都市線 池尻大橋駅 徒歩約11分
周辺施設
買い物・飲食店
- ローソン池尻三宿通店 徒歩約2分
- オーケー池尻大橋店 徒歩約4分
- ウエルシア池尻3丁目店 徒歩約6分
- スーパーベルクス世田谷太子堂店 徒歩約6分
レジャー・施設
- 世田谷区立池尻三丁目公園 徒歩約5分
- Sauna3 徒歩約6分
- エニタイムフィットネス三軒茶屋太子堂 徒歩約8分
- 世田谷区立世田谷公園 徒歩約9分
その他
- 世田谷池尻郵便局 徒歩約2分
- みしゅくクリニック 徒歩約2分
- 東京消防庁世田谷消防署三宿出張所 徒歩約5分
- 太子堂内科クリニック 徒歩約10分
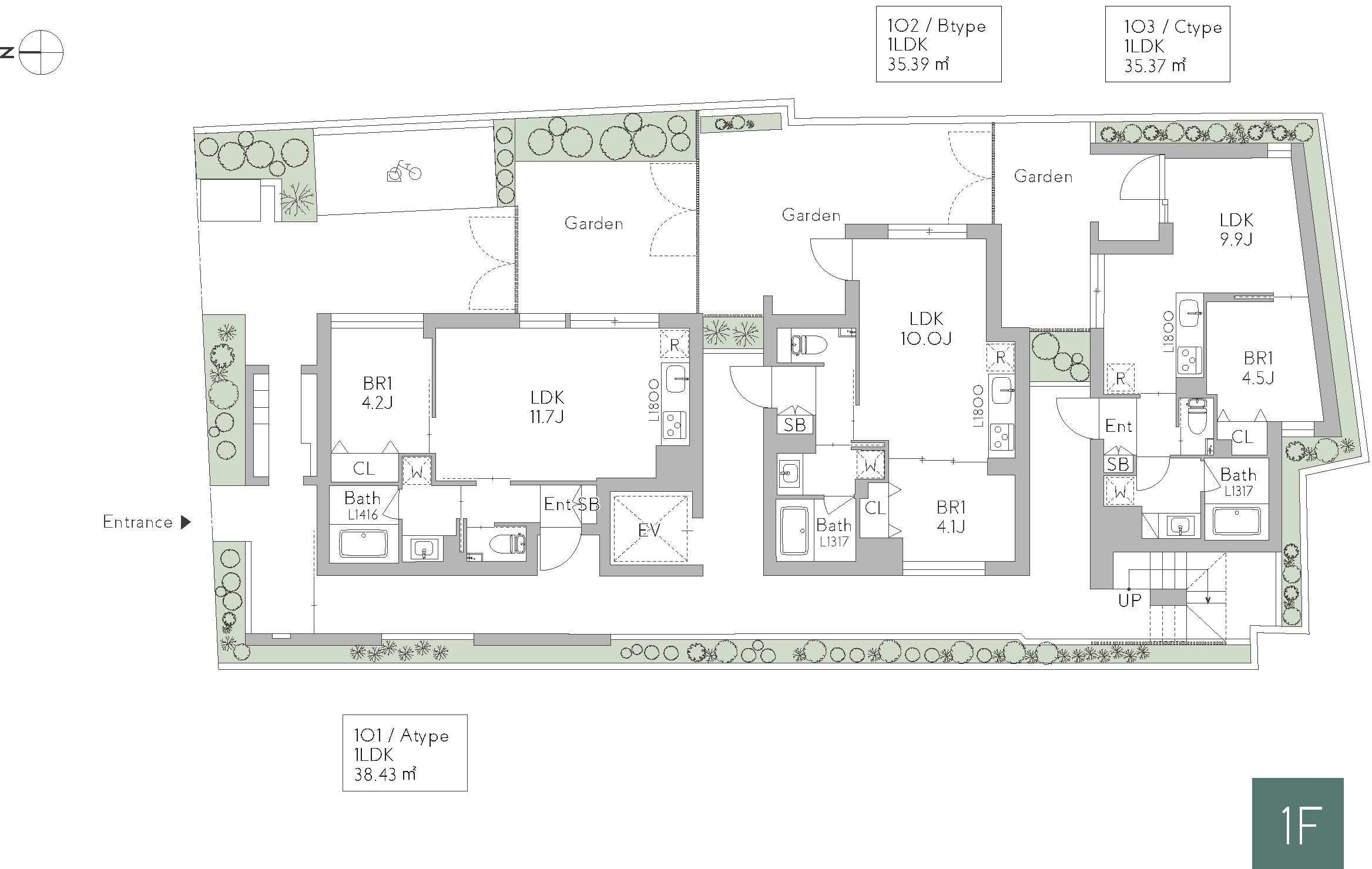
物件概要
- 物件名グランデュオ三宿3
- 所在地東京都世田谷区三宿1-11
- 敷地面積291.17㎡
- 土地権利所有権
- 用途地域第一種住居専用地域
- 指定建ぺい率60%
- 指定容積率200%
- 接道4.0m
- 高度地区19m 第二種高度地区
- 防火地域準防火地域
- 構造・規模鉄筋コンクリート造 地上4階建
- 延床面積619.81㎡
- 貸床面積458.63㎡
- 用途共同住宅
- 竣工年月2027年3月15日予定
- 総戸数12戸
- 建築確認番号-
ARCHITECT
設計
小林進一
Shinichi Kobayashi
コバヤシ401.Design room株式会社
1972年東京生まれ。東洋大学大学院工学研究科を卒業し、設計事務所勤務を経て、2010年に1級建築士事務所コバヤシ401.Design roomを設立。2012年に沖縄オフィスを開設。東京と沖縄の2拠点で活動し、異なる環境での経験を相互に生かしながら、提案の幅を広げている。戸建住宅、集合住宅、テナント、クリニックなど幅広く手がける。設計したクリニック「T Dental Frontier」で第6回沖縄建築賞一般部門の奨励賞を受賞。その他、第9回沖縄建築賞 住宅建築部門正賞、JCD OKINAWA 空間デザイン賞2023 金賞、第12回建築九州賞 入賞など受賞多数。
コバヤシ401.Design room株式会社
1972年東京生まれ。東洋大学大学院工学研究科を卒業し、設計事務所勤務を経て、2010年に1級建築士事務所コバヤシ401.Design roomを設立。2012年に沖縄オフィスを開設。東京と沖縄の2拠点で活動し、異なる環境での経験を相互に生かしながら、提案の幅を広げている。戸建住宅、集合住宅、テナント、クリニックなど幅広く手がける。設計したクリニック「T Dental Frontier」で第6回沖縄建築賞一般部門の奨励賞を受賞。その他、第9回沖縄建築賞 住宅建築部門正賞、JCD OKINAWA 空間デザイン賞2023 金賞、第12回建築九州賞 入賞など受賞多数。
設計
白砂孝洋
Takahiro Shirasuna
白砂孝洋
Takahiro Shirasuna
白砂孝洋建築設計事務所
1982年神奈川県生まれ。2004年に日本大学理工学部海洋建築工学科を卒業後、小宮功建築設計事務所、㈱ESPAD環境建築研究所にて経験を積み、2013年に一級建築士事務所 白砂孝洋建築設計事務所を設立。住宅などの新築、リノベーション、古民家改修、インテリアなどの場所づくりを手掛ける。北は秋田から西は愛媛まで、規模や用途を問わず多様なプロジェクトに携わる中で、日々の営みに寄り添う空間づくりを一貫した設計の原点としている。2014年住まいの環境デザイン・アワード、2015年第2回サンワカンパニーデザインコンペ優秀賞、2017年「OZONEリノベーション事例展」閲覧者人気賞など受賞多数。
OTHER PROJECT
同じエリアのプロジェクト
本ページへの掲載内容は、計画段階の図面やコンセプトを基にしており、実際のものとは異なる可能性があります。
施工上の変更が生じた場合は、建物が完成した時点の状態を優先します。
方位に若干の差異がある可能性もありますので、ご了承ください。
物件に関するお問い合わせ
※当社開発物件は投資用一棟販売不動産であり、新築一棟RCマンション、新築RC戸建邸宅を販売しています。
※賃貸に関するお問い合わせの方は上のボタンよりご連絡ください