UPDATED INFO.
- 2026.01.15グランデュオ祖師谷8のプロジェクトページを公開しました
設計のこだわり
祖師谷大蔵駅は砧公園や祖師谷公園などの豊かな自然に恵まれ、静けさと温もりに包まれた穏やかな街並みが広がっています。本計画では、緑あふれる中庭など、生活に豊かさや癒しを与える要素を取り入れ、「暮らしのオアシス」となる住宅を提案しました。
建物のマテリアルには温もりを感じる素材を採用し、より「自然」を感じられる計画としています。内観もナチュラルカラーで統一することで、落ち着きのある安らぎの空間とします。
緑のある生活

※掲載画像はイメージです
中庭や屋上に植栽計画を行うことで、日常生活のなかで、木々の成長を感じたり、木漏れ日を感じる空間は生活に癒しを提供します。
コミュニティを築く中庭

※掲載画像はイメージです
緑豊かな中庭を囲むように住戸を配置することで、庭の植栽や差し込む光を住民同士で共有し、コミュニケーション空間を形成します。また、周囲の視線を気にせずに窓を開放できたり通風を十分に確保できたりと、プライバシーの守られた静謐な生活を送ることができます。
帰りたくなる動線計画

※掲載画像はイメージです
エントランスを抜け、共用部から各住戸に入る。そんな動線の中に植栽を設け、自然を感じながら帰ることで日常から離れてほっと一息つけるような動線計画としました。また、照明についても、温かみのある色を採用することで、帰宅した人を迎え入れるような空間を演出します。
計画地

小田急線 祖師ヶ谷大蔵駅 徒歩約7分
周辺施設
買い物・飲食店
- ローソン祖師谷二丁目店 徒歩約3分
- ビッグ・エー世田谷祖師谷店 徒歩約3分
- やおきゅう 徒歩約3分
- セブン-イレブン 世田谷祖師谷一丁目店 徒歩約6分
レジャー・施設
- マシンピラティス&フィットネス ソエルスタジオ祖師ヶ谷大蔵店 徒歩約3分
- 世田谷区立ふれあい遊歩道 徒歩約4分
- 第六天神社 徒歩約6分
- ウルトラマン商店街 徒歩約7分
その他
- 成城警察署祖師谷地域安全センター 徒歩約3分
- 祖師谷まちづくりセンター 徒歩約3分
- 世田谷祖師谷四郵便局 徒歩約3分
- みずほ銀行ATM祖師谷団地前出張所 徒歩約4分
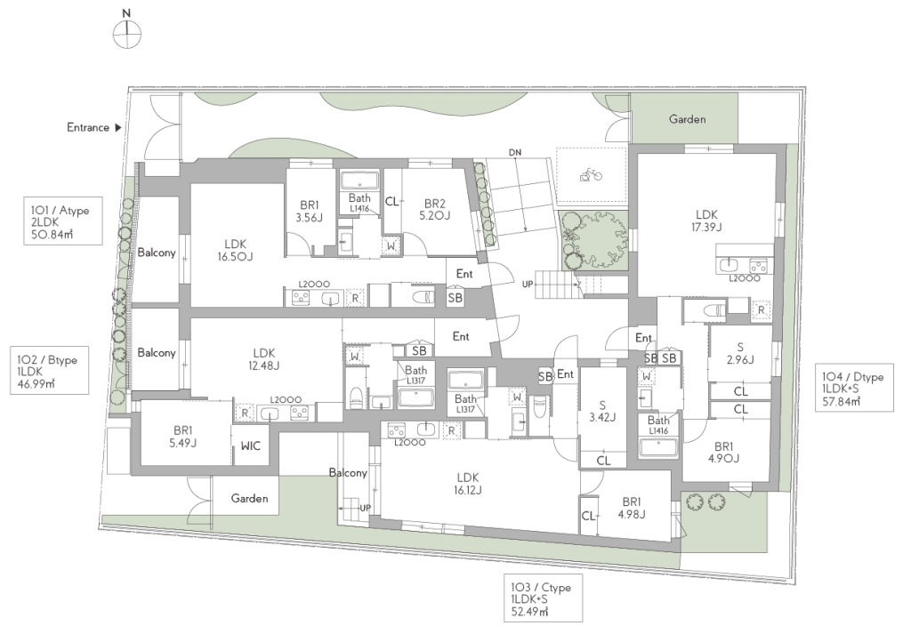
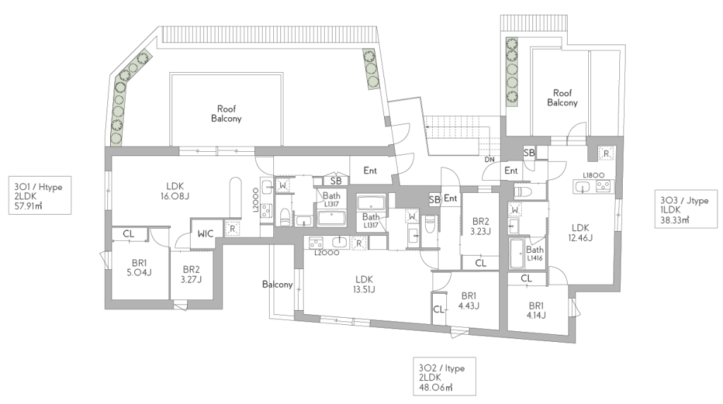
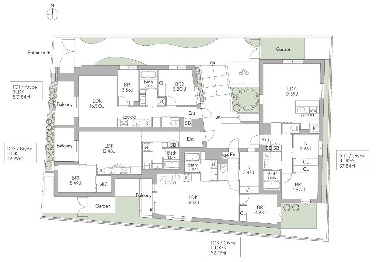
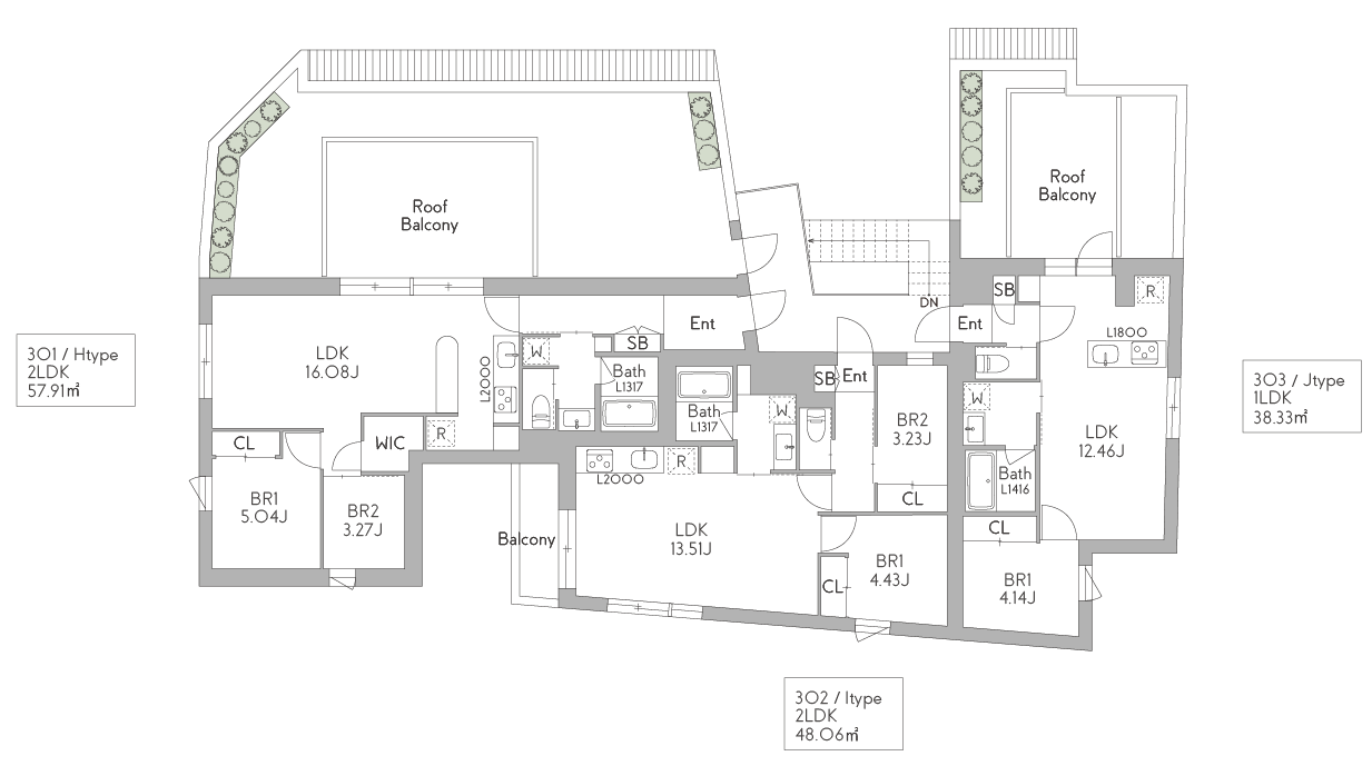
物件概要
- 物件名グランデュオ祖師谷8
- 所在地東京都世田谷区祖師谷4-1
- 敷地面積384.64㎡
- 土地権利所有権
- 用途地域第一種低層住居専用地域
- 指定建ぺい率60%
- 指定容積率150%
- 接道西側 4.0m
- 高度地区第一種高度地区
- 防火地域準防火地域
- 構造・規模鉄筋コンクリート造 地上3階建
- 延床面積617.31㎡
- 貸床面積565.41㎡
- 用途共同住宅
- 竣工年月2027年2月16日予定
- 総戸数11戸
- 建築確認番号-
ARCHITECT
設計
フェイスネットワーク/建築デザイナー
OTHER PROJECT
同じエリアのプロジェクト
本ページへの掲載内容は、計画段階の図面やコンセプトを基にしており、実際のものとは異なる可能性があります。
施工上の変更が生じた場合は、建物が完成した時点の状態を優先します。
方位に若干の差異がある可能性もありますので、ご了承ください。
物件に関するお問い合わせ
※当社開発物件は投資用一棟販売不動産であり、新築一棟RCマンション、新築RC戸建邸宅を販売しています。
※賃貸に関するお問い合わせの方は上のボタンよりご連絡ください