UPDATED INFO.
- 2025.10.16グランデュオ経堂20のプロジェクトページを公開しました。
- 2025.11.05施工中に更新しました
- 2025.11.12竣工予定日を更新しました
設計のこだわり
経堂駅と千歳船橋駅の中間地点に位置する本敷地のエリアは、駅周辺の商業空間、大学によって生まれる学生街としての雰囲気、緑豊かな公園や緑道に囲まれた散歩やサイクリングに適した環境、閑静な住宅街といった様々な顔を持っています。世代や生活圏の異なる様々な人の混在する環境は生活の選択肢を広げ、自分らしい住まい方の起点となることが期待できます。テーマとした【 écru 】エクリュという言葉は素材そのまま、その風合、温かみのあるナチュラルカラーといった「生成り」を意味する言葉として使われています。本物件では地域の特性を踏まえ、生活する人の自分らしさ、そのままの自分を尊重するような空間づくりを計画します。
【Liberation】解放
※掲載写真はイメージです
開放的な空間が生活に余裕を与え、自分らしさを表現する為の生活の余白を作り出します。さらに視線の抜ける開口からの光と景色が実空間以上の広がりを生活に与え、入居者の心理的な解放を促します。
【Immersion】没頭

趣味や仕事、プライベートな環境で没頭できる空間が生活に必要な集中をもたらします。土間や和室といった設えが、入居者それぞれの生活基礎に寄り添い、より自分らしく生活できる空間を演出します。
【Color】色彩

※掲載写真はイメージです
素材そのままというコンセプトを体現するように、空間のカラーデザインを生成り色を基調としたもので整えます。外観はその様相に締りのある色彩でアクセントを加えることで、優しいながらも整えられた外観としています。
計画地

小田急小田原線 千歳船橋駅より徒歩約7分
周辺施設
買い物・飲食店
- クリエイトS・D 世田谷経堂店 徒歩約3分
- セブン-イレブン 世田谷桜丘2丁目店 徒歩約3分
- ライフ経堂店 徒歩約4分
- フレッシュネスバーガー千歳船橋 徒歩約7分
レジャー・施設
- 経堂南地区会館 徒歩約1分
- JOYFIT24 経堂 徒歩約3分
- 石仏公園 徒歩約6分
- 世田谷区立桜丘図書館 徒歩約12分
その他
- 千歳郵便局 徒歩約5分
- 成城警察署 千歳船橋駅前交番 徒歩約8分
- 医療法人社団 土筆会 桜丘クリニック 徒歩約12分
- 経堂つるが歯科医院 徒歩約1分
物件概要
- 物件名グランデュオ経堂20
- 所在地東京都世田谷区経堂5-20
- 敷地面積286.39㎡
- 土地権利所有権
- 用途地域第一種住居地域/第一種低層住居専用地域
- 指定建ぺい率60%
- 指定容積率200%/150%
- 接道11m
- 高度地区19m第二種高度地区/第一種高度地区
- 防火地域準防火地域
- 構造・規模鉄筋コンクリート造 地上5階建
- 延床面積762.03㎡
- 貸床面積578.00㎡
- 用途共同住宅
- 竣工年月2026年9月29日予定
- 総戸数9戸
- 建築確認番号第25ABNT-01-0358号
ARCHITECT
設計
フェイスネットワーク/建築デザイナー
OTHER PROJECT
同じエリアのプロジェクト
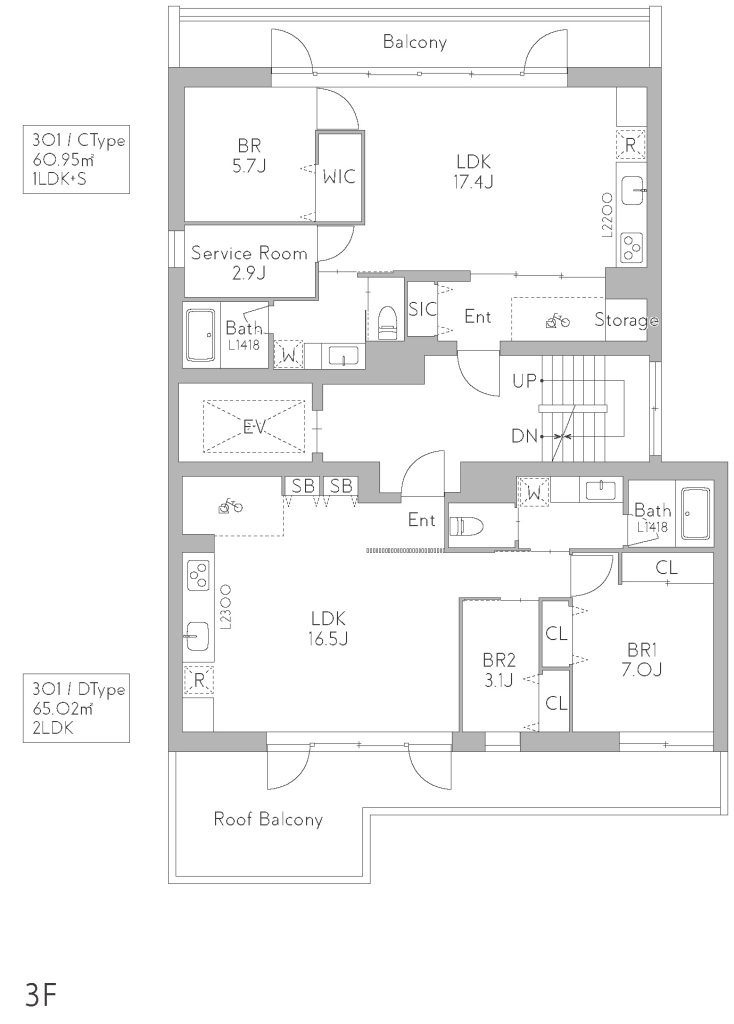
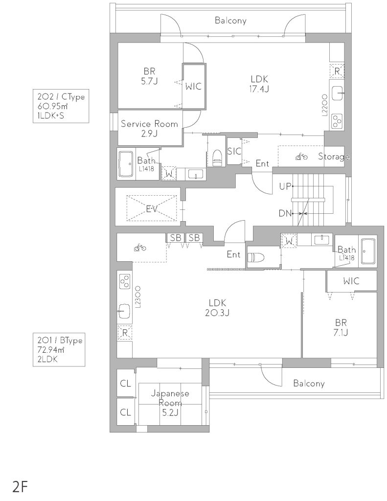
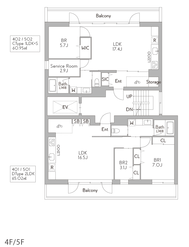
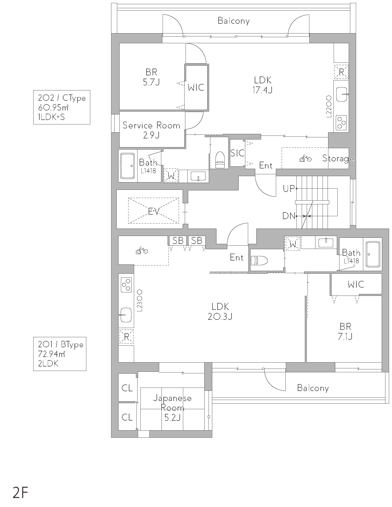
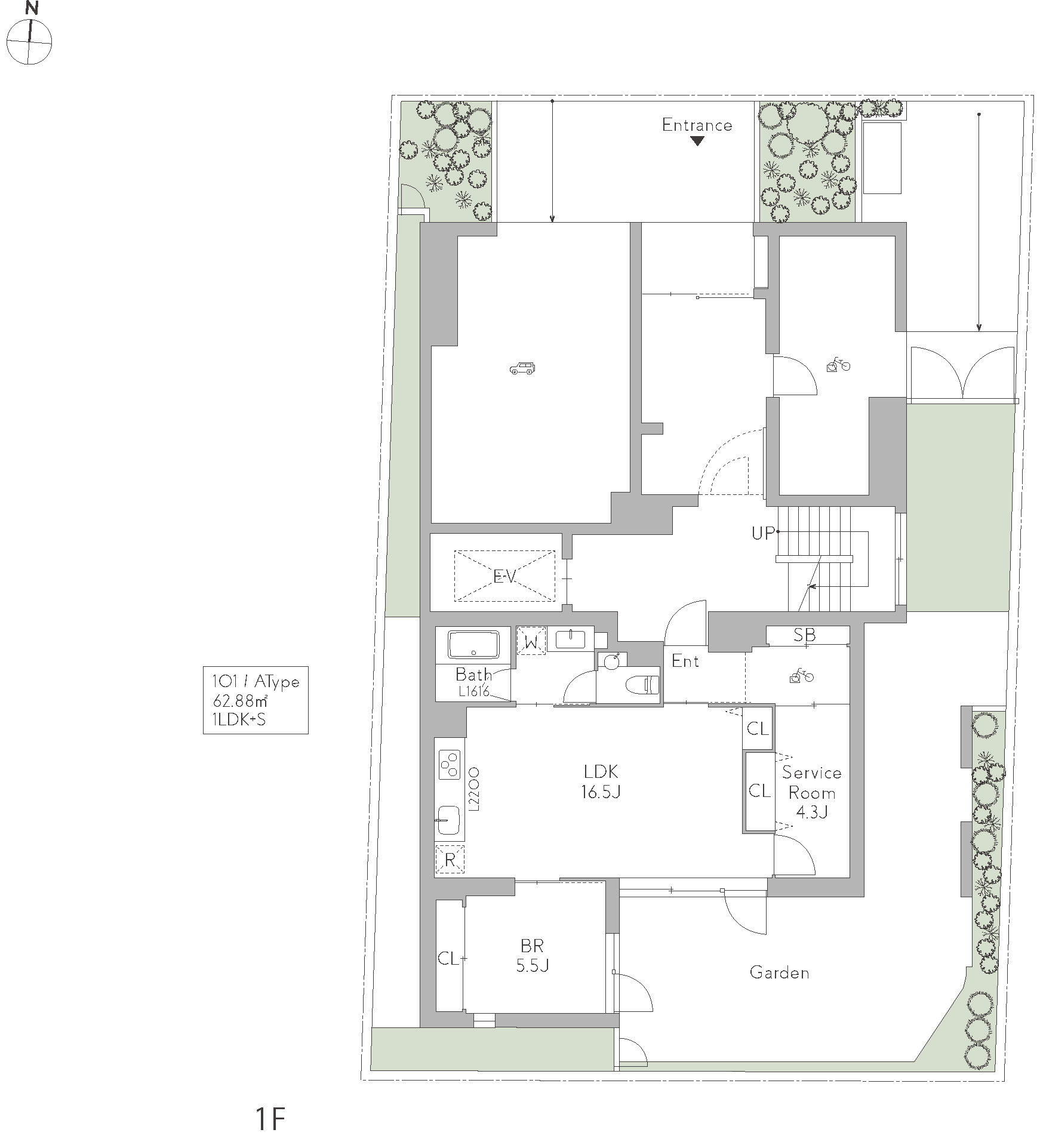
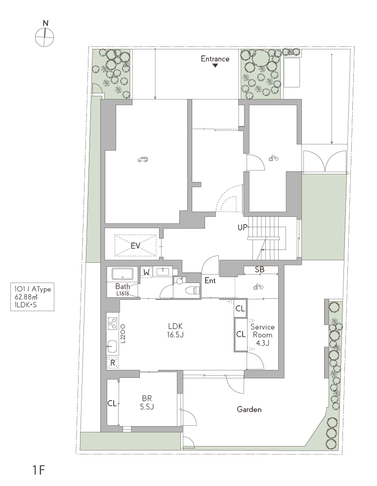
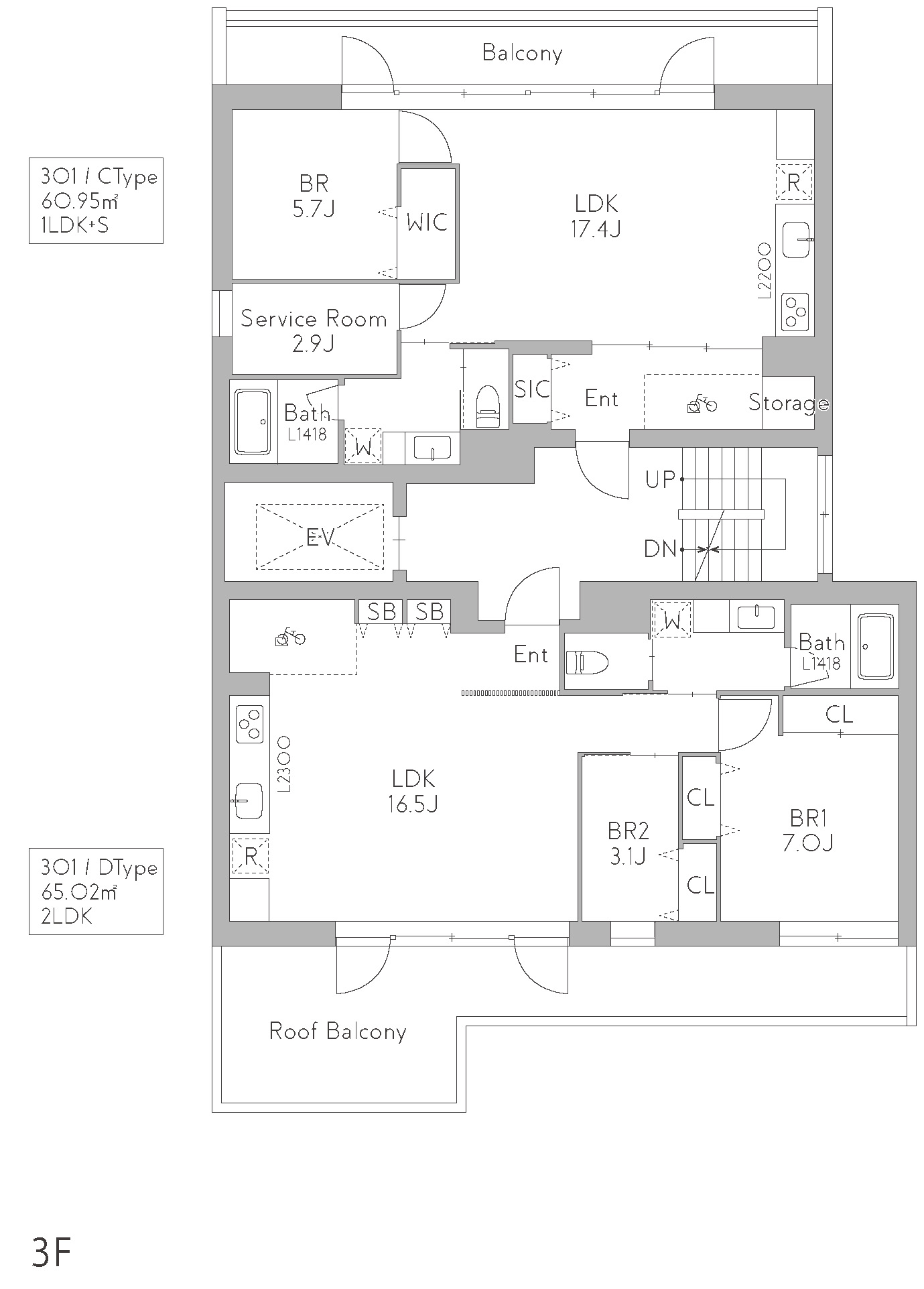
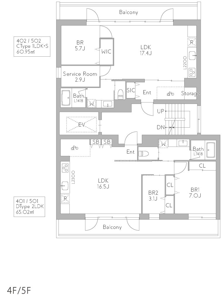
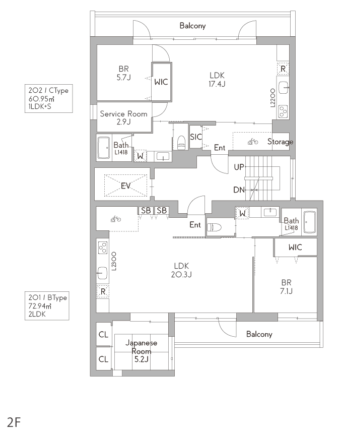
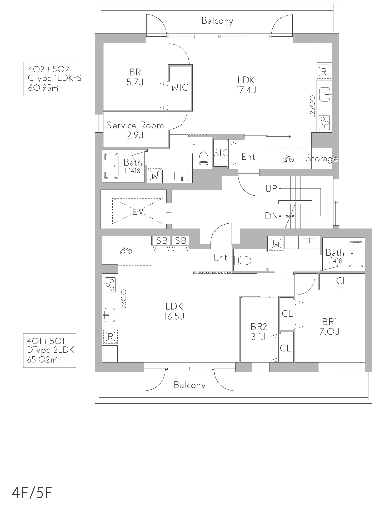
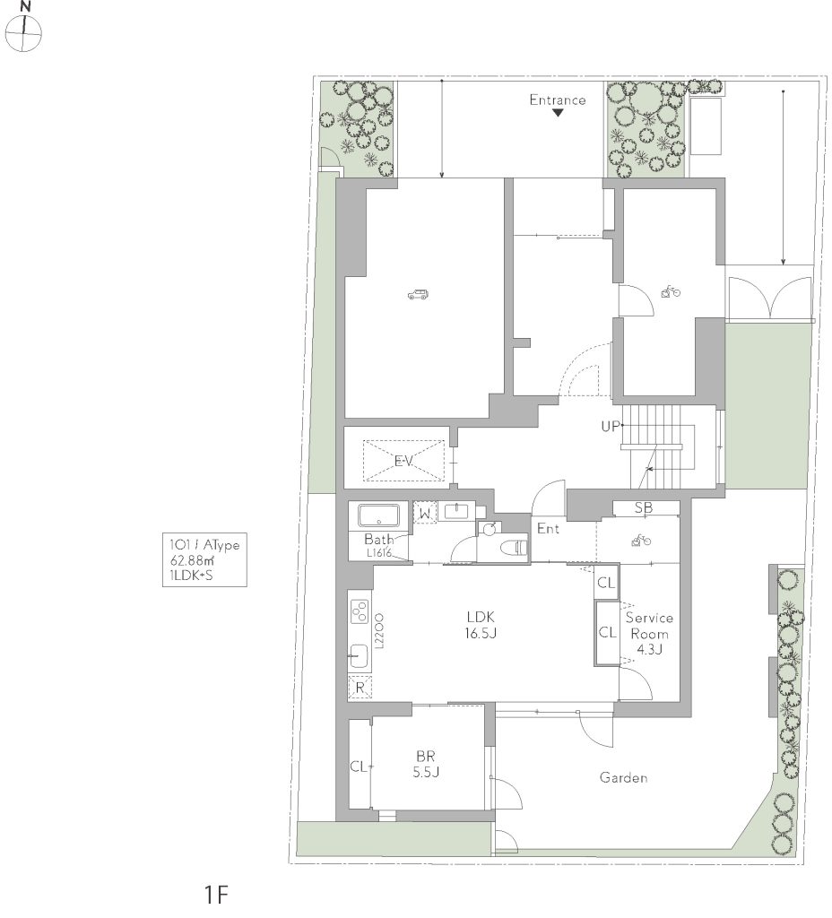
本ページへの掲載内容は、計画段階の図面やコンセプトを基にしており、実際のものとは異なる可能性があります。
施工上の変更が生じた場合は、建物が完成した時点の状態を優先します。
方位に若干の差異がある可能性もありますので、ご了承ください。
物件に関するお問い合わせ
※当社開発物件は投資用一棟販売不動産であり、新築一棟RCマンション、新築RC戸建邸宅を販売しています。
※賃貸に関するお問い合わせの方は上のボタンよりご連絡ください