渋谷川を享受し、一方で、その景観を担う
グランデュオ恵比寿5
施工中
一棟RCマンション
所在地: 東京都渋谷区恵比寿2-22Google MAP
2027.03.15完成予定
進捗度44
- 設計中
- 施工中
- 完成
UPDATED INFO.
- 2025.11.10グランデュオ恵比寿5のプロジェクトページを公開いたしました。
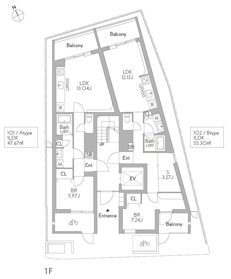
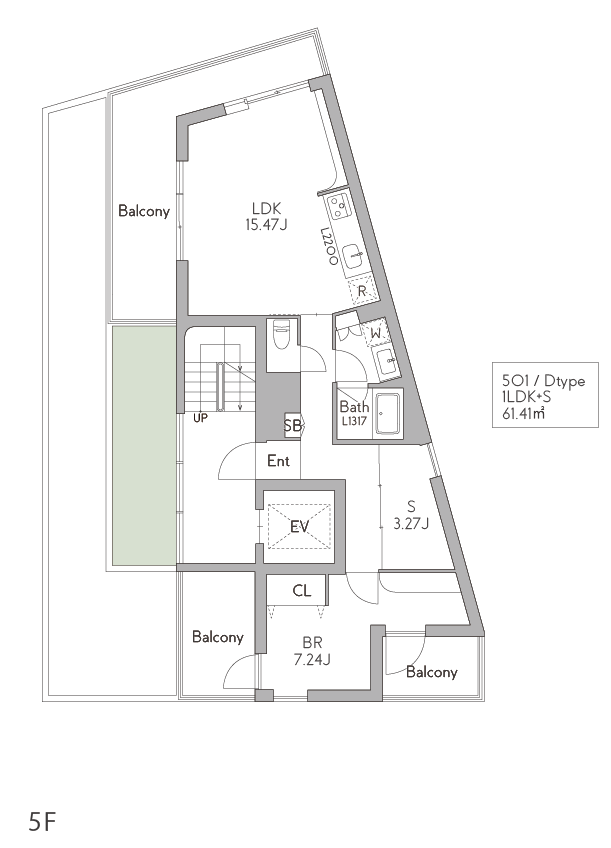
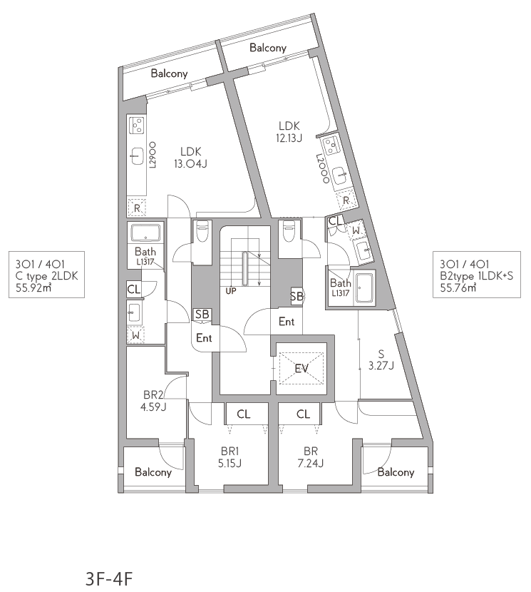
- 2025.12.03平面図を更新しました
- 2026.03.23フェーズを販売中に更新しました
設計のこだわり
敷地は恵比寿と広尾の間に位置し、コンクリートで護岸整備された川幅約10mの渋谷川に面しています。道路側住戸と川側住戸に二分するのではなく、全ての住戸が川側にリビングルームを持つ建ち方としました。そして、道路側・川側のどちらもが景観を構成する大事なファサード(建物の正面)として扱い、渋谷川の緩やかな流線をモチーフに2面のファサードをデザインしました。渋谷川の存在を積極的に取り込みながら、その景観形成にも寄与することで、周辺環境とのギブアンドテイクの関係を築く建築を目指しました。
全住戸にリバーサイドリビングルーム

道路側住戸と川側住戸に二分するのではなく、全ての住戸が川側に面する建ち方としました。川は、都心部では貴重な空地を提供してくれます。その空地を活かし、渋谷川に向かって大きく開いたリバーサイドリビングルームを全住戸に設けています。
両面がファサード

一般的な敷地では道路側のみがファサードとなりますが、本計画地では道路側・川側のどちらもが景観を構成する大事なファサードと捉えています。渋谷川の緩やかな流線をモチーフに、2面のファサードをデザインしました。
穏やかで柔和な雰囲気の居住空間
※写真はイメージになります
ファサードで用いた流線形を内部空間にも用い、動線や視線の流れを誘います。穏やかで柔和な雰囲気の居住空間となります。
計画地

日比谷線 広尾駅 徒歩約7分
山手線 恵比寿駅 徒歩約11分
周辺施設
買い物・飲食店
- セブン-イレブン渋谷広尾5丁目店 徒歩約2分
- ローソン 広尾五丁目店 徒歩約2分
- まいばすけっと 広尾5丁目店 徒歩約2分
- アサヒ薬局 徒歩約6分
レジャー・施設
- 臨川四季の森 徒歩約2分
- グッドライフジム prime 恵比寿広尾店 徒歩約5分
- 渋谷区立臨川みんなの図書館 徒歩約7分
- 広尾プラザ 徒歩約8分
その他
- 渋谷広尾郵便局 徒歩約2分
- 渋谷警察署広尾五丁目交番 徒歩約3分
- 東京都立広尾病院 徒歩約4分
- 東京都立広尾病院 徒歩約4分
物件概要
- 物件名グランデュオ恵比寿5
- 所在地東京都渋谷区恵比寿2-22
- 敷地面積210.3㎡
- 土地権利所有権
- 用途地域準工業地域
- 指定建ぺい率60%
- 指定容積率300%
- 接道南側 4.00m
- 高度地区第三種高度地区(絶対高さ30m)
- 防火地域準防火地域
- 構造・規模鉄筋コンクリート造 地上5階建
- 延床面積592.27㎡
- 貸床面積491.17㎡
- 用途共同住宅
- 竣工年月2027年3月15日予定
- 総戸数9戸
- 建築確認番号第2025確更建築CIAS00068号
ARCHITECT
設計
佐々木 高之
Takayuki Sasaki
アラキ+ササキアーキテクツ
略歴
1978 広島県生まれ
2002 東京都立大学工学部建築学科卒業
2005 イーストロンドン大学大学院ディプロマ修了
2005-2007 NAP建築設計事務所勤務
2008-2011 アラキ+ササキアーキテクツ一級建築士事務所共同主宰
2009~ 専門学校ICSカレッジオブアーツ講師
2011~ 株式会社アラキ+ササキアーキテクツ代表取締役
※ 2022年グッドデザイン金賞、2020.2021.2024.2025年グッドデザイン賞など受賞多数
アラキ+ササキアーキテクツ
略歴
1978 広島県生まれ
2002 東京都立大学工学部建築学科卒業
2005 イーストロンドン大学大学院ディプロマ修了
2005-2007 NAP建築設計事務所勤務
2008-2011 アラキ+ササキアーキテクツ一級建築士事務所共同主宰
2009~ 専門学校ICSカレッジオブアーツ講師
2011~ 株式会社アラキ+ササキアーキテクツ代表取締役
※ 2022年グッドデザイン金賞、2020.2021.2024.2025年グッドデザイン賞など受賞多数
設計
仲田裕貴
Hirotaka Nakata
仲田裕貴
Hirotaka Nakata
hiro nakata atelier
略歴
1985 茨城県生まれ
2010 他業種より転職
2010-2013 ICS College of Arts Interior Architecture & Design Course
2013-2015 株式会社フランク・ラ・リヴィエレ・アーキテクツ
2015-2020 株式会社エイバンバ
2021 nackle design office 設立
2025 hiro nakata atelier に改称
設計
石橋慶久
Yoshihisa Ishibashi
石橋慶久
Yoshihisa Ishibashi
イシバシナガラアーキテクツ
https://www.ishibashinagara.com/about
代表 / 一級建築士
略歴
1984 大阪市生まれ
2008 立命館大学 理工学部 建築都市デザイン学科 卒業
2011 京都工芸繊維大学大学院 工芸科学研究科 建築設計学専攻 修了
2011-2015 株式会社 久米設計
2015-2021 株式会社 千葉学建築計画事務所
2021 イシバシナガラアーキテクツ 設立
2022 株式会社イシバシナガラアーキテクツ 改組
長柄芳紀
Yoshinori Nagara
長柄芳紀
Yoshinori Nagara
代表 / 一級建築士
略歴
1987 岐阜市生まれ
2010 立命館大学 理工学部 建築都市デザイン学科 卒業
2012 京都工芸繊維大学大学院 工芸科学研究科 建築設計学専攻 修了
2012-2016 株式会社 昭和設計
2016-2022 一級建築士事務所 大西麻貴+百田有希 / o+h
2021 イシバシナガラアーキテクツ 設立
2022 株式会社イシバシナガラアーキテクツ 改組
2022-2024 横浜国立大学大学院Y-GSA 設計助手
2025 東京電機大学、関東学院大学、千葉大学 非常勤講師
本ページへの掲載内容は、計画段階の図面やコンセプトを基にしており、実際のものとは異なる可能性があります。
施工上の変更が生じた場合は、建物が完成した時点の状態を優先します。
方位に若干の差異がある可能性もありますので、ご了承ください。
物件に関するお問い合わせ
※当社開発物件は投資用一棟販売不動産であり、新築一棟RCマンション、新築RC戸建邸宅を販売しています。
※賃貸に関するお問い合わせの方は上のボタンよりご連絡ください