UPDATED INFO.
- 2025.11.05CGを更新しました
- 2025.12.03販売フェーズを販売中に更新しました
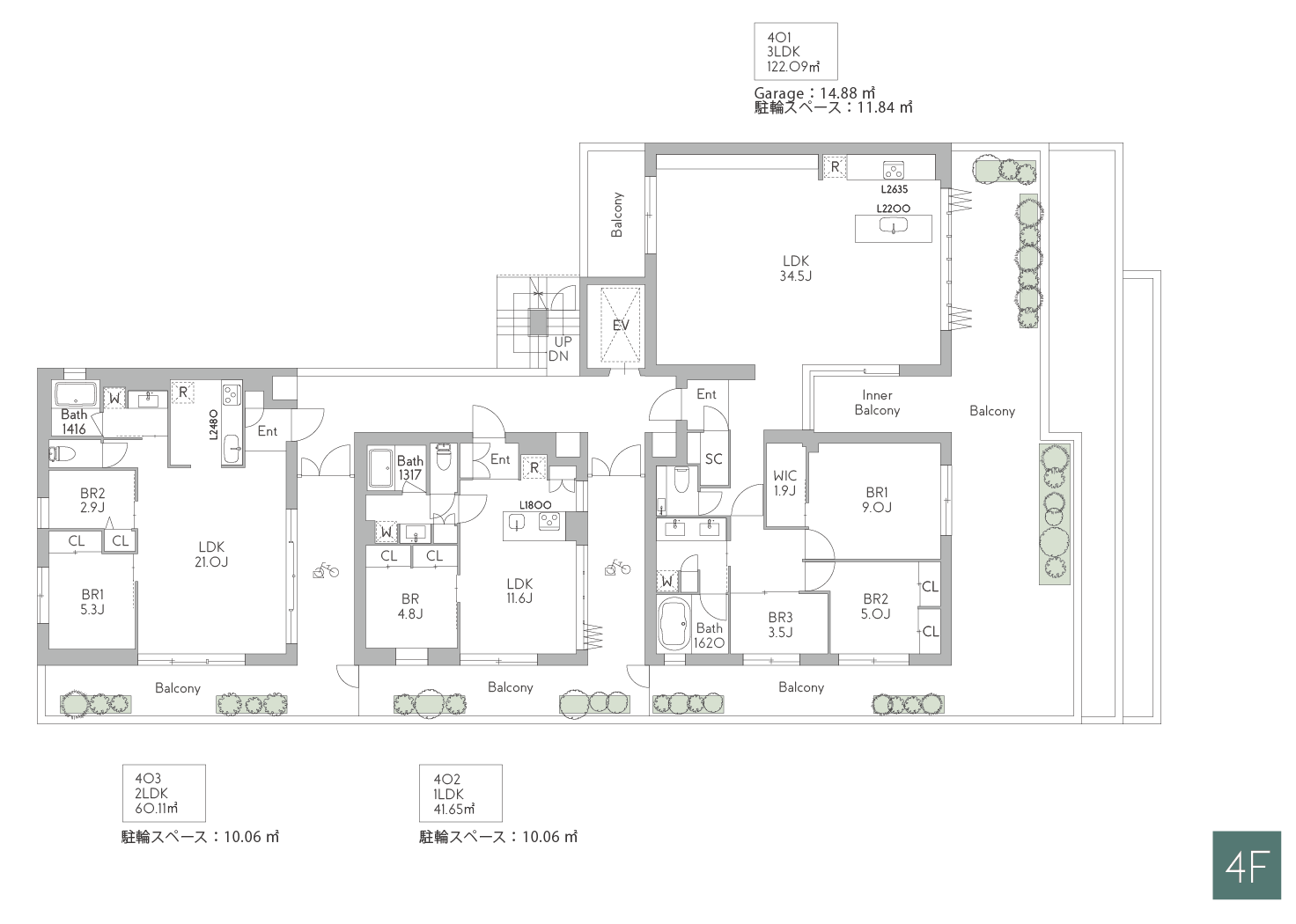
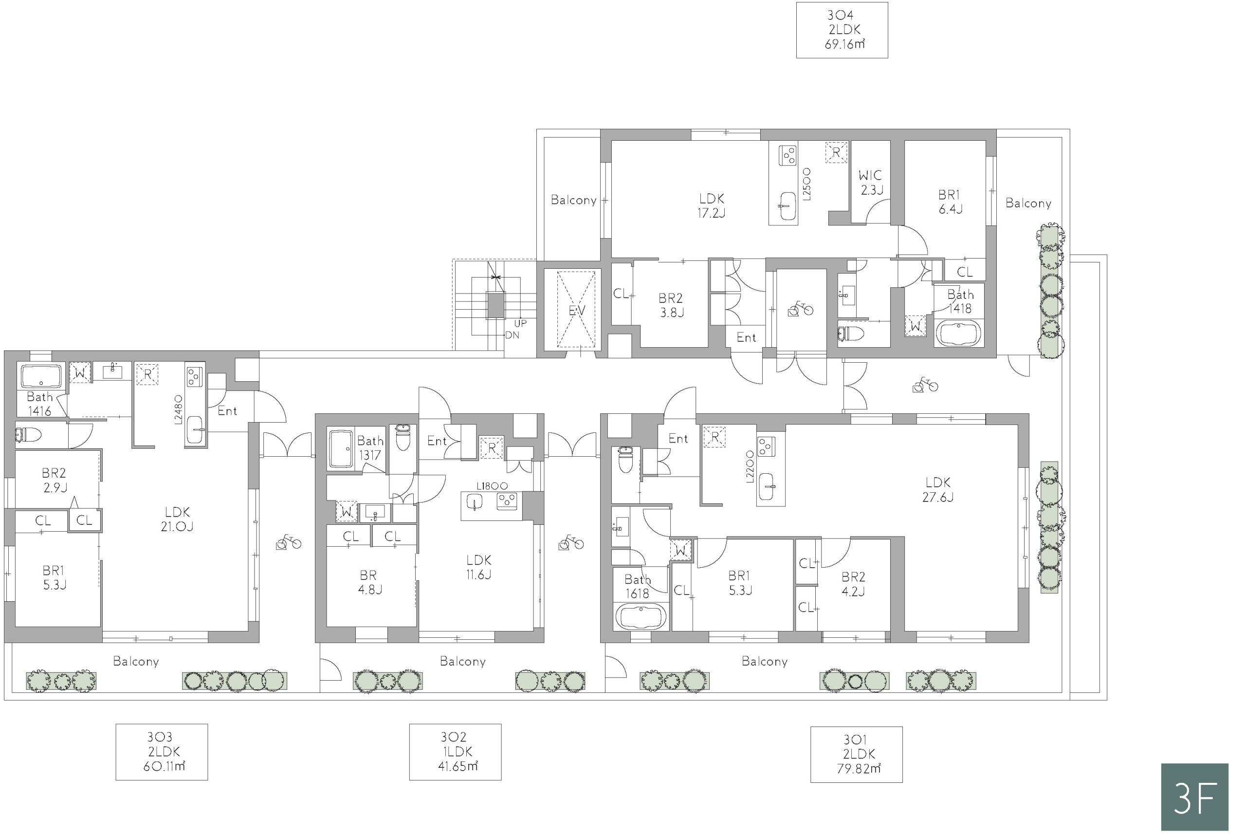
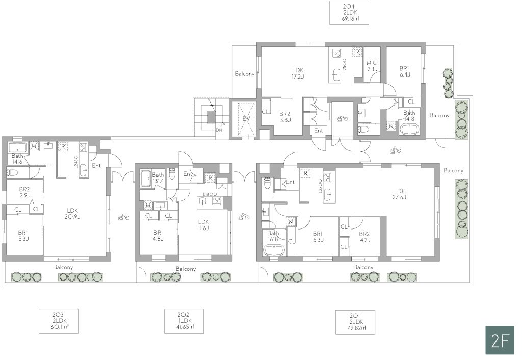
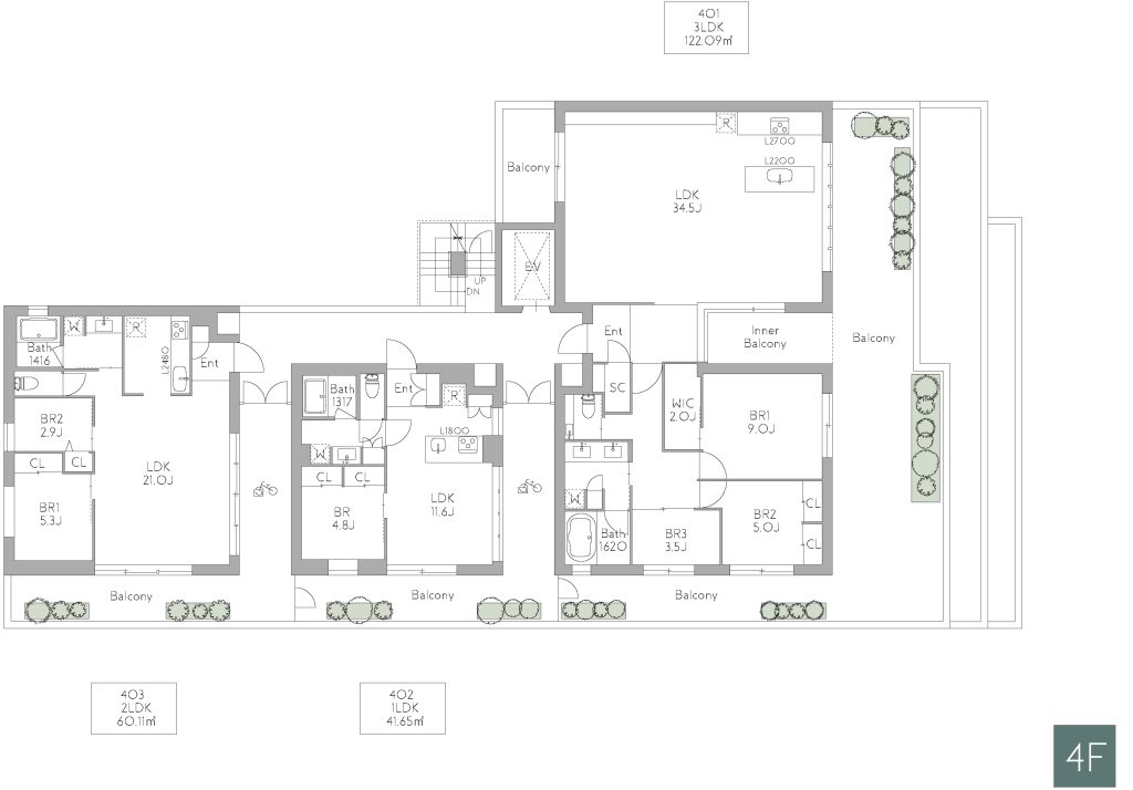
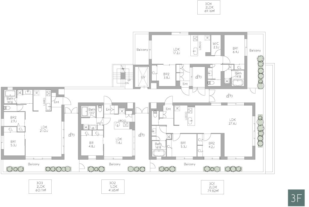
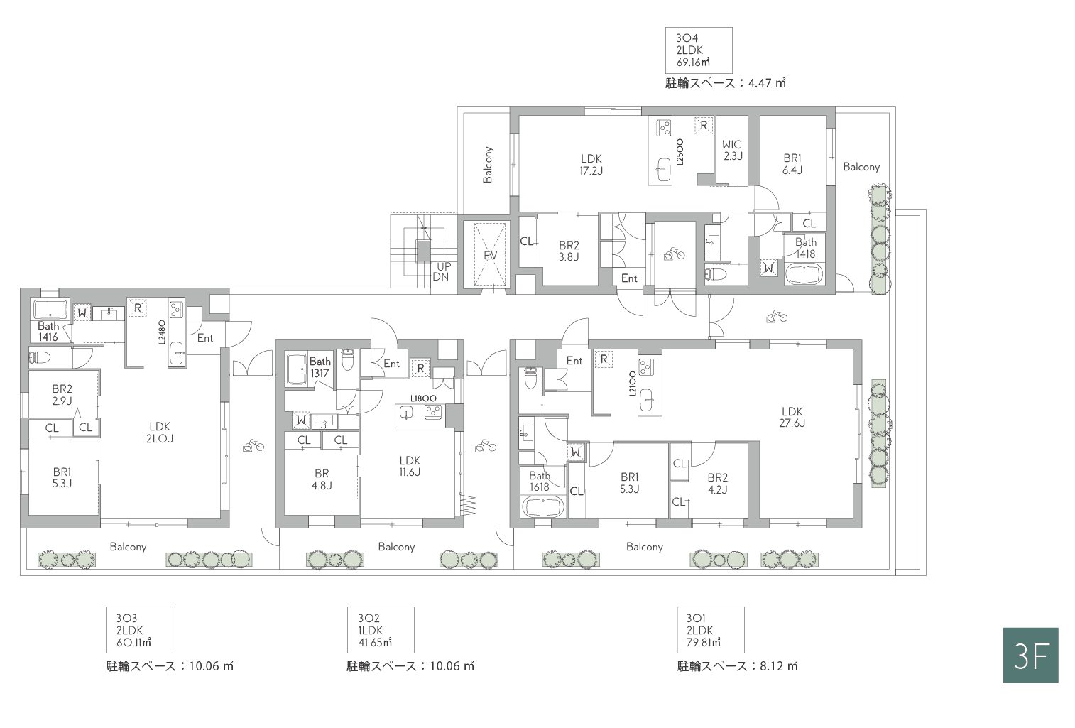
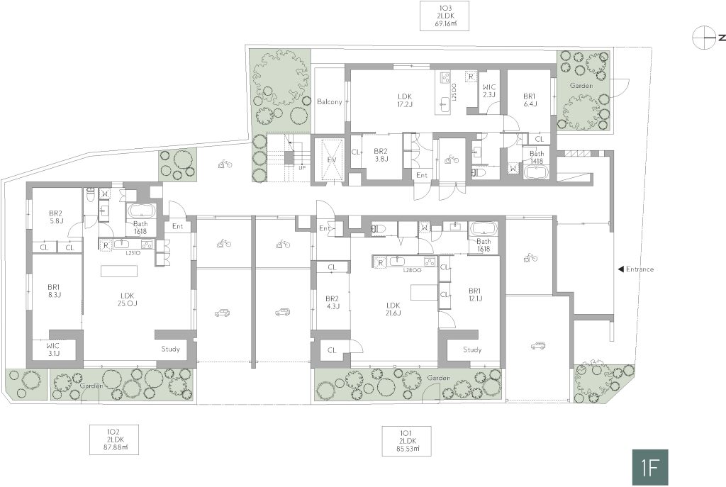
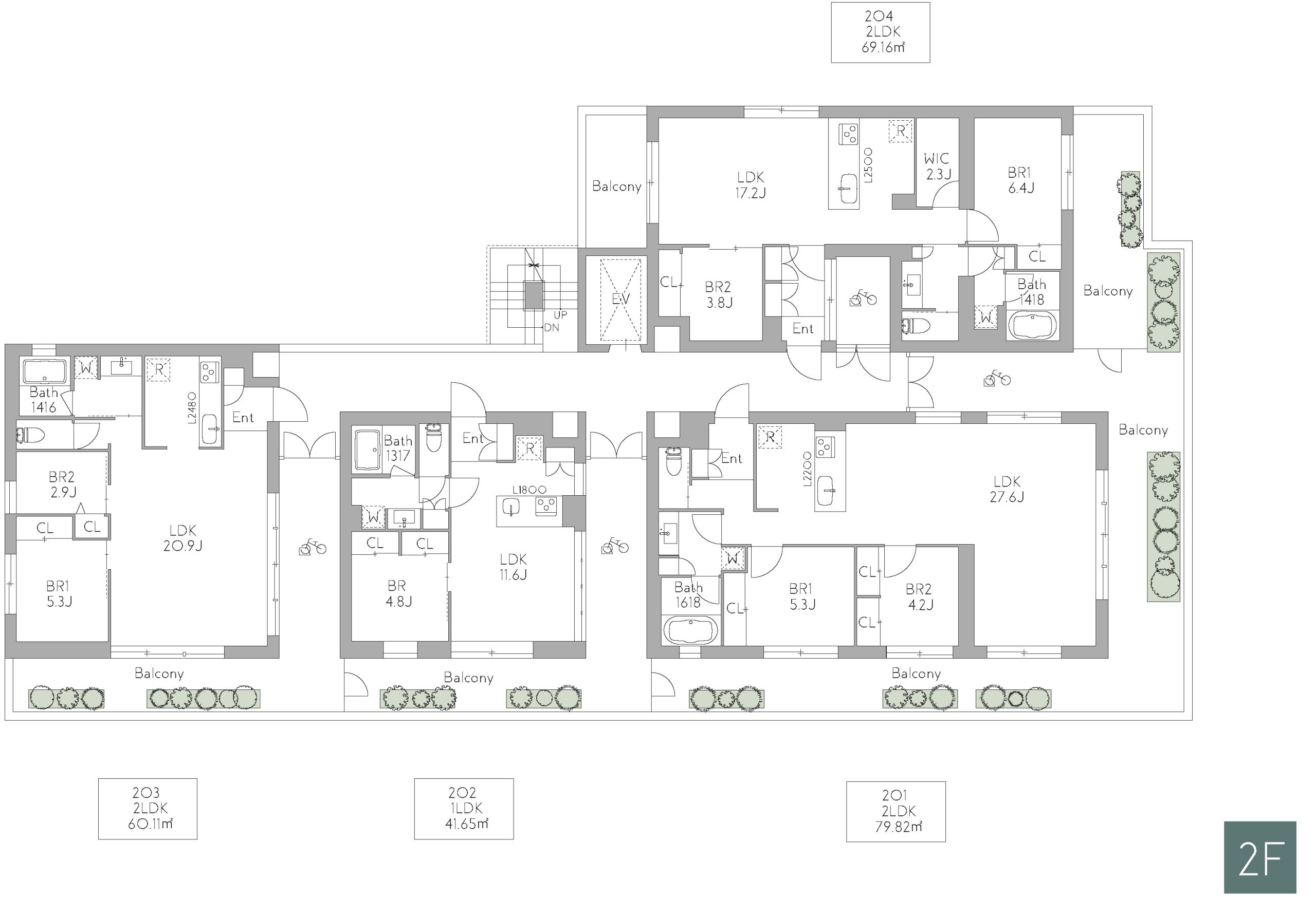
- 2025.12.03平面図を更新しました
設計のこだわり
濡縁のような半屋外空間=中間領域が家の周りをぐるりと囲む住まいの提案です。中間領域に自分たちの暮らしが自然に広がり、生活が外の空間へと拡張していきます。それぞれの住戸は戸建住宅のように独立性を持ちながら、中間領域を介して暮らしの幅を広げ、緩やかにつながっていきます。駐輪スペースや家庭菜園、園芸、趣味など多様な使い方が可能で、住戸ごとの個性がにじみ出すことで、親密で豊かな街並みを形成します。
半屋外空間(バルコニー)を介して、人と人、人と街がゆるやかに関わり合う、戸建のように集まって住む集合住宅です。
中間領域のある住まい

住戸を囲う中間領域=半屋外空間が、暮らしの幅を広げていく住まいの提案です。グラデーショナルに自分たちの領域が広がる空間をつくり、半屋外空間へ生活が拡張していきます。
戸建のように集まって住む集合住宅

戸建住宅が庭を介して近隣の住戸と関わるように、戸境壁を設けず中間領域を設けました。これにより、住戸間のプライバシーを確保しつつ、各々の住戸が柔らかく繋がっていく関係をつくります。
多様な景色をつくるバルコニー

奥行きの深いバルコニーは、中間領域として様々な使い方が可能です。居住者の個性がバルコニーににじみ出ることで、多様な風景をつくり出します。内部の活動を街へとつなげるため、風や光を通しつつ視線をほどよく遮るパンチングメタルをランダムに配置し、ワイヤーメッシュを用いた透明性の高い手すりを採用しました。さらに各住戸の独立性を強調するために、大きな床をそれぞれの住戸のボリュームで支えるような特徴的な空間構成としています。
計画地

東急田園都市線 三軒茶屋駅 徒歩約9分
東急世田谷線 三軒茶屋駅 徒歩約9分
周辺施設
買い物・飲食店
- ファミリーマート 太子堂三丁目店 徒歩約5分
- まいばすけっと太子堂2丁目店 徒歩約6分
- ドラッグセイムス 世田谷太子堂店 徒歩約6分
- 吉野家 三軒茶屋店 徒歩約8分
レジャー・施設
- 圓泉寺 徒歩約1分
- したのやばし公園 徒歩約4分
- ELEMENT 三宿店 パーソナルトレーニング&マシンピラティス 徒歩約5分
- ゴリラビル 徒歩約5分
その他
- 世田谷警察署 太子堂地域安全センター 徒歩約4分
- 富士見湯 徒歩約5分
- 三軒茶屋はやかわクリニック 徒歩約5分
- 三井住友銀行 世田谷支店 徒歩約11分
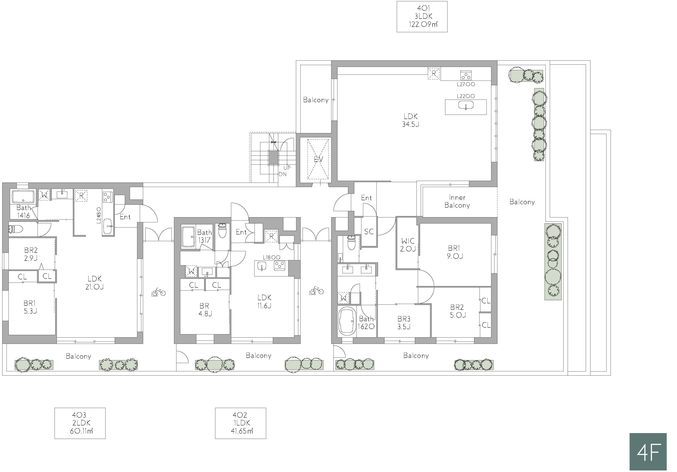
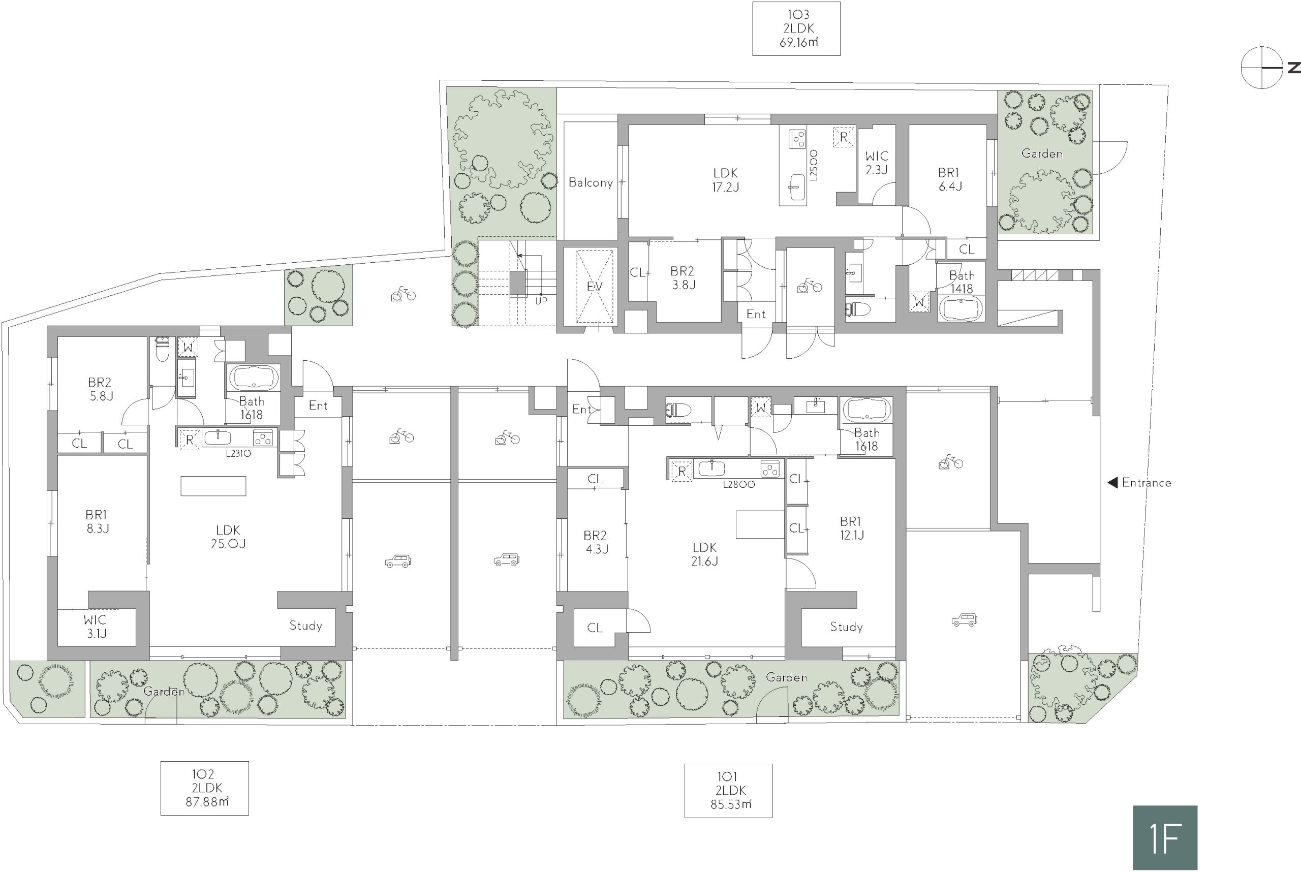
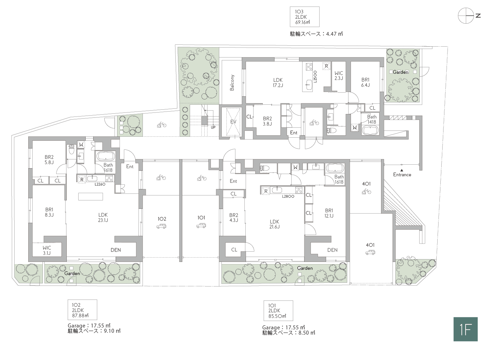
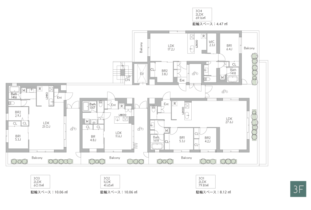
物件概要
- 物件名グランデュオ三軒茶屋12
- 所在地東京都世田谷区太子堂3-8
- 敷地面積613.72㎡
- 土地権利所有権
- 用途地域 第一種中高層住居専用地域
- 指定建ぺい率60%
- 指定容積率200%
- 接道北側4m/東側4m
- 高度地区19m第二種高度地区
- 防火地域準防火地域
- 構造・規模鉄筋コンクリート造 地上4階建
- 延床面積1276.86㎡
- 貸床面積967.85㎡
- 用途共同住宅
- 竣工年月2026年10月29日予定
- 総戸数14戸
- 建築確認番号第TKC25建確東8829号
ARCHITECT
設計
奥野 公章
Masaaki Okuno
奥野公章建築設計室
1973年 山梨県に生まれる
1996年 東洋大学工学部建築学科卒業
1998年 東洋大学大学院工学研究科建築学専攻博士前期課程修了
スタジオ建築計画入所
2002年 建築、家具設計ユニット ホワイトベース共同設立
2004年 一級建築士事務所 奥野公章建築設計室設立
2006-2024年 東洋大学ライフデザイン学部人間環境デザイン学科非常勤講師
2015-2024年 関東学院大学建築環境学部建築環境学科非常勤講師
2017年〜 武蔵野美術大学 建築学科 非常勤講師
2024年〜 東京理科大学工学部建築学科 夜間主社会人コース 非常勤講師
奥野公章建築設計室
1973年 山梨県に生まれる
1996年 東洋大学工学部建築学科卒業
1998年 東洋大学大学院工学研究科建築学専攻博士前期課程修了
スタジオ建築計画入所
2002年 建築、家具設計ユニット ホワイトベース共同設立
2004年 一級建築士事務所 奥野公章建築設計室設立
2006-2024年 東洋大学ライフデザイン学部人間環境デザイン学科非常勤講師
2015-2024年 関東学院大学建築環境学部建築環境学科非常勤講師
2017年〜 武蔵野美術大学 建築学科 非常勤講師
2024年〜 東京理科大学工学部建築学科 夜間主社会人コース 非常勤講師
OTHER PROJECT
同じエリアのプロジェクト
本ページへの掲載内容は、計画段階の図面やコンセプトを基にしており、実際のものとは異なる可能性があります。
施工上の変更が生じた場合は、建物が完成した時点の状態を優先します。
方位に若干の差異がある可能性もありますので、ご了承ください。
物件に関するお問い合わせ
※当社開発物件は投資用一棟販売不動産であり、新築一棟RCマンション、新築RC戸建邸宅を販売しています。
※賃貸に関するお問い合わせの方は上のボタンよりご連絡ください