リズムを身にまとったような、秩序と動きのあるファサード
グランデュオ渋谷3
施工中
その他
所在地: 東京都渋谷区渋谷3-13Google MAP
2026.12.31完成予定
進捗度46
- 設計中
- 施工中
- 完成
UPDATED INFO.
- 2025.09.09グランデュオ渋谷3のプロジェクトページを公開しました
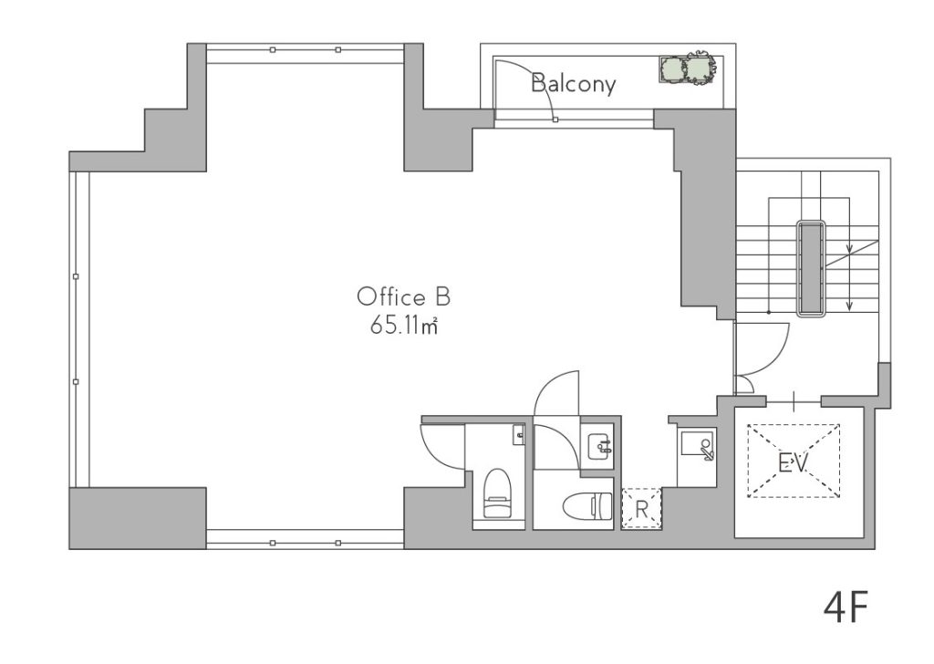
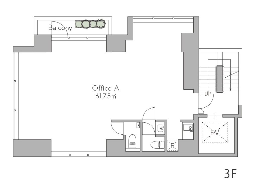
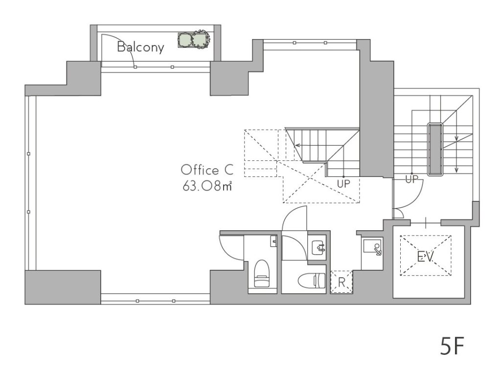
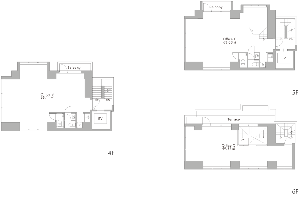
- 2025.10.10平面図を更新しました
- 2026.01.13フェーズを施工中に更新しました
設計のこだわり
本計画地は、渋谷駅近くの高層ビルに囲まれた位置にあります。法的制限により建物高さは6層までしか計画できず、周囲のスケール感に埋もれてしまうことが懸念されました。そのため、建物は各階でランダムに壁を突き出す構成とし、都市に対して自律した輪郭を与えました。突き出した壁の上部にはバルコニーを設け、そこに植栽を取り入れることで、建物に立体感と奥行きを加えると同時に、街並みにも緑の潤いを与えました。高さという制約を受け入れながらも、都市と呼応し、視覚的にも記憶に残る建築を目指しました。
ランダムに突き出した壁

高さ制限により周囲の高層建築に比べて小さなスケールとなります。そこで、各階の壁面をランダムに張り出すことで、視覚的な主張とリズムを与えました。都市空間の中で自律した輪郭を描くことで、建物自体が街の風景として認識されることを意図しています。
都市に潤いをもたらすみどり

張り出した壁面の上部にバルコニーを設け、そこに植栽を施すことで、建物に奥行きと表情を与えています。また、都市に緑の気配を取り入れることで高密度な都市空間において、自然との触れ合いを感じられるような「やわらかな環境」を建築的に表現しました。
深みのあるグレーと緑の植栽によるコントラスト表現

外壁は深みのあるグレーで統一し、あえて無彩色とすることで、各階のバルコニーに施した植栽の緑が際立つよう計画しました。視認性とデザイン性を両立させた外観構成としています。
計画地

東京メトロ副都心線 渋谷駅 徒歩約5分
周辺施設
買い物・飲食店
- セブンイレブン 渋谷3丁目明治通り店 徒歩約1分
- ファミリーマート 渋谷明治通り店 徒歩約2分
- ライフ渋谷東店 徒歩約3分
- ブレッセ渋谷ストリーム店 徒歩約5分
レジャー・施設
- chocoZAP 渋谷三丁目 徒歩約4分
- 渋谷ストリーム 徒歩約5分
- 渋谷ヒカリエ ShinQs 徒歩約9分
- エニタイムフィットネス 渋谷店 徒歩約9分
その他
- トモズ 渋谷並木橋店 徒歩約3分
- 渋谷三郵便局 徒歩約4分
- 渋谷警察署 東交番 徒歩約4分
- 渋谷駅前内科・内視鏡クリニック 徒歩約6分
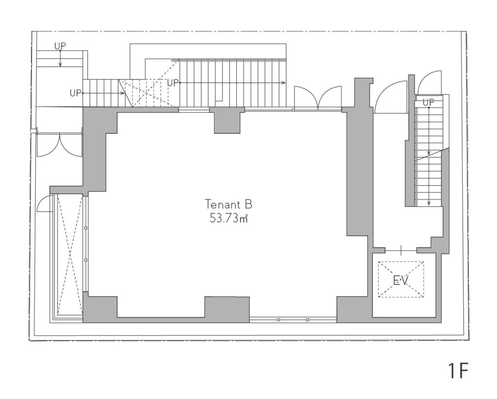
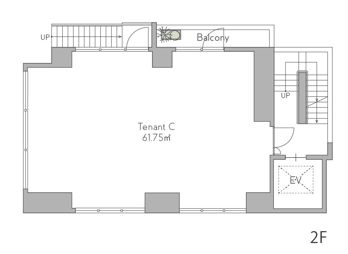
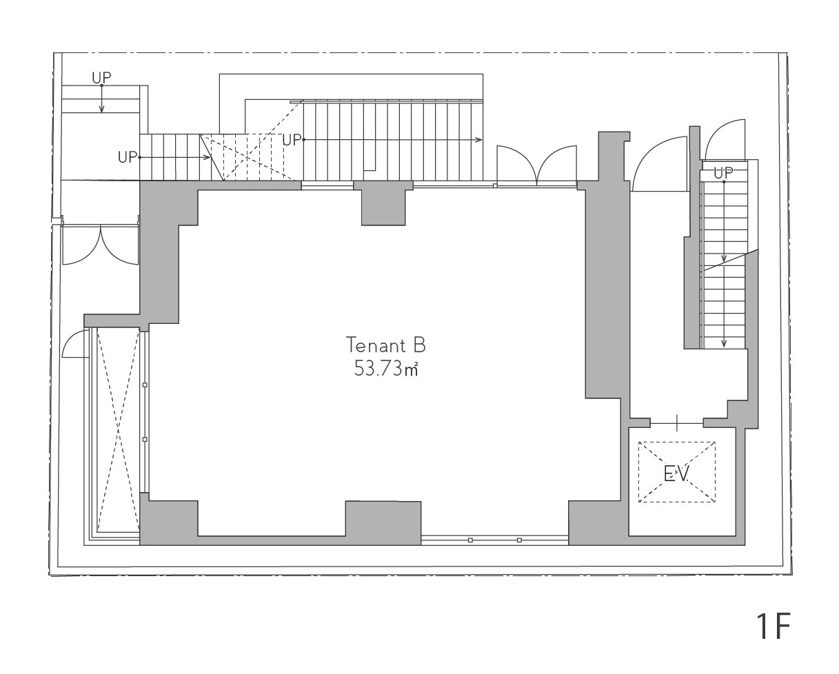
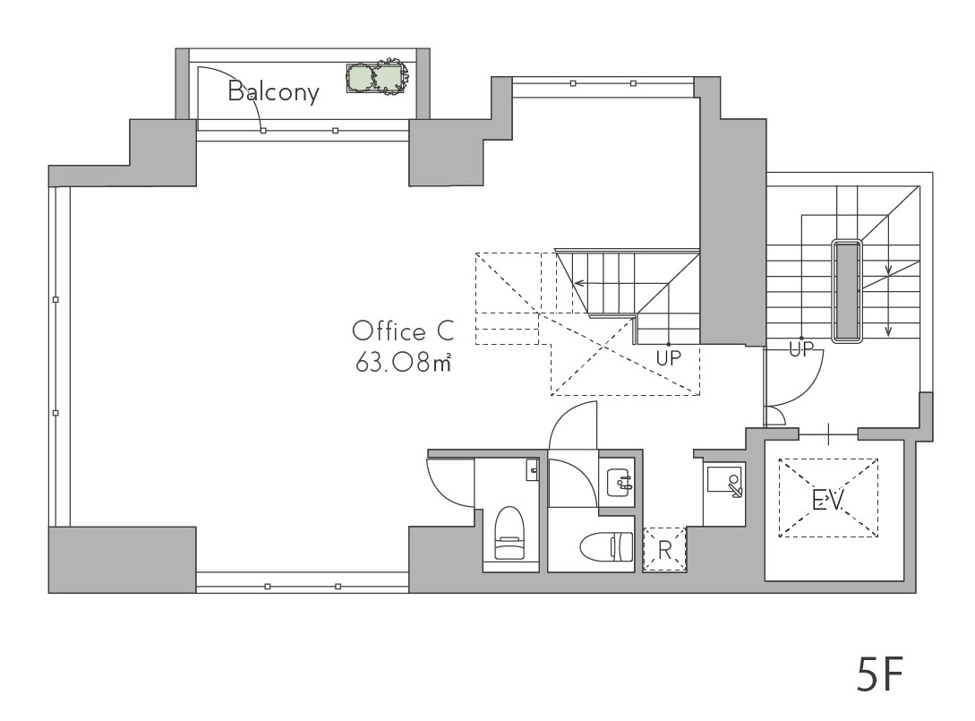
物件概要
- 物件名グランデュオ渋谷3
- 所在地東京都渋谷区渋谷3-13
- 敷地面積131.96㎡
- 土地権利所有権
- 用途地域商業地域
- 指定建ぺい率80%
- 指定容積率500%
- 接道北側6m
- 高度地区-
- 防火地域防火地域
- 構造・規模鉄筋コンクリート造 地下1階地上6階建
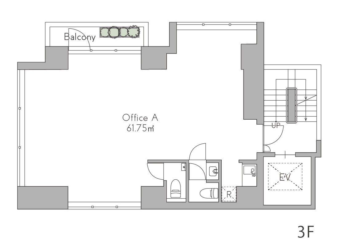
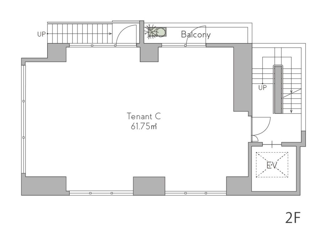
- 延床面積494.11㎡
- 貸床面積412.44㎡
- 用途店舗
- 竣工年月2026年12月31日予定
- 総戸数事務所:3/店舗:3
- 建築確認番号第R07HC-H1090号
ARCHITECT
設計
天児 実
Minoru amako
株式会社AE総合計画
略歴
1970年 福岡県福岡市生まれ
1994年 東京理科大学工学部第一部建築学科卒業
設計事務所、建設コンサルティング会社、建築プロデュース会社を経て
2006年 株式会社AE総合計画設立 代表取締役
株式会社AE総合計画
略歴
1970年 福岡県福岡市生まれ
1994年 東京理科大学工学部第一部建築学科卒業
設計事務所、建設コンサルティング会社、建築プロデュース会社を経て
2006年 株式会社AE総合計画設立 代表取締役
設計
遠藤 圭
Kei Endo
遠藤 圭
Kei Endo
株式会社AE総合計画
略歴
1971年 東京都生まれ
1995年 東京電機大学工学部建築学科卒業
1995~2004年 組織設計事務所勤務
2005年 遠藤建築計画設立
2006年 株式会社AE総合計画設立 取締役
現在に至る
OTHER PROJECT
同じエリアのプロジェクト
本ページへの掲載内容は、計画段階の図面やコンセプトを基にしており、実際のものとは異なる可能性があります。
施工上の変更が生じた場合は、建物が完成した時点の状態を優先します。
方位に若干の差異がある可能性もありますので、ご了承ください。
物件に関するお問い合わせ
※当社開発物件は投資用一棟販売不動産であり、新築一棟RCマンション、新築RC戸建邸宅を販売しています。
※賃貸に関するお問い合わせの方は上のボタンよりご連絡ください