UPDATED INFO.
- 2025.10.30竣工予定日を更新しました
- 2025.12.03平面図を更新しました
- 2026.01.16CGを更新しました
設計のこだわり
近年、日本をはじめ世界各地で歴史的建築物の解体が進んでいます。そこで私たちはこの先10年、20年後も時代とともに愛される建築物をつくり、歴史的建築物を大切にする文化を育むことを目指しました。
自然と共生する
緑豊かな公園や文化施設が点在し、住みやすい環境が整っている街並みを保つべく緑を多く取り入れています。より自然と共生しあうため、ルーフバルコニーの周りに屋上緑化を設けました。
桜の花びらが流れ込む

歴史と伝統を大切にする街「桜新町」は元々「新町」と呼ばれていましたが、道路の両側にソメイヨシノの並木をつくり有名になったことから「桜新町」と呼ばれるようになりました。桜並木から舞い散ってきた花びらがアプローチから入ってくる表現を人にたとえ、家に帰りたくなるような集合住宅を目指しています。
プライバシーの確保

隣地と正対してあるバルコニーは視線が気になるため、バルコニーの手摺天端と天井までの間にルーバーを設け、人の視線を遮断しました。
計画地

東急田園都市線 桜新町駅 徒歩約10分
周辺施設
買い物・飲食店
- ファミリーマート 世田谷弦巻五丁目店 徒歩約2分
- スギドラッグ 桜新町店 徒歩約3分
- ライフ 桜新町店 徒歩約5分
- むさしの森珈琲 世田谷オークラランド店 徒歩約11分
レジャー・施設
- 【パーソナルジム】ダイエットパートナー 桜新町・用賀店 徒歩約7分
- 世田谷区立中央図書館 徒歩約8分
- JRA馬事公苑 徒歩約9分
その他
- 世田谷区 弦巻区民集会所 徒歩約7分
- ヤマト運輸 馬事公苑営業所(上用賀) 徒歩約8分
- 三井住友銀行 桜新町支店 徒歩約10分
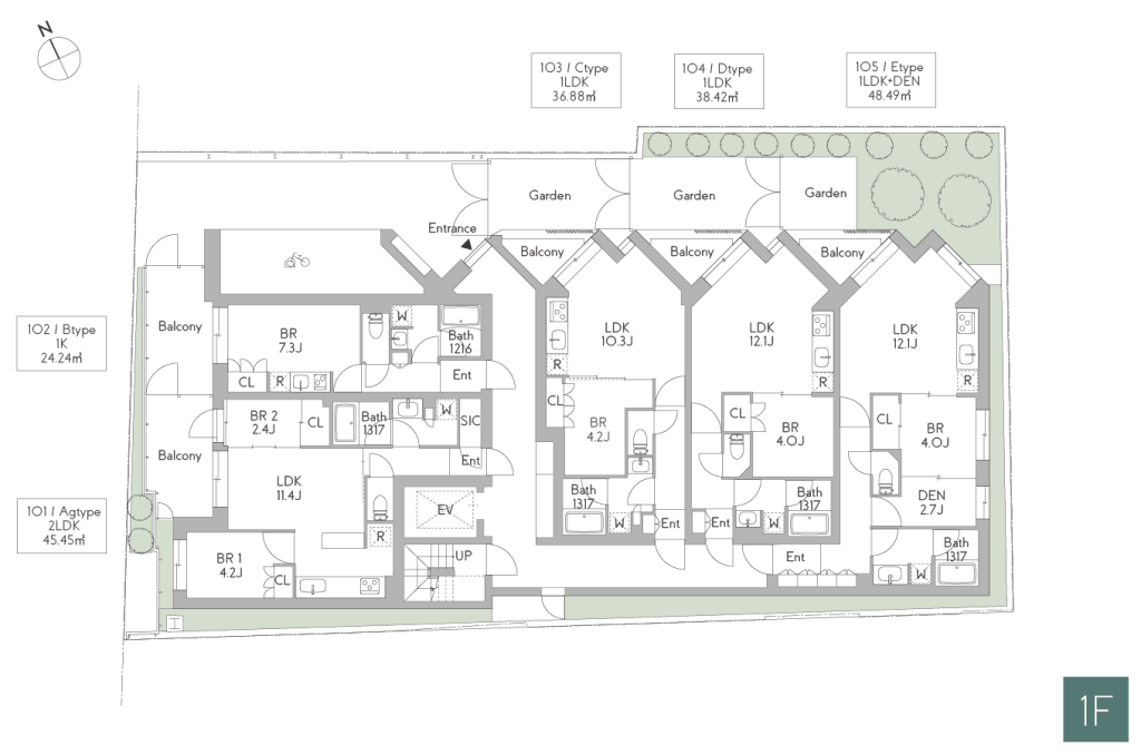
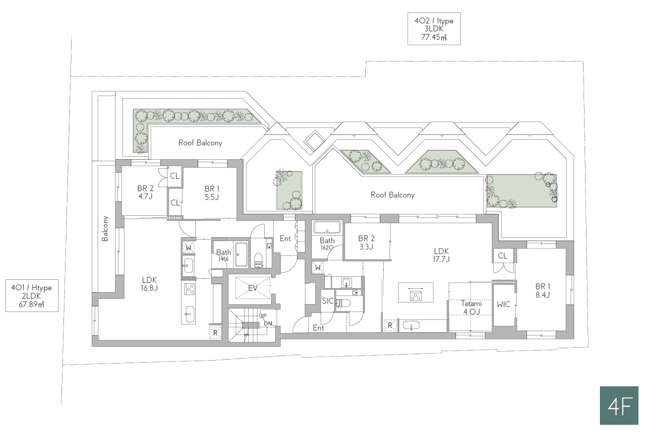
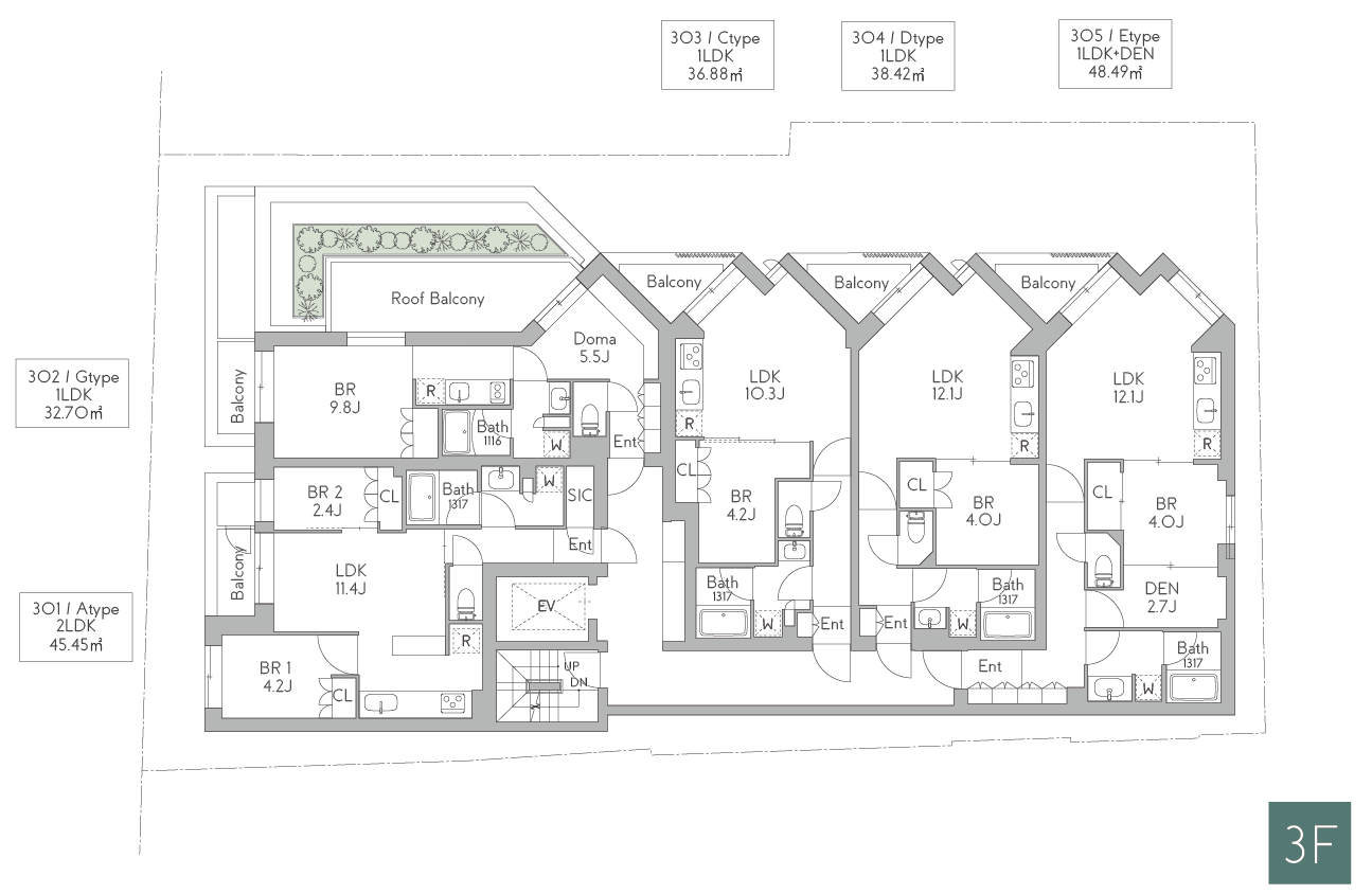
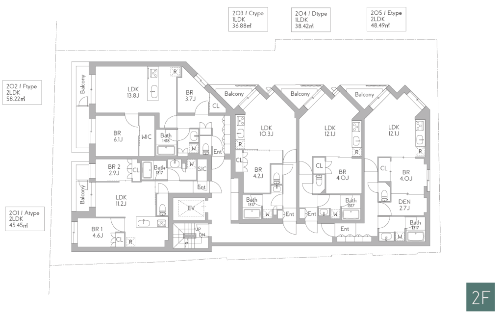
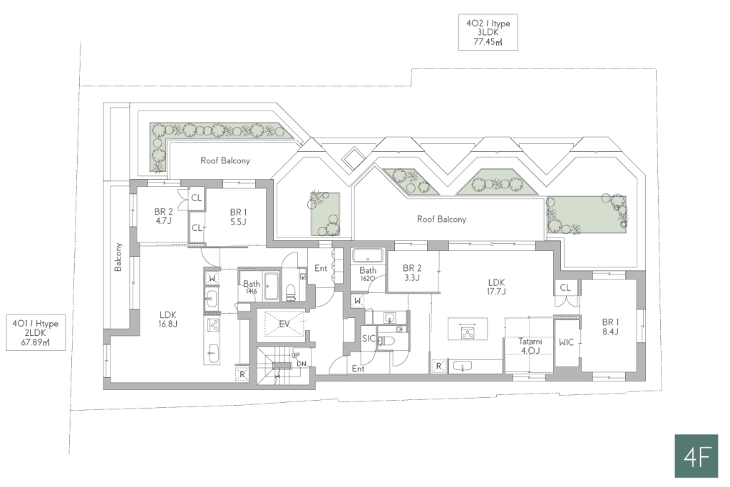
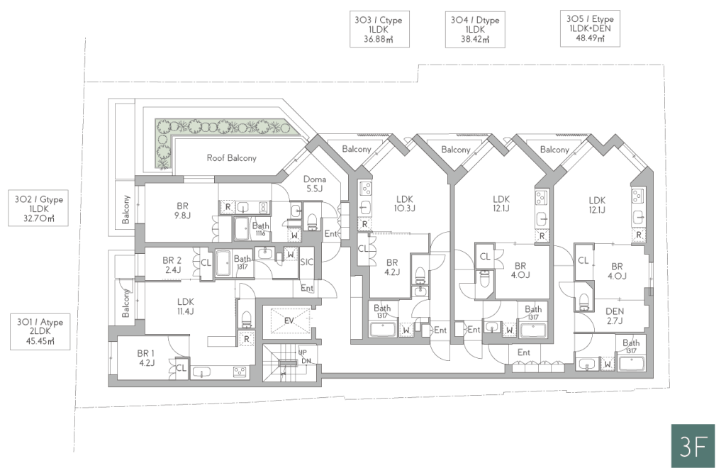
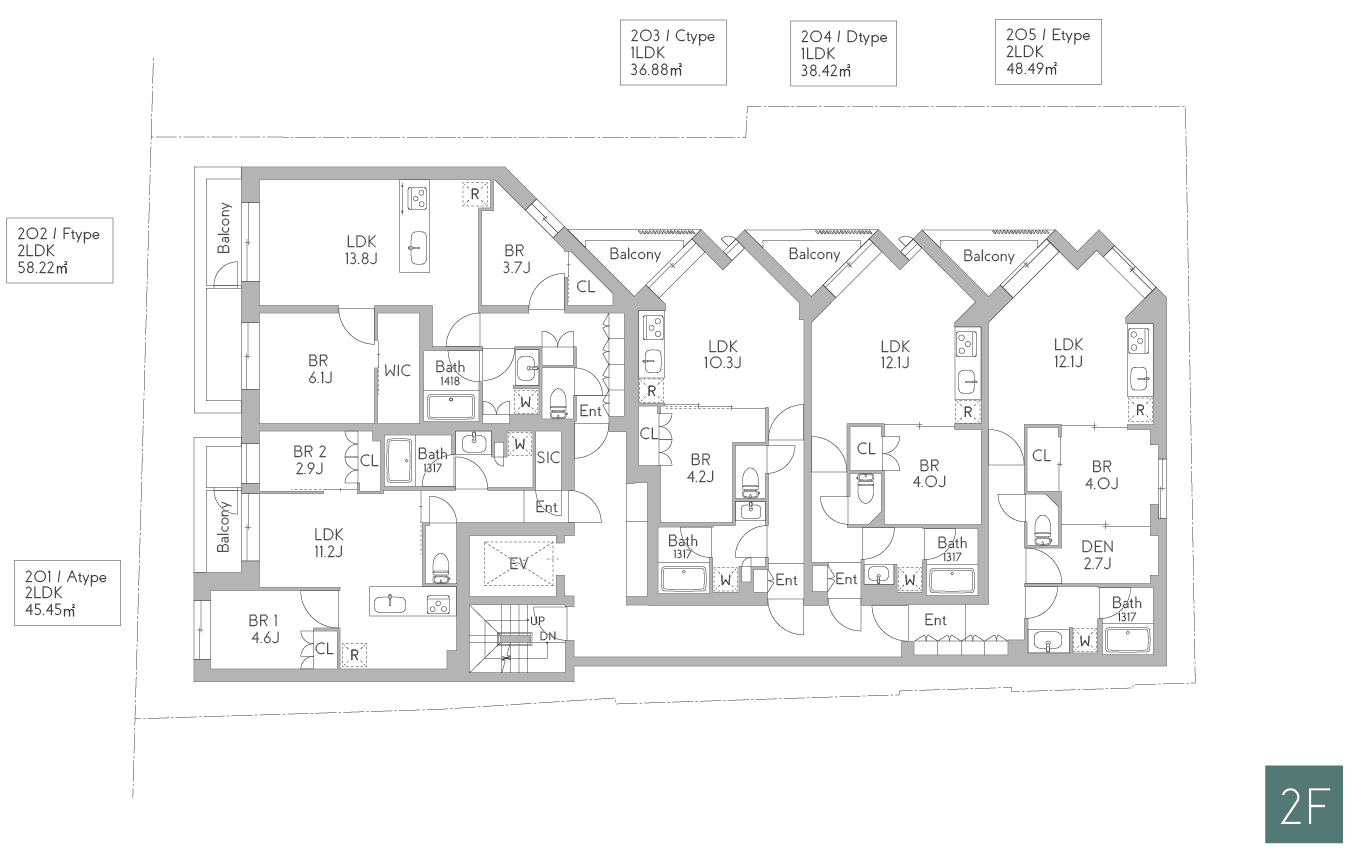
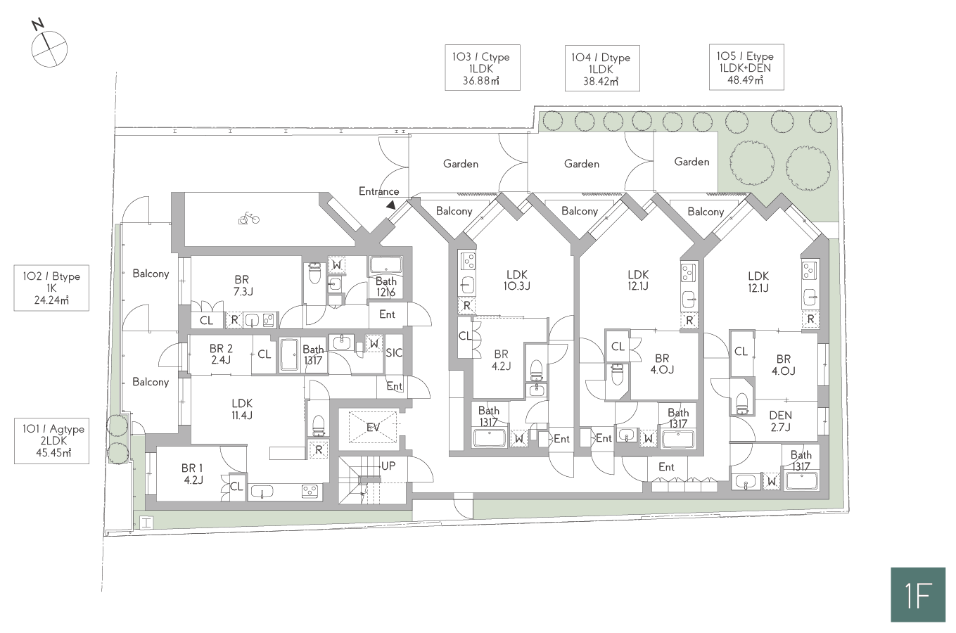
物件概要
- 物件名グランデュオ桜新町
- 所在地東京都世田谷区弦巻4-14
- 敷地面積389.79㎡
- 土地権利所有権
- 用途地域第一種中高層住居専用地域/第一種住居地域
- 指定建ぺい率60%
- 指定容積率200%
- 接道西側 6.070m
- 高度地区19m第二種高度地区
- 防火地域準防火地域
- 構造・規模鉄筋コンクリート構造 地上4階建
- 延床面積905.27㎡
- 貸床面積778.92㎡
- 用途共同住宅
- 竣工年月2026年9月11日
- 総戸数17戸
- 建築確認番号第UHEC建確R070313号
ARCHITECT
設計
佐々木 純也
junya sasaki
AIUEO STUDIO 株式会社
略歴
1975年 東京生まれ
1995年 東京工学院専門学校卒業
1995年 ~1998年 某設計事務所に勤務
1998~2010年 株式会社プロパストに勤務
2010年 AIUEO STUDIO 株式会社を設立
AIUEO STUDIO 株式会社
略歴
1975年 東京生まれ
1995年 東京工学院専門学校卒業
1995年 ~1998年 某設計事務所に勤務
1998~2010年 株式会社プロパストに勤務
2010年 AIUEO STUDIO 株式会社を設立
OTHER PROJECT
同じエリアのプロジェクト
本ページへの掲載内容は、計画段階の図面やコンセプトを基にしており、実際のものとは異なる可能性があります。
施工上の変更が生じた場合は、建物が完成した時点の状態を優先します。
方位に若干の差異がある可能性もありますので、ご了承ください。
物件に関するお問い合わせ
※当社開発物件は投資用一棟販売不動産であり、新築一棟RCマンション、新築RC戸建邸宅を販売しています。
※賃貸に関するお問い合わせの方は上のボタンよりご連絡ください