UPDATED INFO.
- 2025.06.17グランデュオ世田谷17のプロジェクトページを公開しました
設計のこだわり
隠れ家の入り口

住戸の入口はまるで秘密基地へと潜り込むような設計となっており、道路からはエントランスドアが直接見えないように工夫されています。そのため1階は店舗があり開放的な空間を演出しながらも、エントランスはプライベートな落ち着きのある空間になっています。
隠れ家の共用部

敷地の特性上、共用部分は限られた空間となっていますが、そんな空間を逆手に取り照明に工夫を凝らしました。狭い共用部にはあえてダウンライトを設置せず、間接照明と自然光のみの落ち着きのある雰囲気を演出。照明器具の見えないミニマルで無駄のない共用部は隠れ家にふさわしい洗練された空間になっています。
サッシ突出枠

都市の中にひっそりと佇む“隠れ家”のような集合住宅を目指し、外壁とサッシの枠をわずかに突出させることで、平滑な面に繊細な凹凸のリズムを加えています。主張しすぎない陰影が時間や光の変化とともに表情を変え、建物にさりげない個性と奥行きを与えています。
計画地

東急世田谷線 松陰神社前 徒歩4分
周辺施設
買い物・飲食店
- クリエイトS・D 世田谷四丁目店 徒歩約1分
- セブン-イレブン 世田谷区役所前店 徒歩約1分
- ダイソー 世田谷4丁目店 徒歩約5分
- サミットストア松陰神社前店 徒歩約6分
レジャー・施設
- 世田谷区立世田谷図書館 徒歩約1分
- 若林公園 徒歩約3分
- パーソナルジム B-ZONE 世田谷 徒歩約6分
その他
- 世田谷区役所 徒歩約1分
- 世田谷総合クリニック 内科 徒歩約1分
- 大吉寺 徒歩約6分
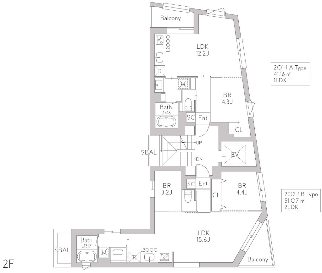
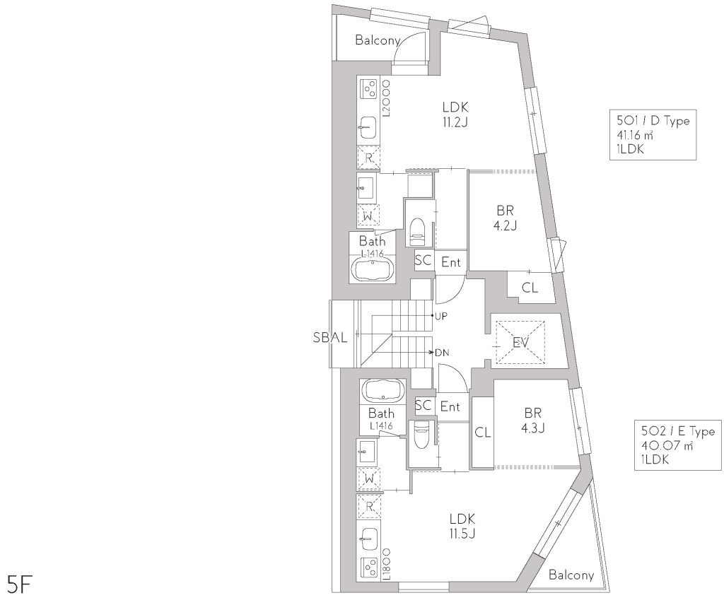
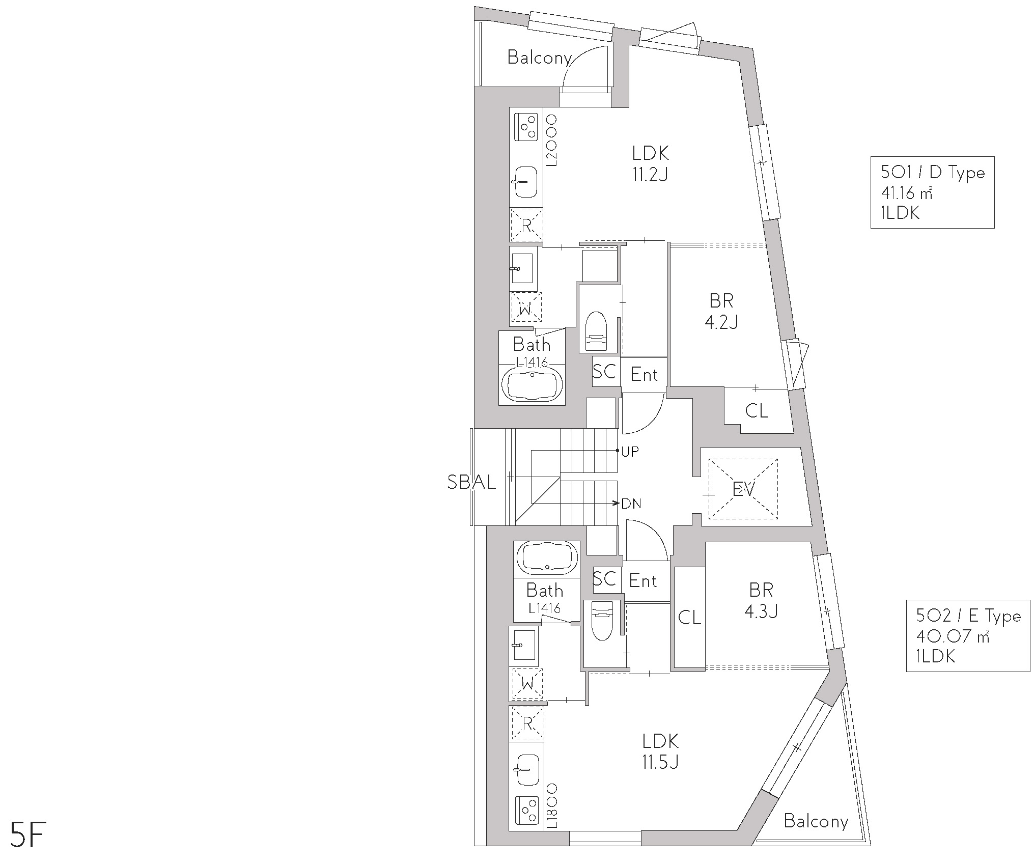
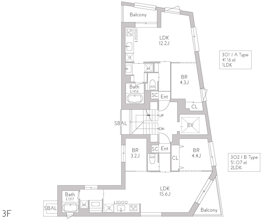
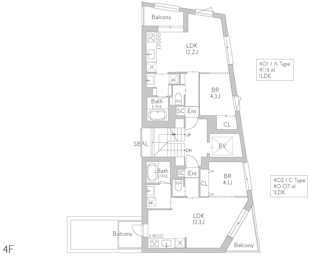
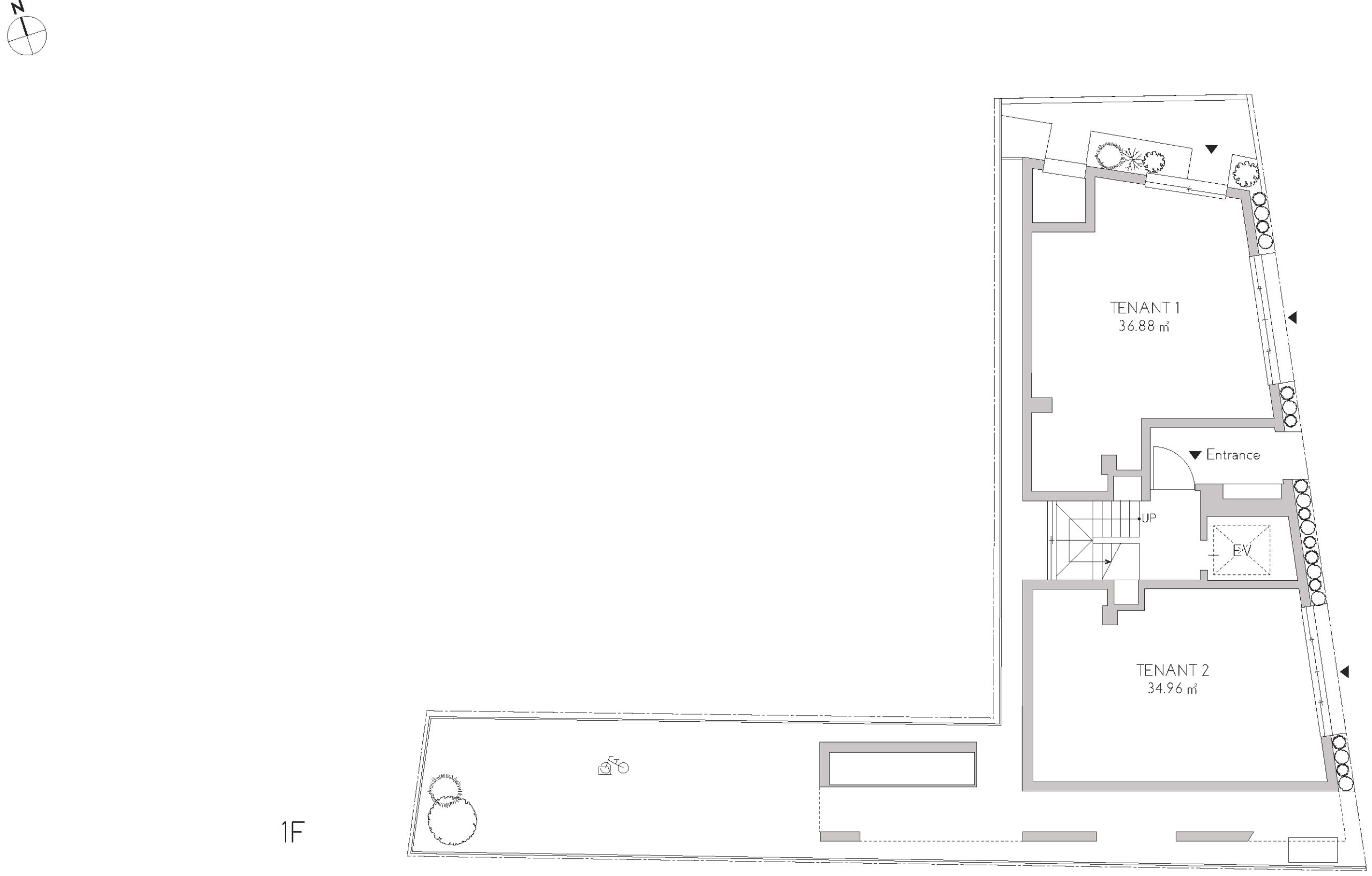
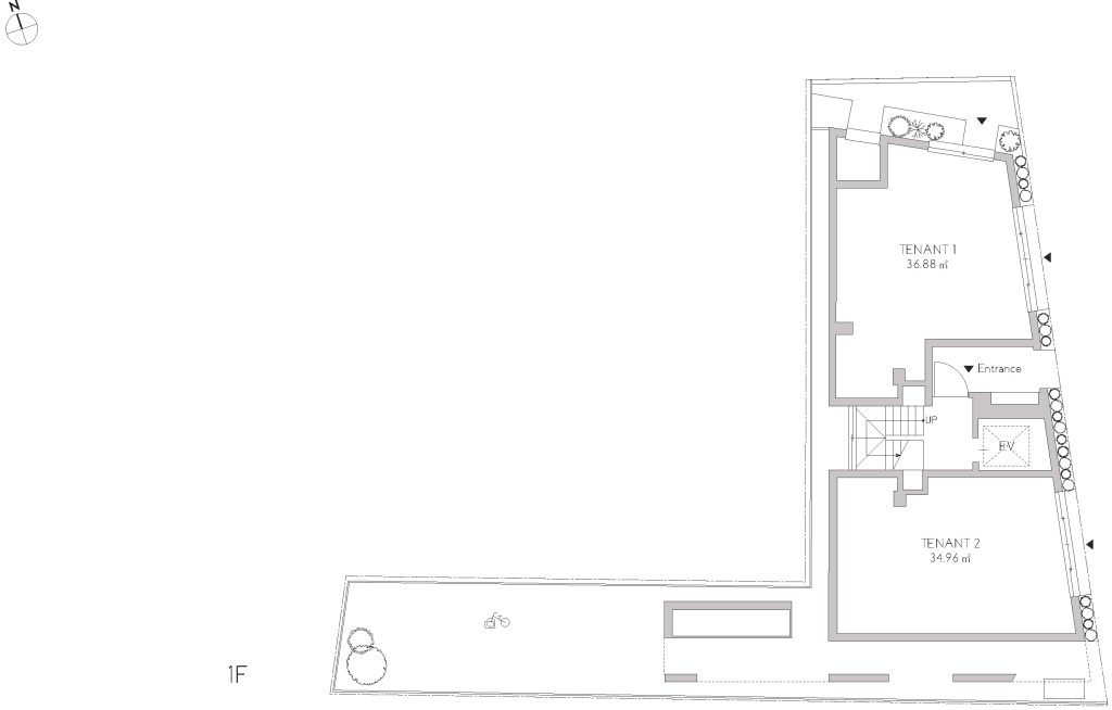
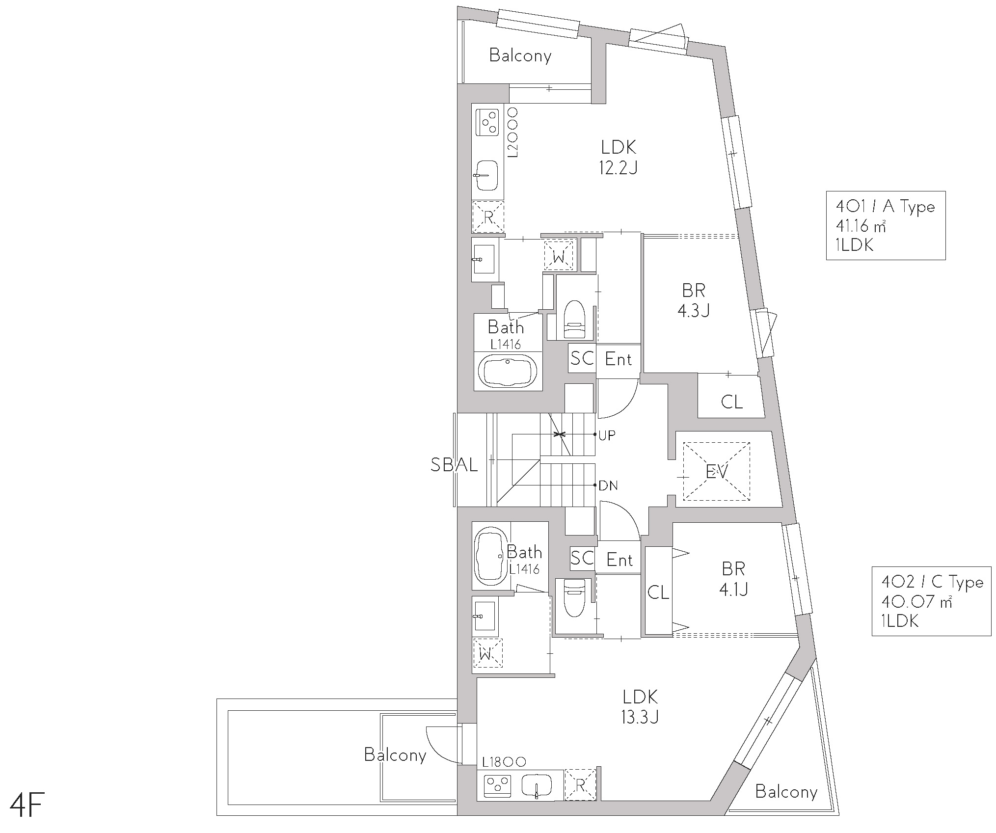
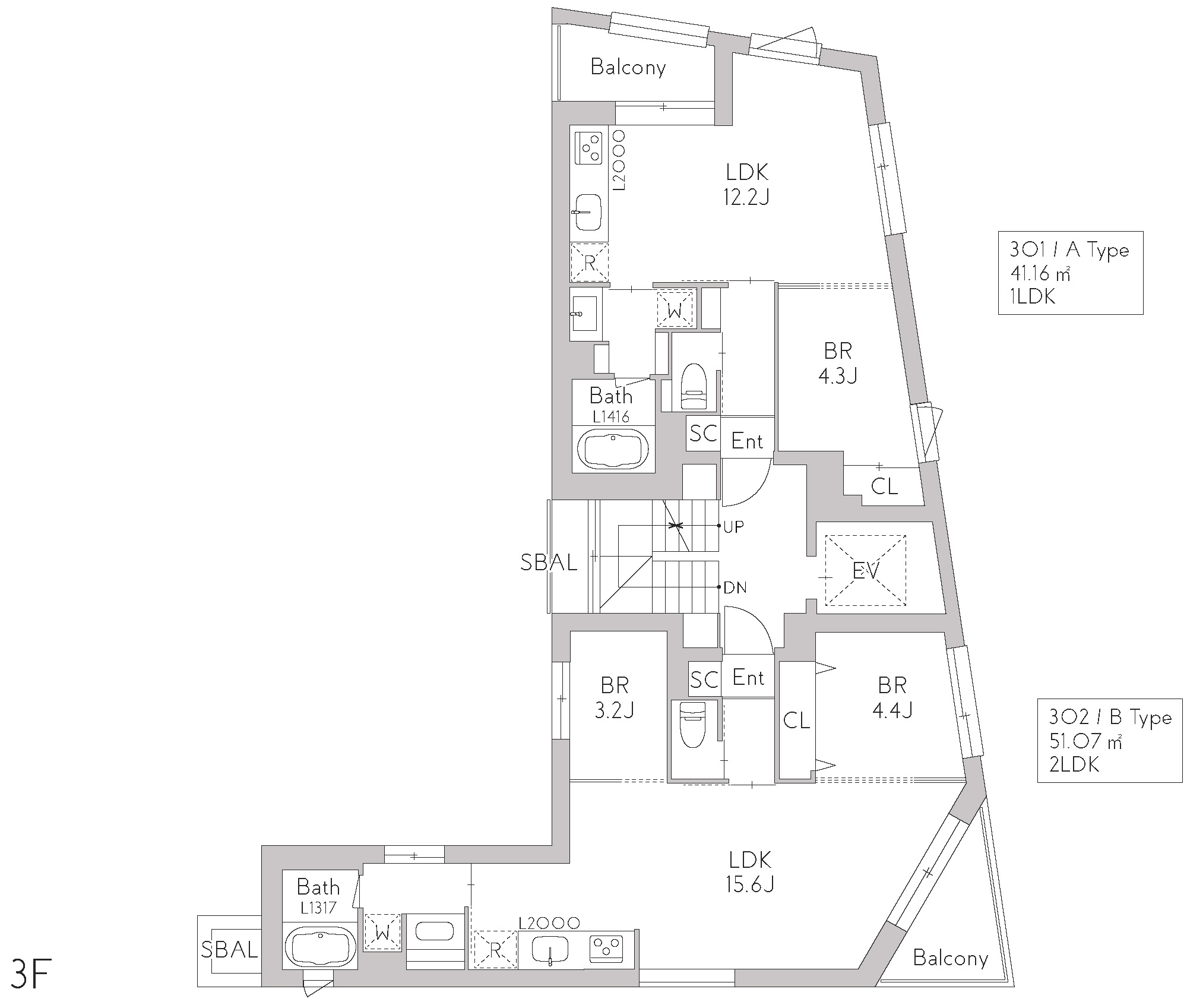
物件概要
- 物件名グランデュオ世田谷17
- 所在地東京都世田谷区世田谷4-20
- 敷地面積195.57㎡
- 土地権利所有権
- 用途地域第二種住居地域
- 指定建ぺい率60%
- 指定容積率300%
- 接道東側 10.98m/北側 4m
- 高度地区45m第三種高度地区
- 防火地域準防火地域
- 構造・規模鉄筋コンクリート造 地上5階建
- 延床面積532.37㎡
- 貸床面積418.76㎡
- 用途共同住宅/店舗
- 竣工年月2026年6月30日
- 総戸数8戸(共同住宅 )/ 2戸(店舗)
- 建築確認番号-
ARCHITECT
設計
フェイスネットワーク/建築デザイナー
隠れ家
本計画地は世田谷区 世田谷です。最寄り松陰神社前駅から徒歩4分、世田谷駅から徒歩5分の場所にあり、松陰神社前駅の周辺には「松陰神社商店街」があります。この商店街には落ち着きのあるカフェやバーなどが点在しており、仕事帰りに気分転換するのに良さそうなエリアになっています。そんな特性を持つ本計画地は、仕事帰りに一人で自分の時間を楽しみたい人に向いていると感じました。そこで今回は、そんな人が落ち着いて過ごせるような自分だけの「隠れ家」になるような集合住宅を目指しました。
隠れ家
本計画地は世田谷区 世田谷です。最寄り松陰神社前駅から徒歩4分、世田谷駅から徒歩5分の場所にあり、松陰神社前駅の周辺には「松陰神社商店街」があります。この商店街には落ち着きのあるカフェやバーなどが点在しており、仕事帰りに気分転換するのに良さそうなエリアになっています。そんな特性を持つ本計画地は、仕事帰りに一人で自分の時間を楽しみたい人に向いていると感じました。そこで今回は、そんな人が落ち着いて過ごせるような自分だけの「隠れ家」になるような集合住宅を目指しました。
本ページへの掲載内容は、計画段階の図面やコンセプトを基にしており、実際のものとは異なる可能性があります。
施工上の変更が生じた場合は、建物が完成した時点の状態を優先します。
方位に若干の差異がある可能性もありますので、ご了承ください。
物件に関するお問い合わせ
※当社開発物件は投資用一棟販売不動産であり、新築一棟RCマンション、新築RC戸建邸宅を販売しています。
※賃貸に関するお問い合わせの方は上のボタンよりご連絡ください