グランデュオ荻窪3

PROJECT

取り入れる

グランデュオ荻窪3

契約済

scroll

取り入れる

グランデュオ荻窪3

  • ZEH-M Oriented ZEH-M Oriented

所在地: 東京都杉並区上荻2-30Google MAP

2026.03.25完成予定

進捗度93

  • 設計中
  • 施工中
  • 完成

UPDATED INFO.

  • 2025.05.12グランデュオ荻窪3のプロジェクトページを公開しました
  • 2025.11.05CGを更新しました
  • 2026.01.13竣工予定日を更新しました

設計のこだわり

本計画地は杉並区荻窪です。最寄り荻窪駅から徒歩8分の場所にあり、 駅にはスーパーや飲食店が多く、便利ながらも計画地周辺は閑静な住宅街で落ち着きのある場所です。そこで、本計画では、都心の喧騒から離れ、体を休められる時間と空間を実現し、様々な癒し効果のあるものを多く取り入れる工夫をしました。

光と風を取り入れる

バルコニーをハンチ構造とすることで通常のバルコニーより多くの光を取り込むことができます。光を取り込むことだけに着目するのであれば、バルコニーのない窓が一番有効ですが、雨の日に窓を開けることはできません。本計画であれば、雨の日でも風の入れ替えができ、光も取り込むことができます。

四季を取り入れる

駅からエントランスまで道路に面している範囲に季節を感じられる植栽を多く計画することで、住む人が出入りするたびに植栽の横を通り季節の変化を楽しめるように計画しています。四季を感じることで癒し効果が生まれ、気持ちのいい生活を送ることができます。

木目調の軒裏

本計画では、軒裏に木調の塗装を施しています。ハンチ庇に塗装が施されているため、室内や前面道路から木を感じることができ、閑静な住宅街に馴染む外観になっています。

スチールパネル手摺

バルコニー手摺は通常の格子手摺ではなく、スチールパネルの手摺を採用しています。格子手摺に比べて斜視性の高い手摺なので、周囲からの視線を遮り、都心でありながらも、自分の時間を楽しめるよう工夫をしています。

植栽の緑を際立たせる色選定

カラーは植栽の緑を際立たせるブラウン、ベージュ系の色で統一し、マテリアルの質感も凹凸のある物や色ムラのあるものを選定することで、より自然空間に近い雰囲気になるよう計画しています。

計画地

JR 中央線 荻窪駅 徒歩約8分

周辺施設

買い物・飲食店

  • ファミリーマート 杉並上荻二丁目店 徒歩約2分
  • セブン-イレブン 荻窪天沼小南店 徒歩約7分
  • カフェ・ベローチェ 荻窪駅西口店 徒歩約7分
  • 西友荻窪店 徒歩約10分

レジャー・施設

  • 杉並公会堂 徒歩約5分
  • トキノサイクリングフィットネス 荻窪店 徒歩約5分
  • ANYTIME FITNESS上荻 徒歩約7分
  • ルミネ 荻窪 徒歩約10分

その他

  • 城西病院 徒歩約4分
  • 荻窪白山神社 荻窪支店徒歩約5分
  • りそな銀行 荻窪支店徒歩約8分
  • 荻窪四郵便局 徒歩約16分

この物件の賃貸情報に関する
お問い合わせはこちら

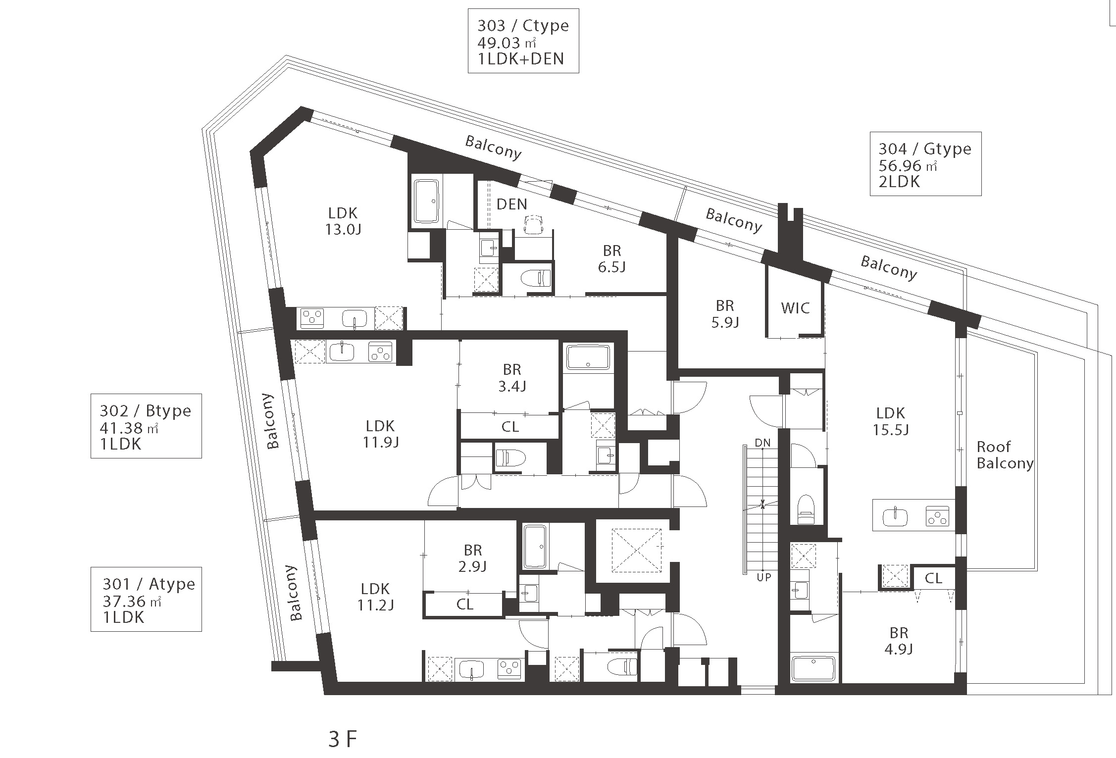
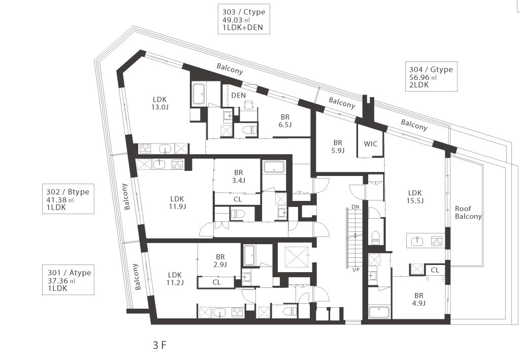
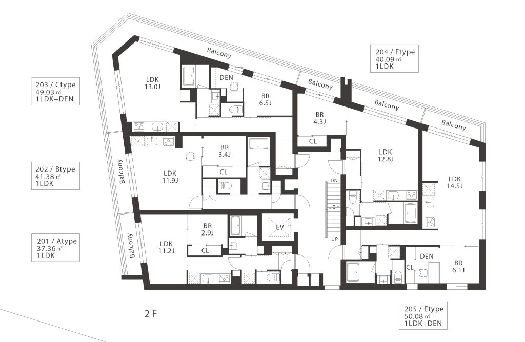
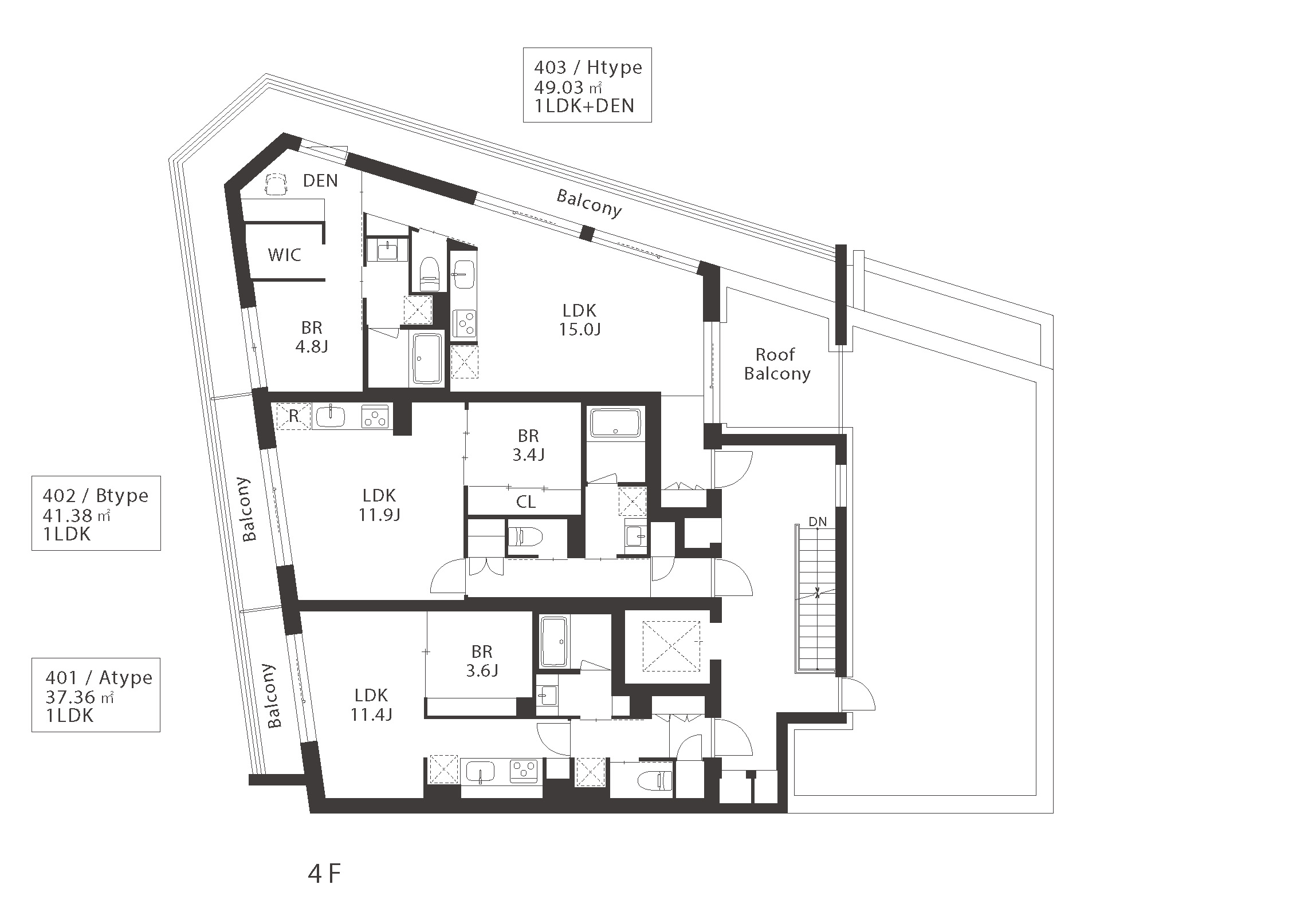
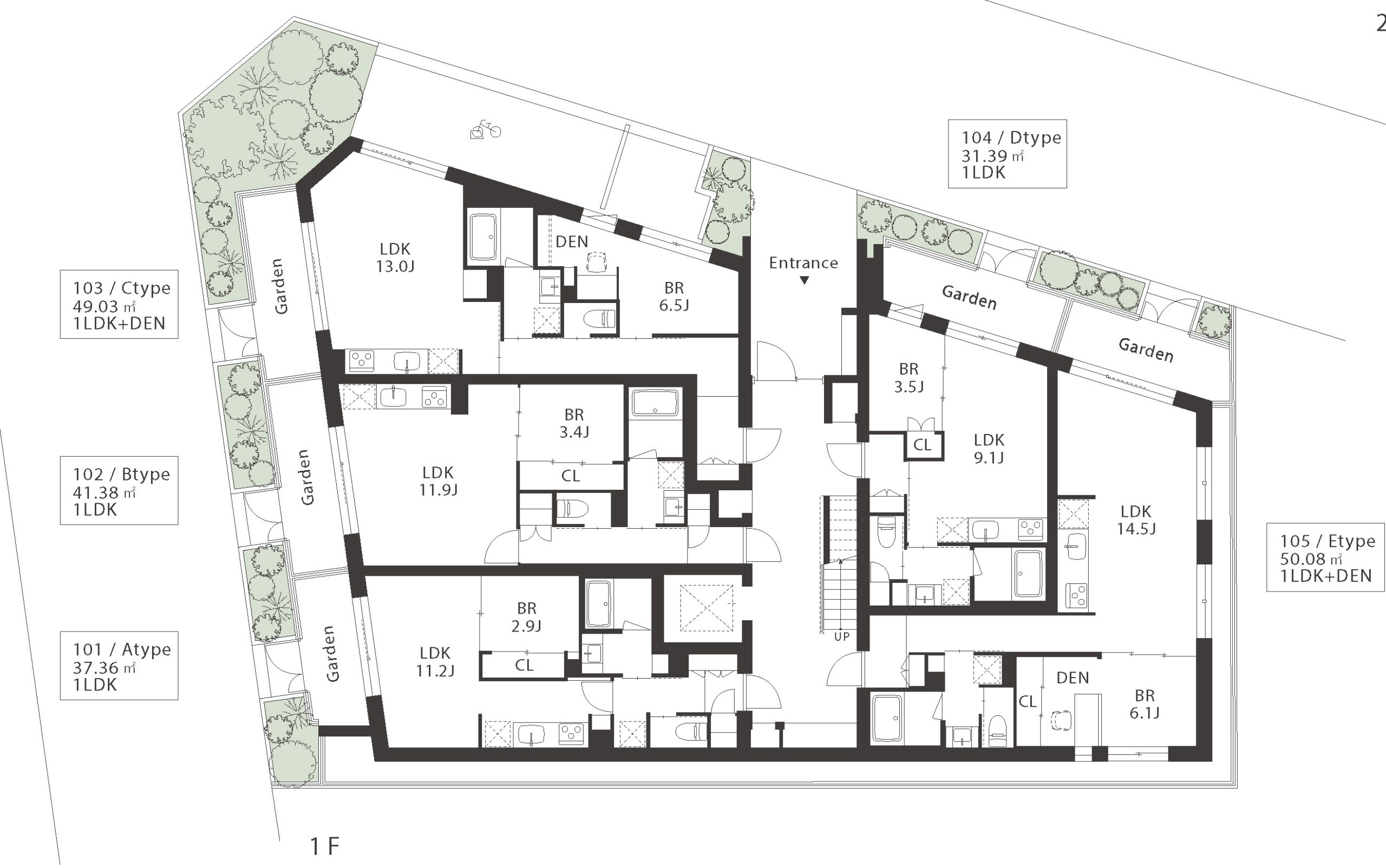
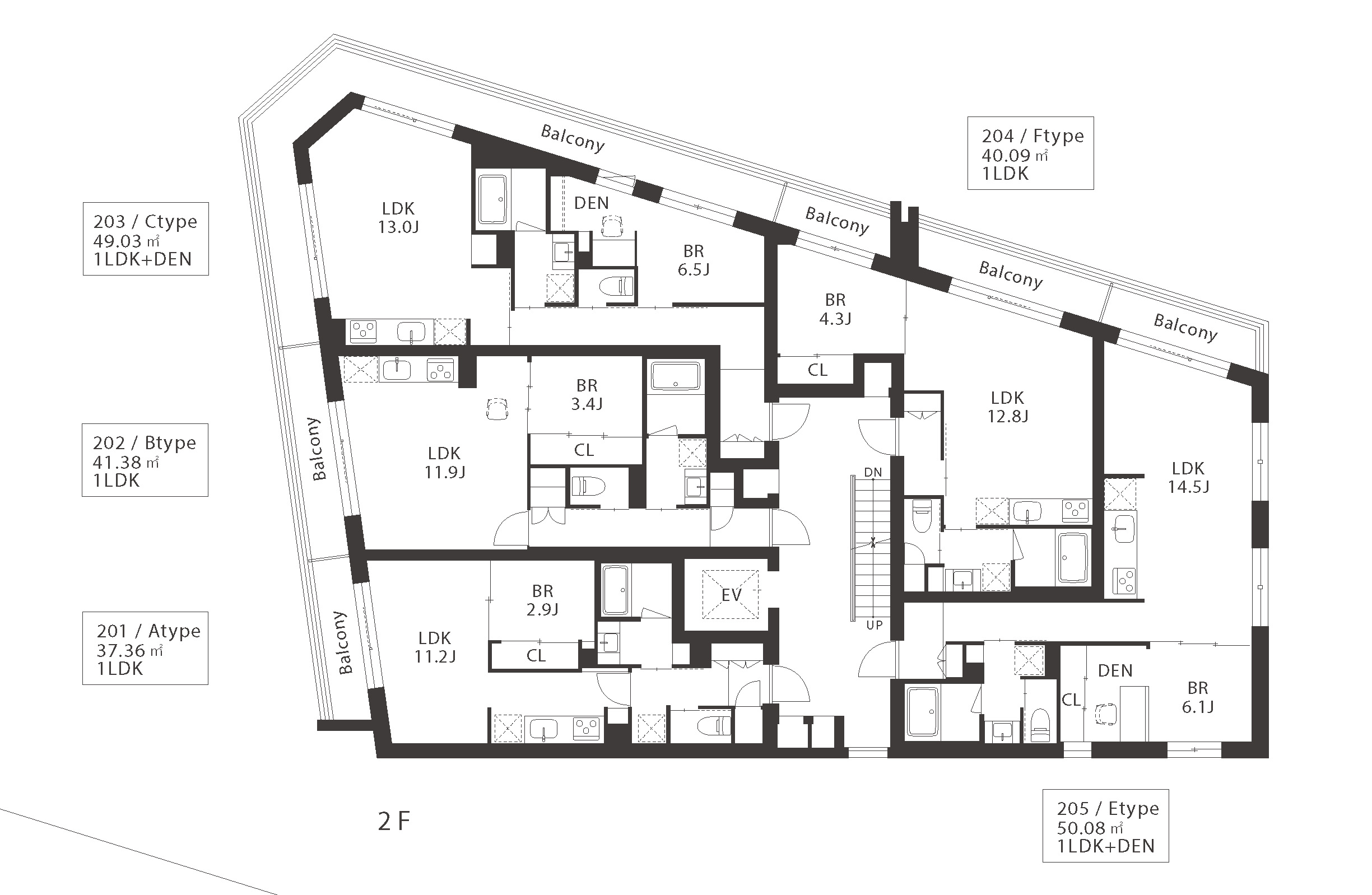
物件概要

  • 物件名グランデュオ荻窪3
  • 所在地東京都杉並区上荻2-30
  • 敷地面積375.25㎡
  • 土地権利所有権
  • 用途地域第二種中高層住居専用地域
  • 指定建ぺい率60%
  • 指定容積率200%
  • 接道西側 5.38m / 南側 5.45m
  • 高度地区第二種高度地区
  • 防火地域準防火地域
  • 構造・規模鉄筋コンクリート造 地上4階建
  • 延床面積864.58㎡
  • 貸床面積749.45㎡
  • 用途共同住宅
  • 竣工年月2026年3月25日予定
  • 総戸数17戸
  • 建築確認番号第2025確更建築CIAS00068号

ウェルビーイング

心と身体の健康促進

GOOD FOR HEALTH

心と身体の健康促進

心身ともに充実し、健康的になれる暮らしを送るために。

本計画のような緑豊かな環境は、心身の健康に良い影響を与えます。リラックス効果が期待でき、日常生活の中で自然と触れ合うことで、心の安定を図ることができます。

緑化・自然共生

BIOPHILIC DESIGN

緑化・自然共生

自然とのつながりを大切にし、育む。緑を感じる住空間に。

駅からエントランスまでの道路に面したエリアには、季節を感じられる豊かな植栽を多く取り入れており、自然とのふれあいが増すことで、ストレスの軽減効果が期待できます。

サステナブルデザイン

SUSTAINABLE

サステナブルデザイン

循環型経済を実現するためのデザイン。 経済的・社会的価値の創造。

植栽は景観を美しくし、居住空間の魅力を高めます。四季折々の変化を楽しむことができ、心地よい生活環境を提供します。

ARCHITECT

設計

志村 勝

Masaru Shimura

a.s.t atelier

略歴
1987~1990年 畠山設計事務所勤務 
1990~2000年 飛田設計工房勤務 
2000年 独立 
2006年 阿部、高野と共同事務所設立

a.s.t atelier

略歴
1987~1990年 畠山設計事務所勤務 
1990~2000年 飛田設計工房勤務 
2000年 独立 
2006年 阿部、高野と共同事務所設立

本ページへの掲載内容は、計画段階の図面やコンセプトを基にしており、実際のものとは異なる可能性があります。
施工上の変更が生じた場合は、建物が完成した時点の状態を優先します。
方位に若干の差異がある可能性もありますので、ご了承ください。

物件に関するお問い合わせ

※当社開発物件は投資用一棟販売不動産であり、新築一棟RCマンション、新築RC戸建邸宅を販売しています。
※賃貸に関するお問い合わせの方は上のボタンよりご連絡ください

Leave this empty:

必須お問い合わせ内容
必須お名前
必須フリガナ
任意郵便番号
必須都道府県
必須市区町村
必須番地・建物名
必須電話番号
必須メールアドレス
必須個人情報の取り扱いに
同意する

個人情報の取扱いについて
本フォームからお客様が記入・登録された個人情報は、資料送付・電子メール送信・電話連絡などの目的で利用・保管し、第三者に開示・提供することはありません。
詳しくはプライバシーポリシーをご覧ください。

設計のこだわり 計画地 周辺施設 物件概要 ウェルビーイング お問い合わせ

CONTACT US

フェイスネットワークではお客様のニーズに合わせたご相談の窓口をご用意しています。
お気軽にご相談・お問い合わせください。