唯一無二のペントハウス
THE GRANDUO
MEGUROHIGASHIGAOKA
施工中
一棟RCマンション
所在地: 東京都目黒区東が丘1丁目1番Google MAP
2027.03.19完成予定
進捗度50
- 設計中
- 施工中
- 完成
UPDATED INFO.
- 2025.06.05THE GRANDUO MEGUROHIGASHIGAOKAのプロジェクトページを公開しました
- 2025.10.17完成予定日を更新しました
- 2025.10.20物件概要を更新しました
設計のこだわり
土地のポテンシャルを最大限引き出し、唯一無二の空間を実現する
法規制の厳しい都市部において、机上の空論ではない本質的な空間を生み出すには、土地が持つポテンシャルを最大限に引き出すことが不可欠です。規制を「制約」ではなく「土地の個性」と捉え、法により生まれる見えない起伏を、合理的・有機的・造形的にデザインに落とし込むことで、創造性と経済合理性を両立させたプロジェクトを実現します。
今回は、住宅地という商業地に比べて高さ方向の法律的制限(一種高度・日影規制)が厳しく、垂直方向の自由度が少ない中で、スキップフロアとヴォールト天井を駆使し、伸びやかな吹き抜けと内外が一体となる曲面天井の最上階を構想しました。これを縦割りのテラスハウス形式で展開することで、全住戸に最上階の特別感を持たせ、すべてが「ペントハウス」となる住空間を創出しました。
唯一無二のペントハウス

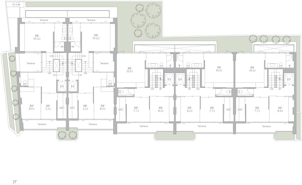
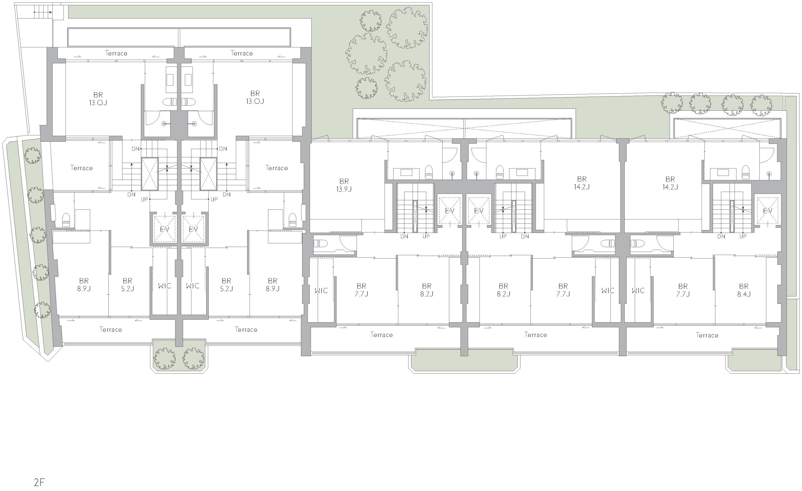
A・B住戸(奥行きの長いタイプ)には、中央にライトコート(中庭)を設け、スキップフロアのLDKが中庭を介して立体的に連続します。C・D・E住戸(間口の広いタイプ)には奥行きのあるテラスを設け、段差のあるLDKと緩やかに外部がつながる構成としています。
最高の空間を導き出す合理性

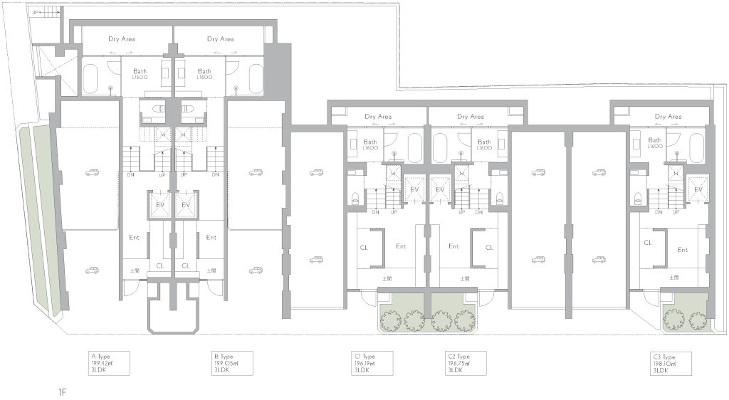
北側高度斜線の制限いっぱいに空間を展開するように、スキップフロアとヴォールト天井を立体的に構成。奥行きのある住戸にはライトコート(中庭)を配置しています。全体は3層・計6レベルのスキップフロア構成となっており、ストリートレベルのエントランスから半地下の浴室、2階の寝室、3階のLDKへと連続する柔軟な動線を実現。また、各戸にホームエレベーターを設置し、縦方向の移動も快適にサポートしています。
立体的に緑化されたファサード

既存敷地の高低差を活かしてデザインしたプランターを、上階のバルコニーにも展開し、立体的に緑化されたファサードを創出。傾斜を持たせた手摺壁には特殊な金属パネルを採用し、豪華さとソリッド感を演出します。
フレキシブルな空間

2 階は可動間仕切りを動かすことで1ベッドルームから3ベッドルームへと柔軟に変更でき、多様なライフスタイルに対応します。間仕切りを開放することで2階の間取りが変わるだけでなく、スキップフロアによって階段と吹抜けを介して上階のLDKとドラマチックに繋がります。
計画地
東急田園都市線 駒沢大学駅 徒歩約15分
周辺施設
買い物・飲食店
- サミット 野沢龍雲寺店 徒歩約5分
- 成城石井 柿の木坂店 徒歩約6分
- セブン-イレブン 世田谷野沢2丁目店 徒歩約8分
レジャー・施設
- 低酸素トレーニングジム AIRNIX野沢・世田谷 徒歩約3分
- 桜丘すみれば自然庭園 徒歩約6分
- 世田谷温泉 四季の湯 徒歩約6分
- ニコニコレンタカー 世田谷野沢店 徒歩約9分
- めぐろパーシモンホール 徒歩約12分
その他
- 目黒駒沢リハビリ整形外科クリニック 徒歩約1分
- 目黒区 東根住区センター 徒歩約5分
- 国立病院機構東京医療センター徒歩約11分
物件概要
- 物件名THE GRANDUO MEGUROHIGASHIGAOKA
- 所在地東京都目黒区東が丘1丁目1番
- 敷地面積749.62㎡
- 土地権利所有権
- 用途地域一種低層
- 指定建ぺい率60%
- 指定容積率150%
- 接道南側 5.45m/西側5.45m
- 高度地区第一種高度地区
- 防火地域準防火地域
- 構造・規模鉄筋コンクリート造 地上3階建
- 延床面積1227.58㎡
- 貸床面積989.51㎡
- 用途長屋
- 竣工年月2027年3月19日予定
- 総戸数5戸
- 建築確認番号 第25UDI1T建02777号
ARCHITECT
設計
井手孝太郎
Kotaro Ide
株式会社アールテクニック 代表取締役
https://www.artechnic.jp/artechnic-2022-1/top-3
1965 東京都世田谷区生まれ
1989 武蔵野美術大学建築学科卒業
1994 横河設計工房勤務
1994 アールテクニック一級建築士事務所設立
2011~2017 日本大学理工学部建築学科 非常勤講師
2019~2024 国士舘大学理工学部建築学系 非常勤講師
株式会社アールテクニック 代表取締役
https://www.artechnic.jp/artechnic-2022-1/top-3
1965 東京都世田谷区生まれ
1989 武蔵野美術大学建築学科卒業
1994 横河設計工房勤務
1994 アールテクニック一級建築士事務所設立
2011~2017 日本大学理工学部建築学科 非常勤講師
2019~2024 国士舘大学理工学部建築学系 非常勤講師
本ページへの掲載内容は、計画段階の図面やコンセプトを基にしており、実際のものとは異なる可能性があります。
施工上の変更が生じた場合は、建物が完成した時点の状態を優先します。
方位に若干の差異がある可能性もありますので、ご了承ください。
物件に関するお問い合わせ
※当社開発物件は投資用一棟販売不動産であり、新築一棟RCマンション、新築RC戸建邸宅を販売しています。
※賃貸に関するお問い合わせの方は上のボタンよりご連絡ください