

公益財団法人日本デザイン振興会が主催する「2025年度グッドデザイン賞」において、当社が手がけた「THE GRANDUO OKUSAWA UTAKATA」「クラリティア文京本郷」「クラリティア世田谷砧」「THE GRANDUO CHITOFUNA」「THE GRANDUO MINAMIAOYAMA」「クラリティア都立大学」「グランデュオ下北沢12」の7物件と「小さな緑を集めて100坪の森を創る [都市緑化の取り組み]」がグッドデザイン賞を受賞しました。
グッドデザイン賞とは
1957年創設のグッドデザイン商品選定制度を継承する、日本を代表するデザインの評価とプロモー ションの活動です。国内外の多くの企業や団体が参加する世界的なデザイン賞として、暮らしの質の向上を図るとともに、社会の課題やテーマの解決にデザインを活かすことを目的に、毎年実施されています。
01
THE GRANDUO MINAMIAOYAMA
本物件は、六本木交差点から約500m、東京ミッドタウンまで約200m、「乃木坂」駅に50mの距離に位置します。
"Cool Tokyo"を存分に楽しめるこの立地に、この建物でしか味わえない、入居者を感動させるゴージャスな空間を創り出しています。
審査委員の評価
都市の利便性と静かな居住性を両立させた、洗練された空間構成が特徴であり、都心での暮らしに求められる条件を深く考慮したプロジェクトである。建物内部では、リビングに段差を設けることで、天井高の違いによる空間の奥行きや変化を生み出している。これは、視点の高さに応じた空間の広がりを意識した設計であり、居住者にささやかながらも豊かな体験を提供する工夫となっている。また、ワンフロア1住戸という構成は、プライバシーの確保と静けさを重視したものであり、各階に設けられたバルコニーや最上階のテラスは、眺望を楽しみながら周囲の視線を適度に遮る役割を果たしている。さらに、室内の段差を外観にも反映させたファサードデザインは、建物全体に個性と動きを与えている。このプロジェクトは、過度な豪華さを追求するのではなく、都市生活における快適さと独自性を丁寧に形にした建築デザインであり、上質な暮らしを求める層にとって魅力的な選択肢となり得る。
02
THE GRANDUO OKUSAWA UTAKATA
本物件は、奥沢という地域性に目を向けながら地球環境への配慮を重視し、都市の中で自然に寄り添う暮らしが実現できる設計といたしました。
また、日常でアート作品に触れられる空間を設けるとともに、車好きの方に応えるガレージを備えています。
様々なライフスタイルに対応し、いつまでもここで暮らしたいと素直に思えるような、真に豊かな生活空間を目指しました。
審査委員の評価
奥沢という地域の持つ穏やかな環境と都市的な利便性を融合させた集合住宅である。敷地は呑川の河岸段丘上に位置し、目黒台への開けた眺望を活かした設計が特徴的である。各住戸には風景を絵画のように切り取るピクチャーウインドウが設けられ、自然とのつながりを感じられる空間が創出されている。住戸は6戸に限定されており、すべて異なるプランが採用されている。多方向に開口部を設けることで、光や風の移ろいを室内に取り込み、漆喰などの自然素材を用いた内装が、居住者に穏やかな心地よさをもたらす。ビルトインガレージやルーフトップテラスなど、屋内外の連続性を意識した構成も魅力の一つである。また、エントランスホールには東京藝大との連携により現代アートが常設展示されており、住民の日常のみならず、周囲の人々にも芸術に触れる機会が提供されている。短期的な効率を追求するのではなく、建築家との協働により長期的な視点で設計された本プロジェクトは、地域の資産価値向上にも寄与する可能性を秘めている。
03
THE GRANDUO CHITOFUNA
本物件は、「千歳船橋」駅から徒歩9分、小道で入り組んだ閑静な住宅街に位置しています。
この街のランドマークとなるような建物を目指し、シンプルさと多様性が同時に存在することをコンセプトに設計しました。
また、居住者同士のコミュニケーションを誘発する場として、建物の中心に3層吹き抜けの大階段を配置し、印象的で居心地の良い空間となるよう計画しています。
審査委員の評価
このプロジェクトは、千歳船橋駅から徒歩圏に位置する集合住宅として、街の新たな象徴となることを目指している。設計の中心には、3層吹き抜けの壮大な階段空間を据え、居住者同士の自然な交流を促す場として機能する。階段は全長20メートル、高さ8.4メートルのスケールを誇り、豊かな植栽とトップライトからの光が織りなす、開放感と快適性に満ちた空間である。煙突効果による自然換気も取り入れ、環境への配慮もされている。また、ガレージを生活空間に取り込んだ住戸や、土間アトリエ付きの部屋など、多様なライフスタイルに対応した提案がなされている。ガラス張りの車庫や引き戸の採用により、外部との視覚的なつながりを生み出し、都市との関係性を再構築している点も秀逸である。さらに、最上階には北側テラスを備えたラグジュアリーなペントハウスを配置し、安定した採光と眺望を確保しつつ、屋外キッチンやビューバスなど、上質な暮らしを演出する設備が整っている。全体として、シンプルさと多様性を巧みに融合させた設計は、周辺環境に新たな価値をもたらし、街の質を高める建築として高く評価されるべきである。
04
クラリティア文京本郷
本物件は都営三田線「春日」駅から徒歩3分の場所に建つ共同住宅です。
働き方改革が叫ばれる昨今、時間や場所にとらわれない働き方と暮らし方が求められています。
プライベートとパブリックがシームレス化している現状がある中で、住まいに求められる機能の多様化を広げるため、ただ住むだけではなく、新しい時代の間取りを提示できるような建築を目指しました。
審査委員の評価
都市における多様なライフスタイルに応える集合住宅として計画された建築である。文京区本郷という歴史と文化が色濃く残る地域に位置しており、住まいに求められる機能の拡張と柔軟性を意識した設計がなされている。本プロジェクトでは、全住戸に2面以上の採光とテラスを設けることで、室内外の連続性を高め、開放感のある住環境を創出している。また、折上げ天井や段差スラブなど、空間に変化をもたらす工夫が随所に施されており、居住者の快適性に配慮した設計が感じられる。敷地は、かつて上州高崎藩主の中屋敷であり、地域の歴史的背景を踏まえた植栽計画が特徴的である。右京山の地形や周辺の植生を参照しながら、建物と緑が調和する景観を形成しており、地域とのつながりが意識されている。全体として、住まいの機能性と地域性をバランスよく取り入れた建築であり、現代の都市生活における新しい住まいのあり方を提示している。過度な主張を避けつつも、丁寧な設計と環境への配慮が感じられる点において、評価に値するプロジェクトである。
05
クラリティア都立大学
本物件は3面路に面しており、多方面からの見え方が意識される街並みをつくる基点となるような中根エリアに位置しています。
地名にもなっている「根」とは、山の峰や尾根から平地へと続く斜面を指し、古くから住居に適した場所と言われています。
なお、5枚の壁を連続して配置することで、近隣からの視線を遮り充分なプライバシーを確保し、住まい手と近隣との程よい距離感を保ちます。
06
クラリティア世田谷砧
本物件は、祖師谷大蔵の街並みに馴染みながらも存在感のある外観といたしました。
雁行した共用廊下は、戸建て住宅に近い専有意識や各住戸間のプライバシー性を高めます。
また、インナーバルコニーがあることで周辺環境から距離をとる奥行きを与え、住まい手に落ち着きのある静謐な住環
審査委員の評価
世田谷区砧の落ち着いた住宅地に佇む、地上4階建・全19戸の賃貸集合住宅である。周辺の戸建住宅群との調和を意識した繊細かつ大胆なデザインが光る。本建築の最大の特徴は、三本の煉瓦仕上げの塔状ボリューム、奥行きを持たせたインナーバルコニー、そして雁行配置された共用廊下の三要素が、住空間に豊かな奥行きと静けさをもたらしている点にある。煉瓦塔はファサードにリズムと陰影を生み出し、前面道路からの視線を遮ることで、住戸のプライバシーを巧みに守っている。インナーバルコニーは隣接する住宅との間に適度な距離感を確保し、外部環境との緩やかな隔たりを演出している。さらに、雁行配置された共用廊下は、各住戸に戸建て住宅のような独立性をもたらし、居住者の専有感と安心感を高めている。これらの設計的工夫は、都市型集合住宅において希少な「静謐さ」と「個の尊重」を実現しており、建築としての完成度の高さと居住者への深い配慮が感じられる。周辺環境との調和を図りながらも、独自の空間性を創出するその姿勢は、都市住宅の新たな可能性を示す好例である。
07
グランデュオ下北沢12
本物件は、京王線「代田橋」駅から徒歩7分の代田エリアに位置し、代田橋・新代田・笹塚・下北沢の4駅、京王線・京王井の頭線・小田急小田原線の3路線が使用できる利便性の高い立地となっています。
外観は、コンクリート打ち放しとルーバーを組み合わせ、街のシンボルとなるよう設計いたしました。
08
小さな緑を集めて
100坪の森を創る
[都市緑化の取り組み]
[ POINT 01 ]
植栽の立体化と維持管理

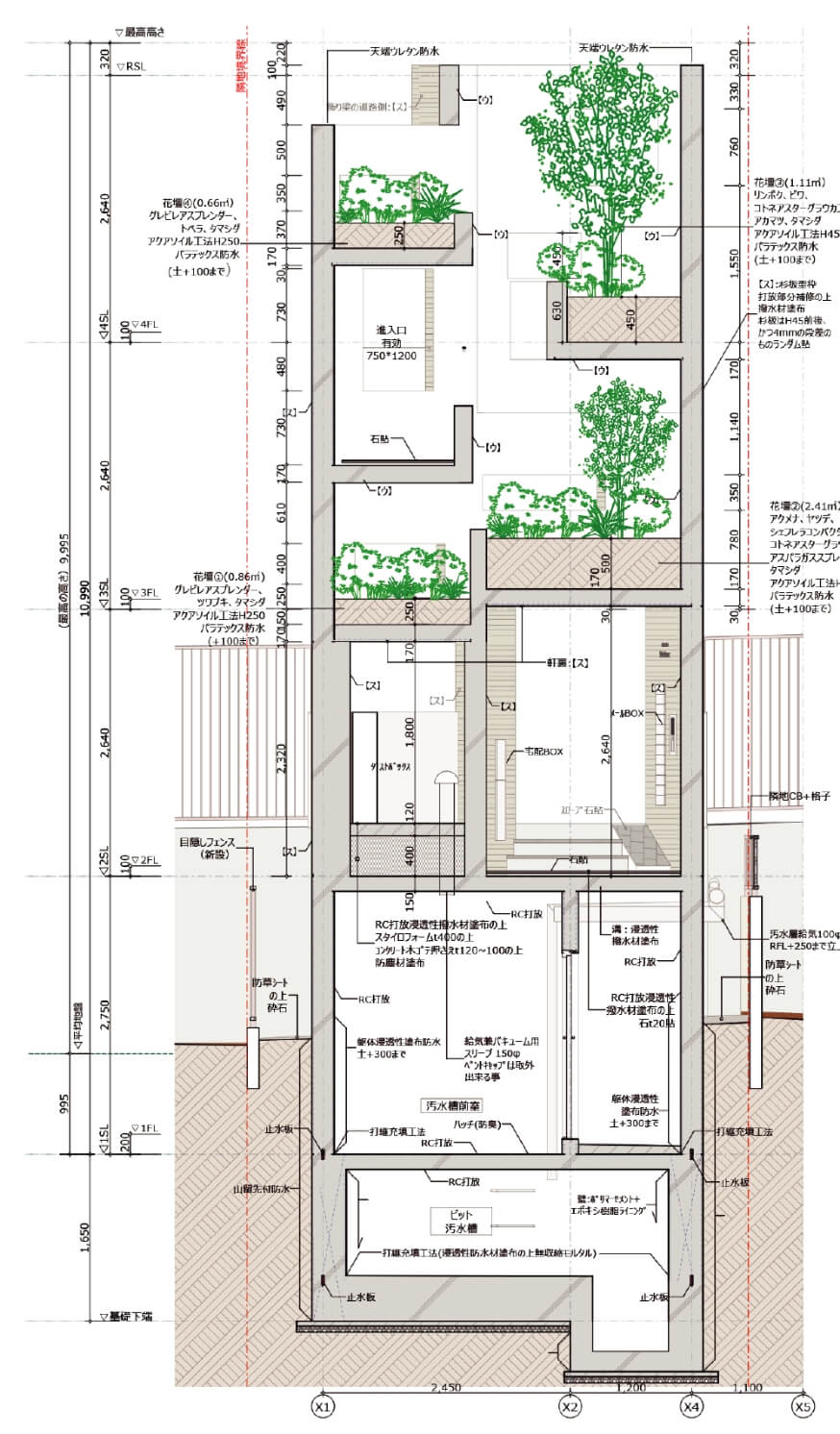
GranDuo下北沢4断面図
地表面だけでなく、上階にも壁面緑化やバルコニー・屋上にも植栽帯を設けた立体的な緑化を目指します。
建築が一つの小さな森のような存在となり、周辺環境に寄与し、街並みを形成するとともに、ヒートアイランドやゲリラ豪雨といった環境問題にも対処する小さな一歩を刻んでいきたいと考えます。
また、採用する樹種は、中木以上のものについては、武蔵野の在来種を必ず組み込み、生物の多様性を持続する取り組みとしています。また入居者にマンション内に植えられた植栽の種類を説明するパンフレットを配布し、緑のある暮らしの提案を行いながら、メンテナンスへの協力を周知する取り組みも2025年度よりスタートしました。
CASE1
GranDuo
Shimokitazawa
CASE2
GranDuo
Kamiuma
[ POINT 02 ]
住戸に緑の庭を取り込む

1階住戸には、専用庭を設け緑の庭と一体となる住戸を構成します。また、2階以上住戸にも、バルコニーと一体となった植栽帯やルーフバルコニーの屋上緑化を配置し、豊かな緑のある暮らしを提案します。通常バルコニーは専用使用する部分であり、植栽が置かれる場合、メンテナンスの手間がかかることが多いです。私たちフェイスネットワークは、マンション開発から入居者募集・ビル管理まで、ワンストップでサービスを提供するため、計画段階から設計・工事サイドとメンテナンス計画に配慮し、入居者への説明およびメンテナンスの案内も行うことで、専有部の植栽の維持管理をカバーしています。
-
L字の庭
-
ルーフバルコニーの屋上緑化
-
専用庭を有することで生活が外へと広がっていく
-
住戸内から庭までの広がりが感じられる
-
窓先空地をL字状に取ることで外周部の空間を豊かにする
-
2つの庭に囲まれる
[ POINT 03 ]
植栽帯を使った小さなダム
植栽地盤に採用する、アクアソイルは多孔質であり、一般土壌の3倍の保水力を有します。植栽帯に雨水系統を一部つなぐことで、ゲリラ豪雨時の排水をコントロールします。また地表面の植栽にも土壌をアクアソイルに置換し、レインガーデンとして治水効果を持たせました。(世田谷ダム構想:世田谷区土木事業担当部→世田谷区壱岐全世帯が300ℓの雨水タンクを設置した場合、13万㎥の貯留が可能)440ℓ/㎥の保水力があるアクアソイルにより、1プロジェクトあたり600ℓ相当の貯留を目指します。
[ POINT 04 ]
打ち水効果で街を冷やす
立体的な植栽帯部分に潅水装置を設置し、真夏日の午後に、集中的に潅水を行うことにより、保水力の高い植栽地盤の特性を生かし、潅水の気化熱による打ち水効果で建物本体と周辺環境の冷却を行います。
[ POINT 05 ]
小さな緑を集めて
100坪の森を創る

計画地の緑化条例に定められた基準面積を満たすだけでなく、それを超える緑地を年間100坪分創出していきます。物件敷地内の地上部分だけでは、十分な緑化面積を確保するのが難しいため、壁面緑化や屋上緑化も活用しながら、都市に新たな緑を加えていきます。
現在建築中の物件
[ POINT 06 ]
GREEN CHARITY
基準超過分1㎡あたり 1,500 円(事業主・設計者・植栽施工会社)を、
チャリティーとして、都市緑化を進める団体に寄付を行います。
審査委員の評価
立体的な建築化植栽は、緑化の多面的な効果を追求し、建築デザインに新たな展開を示している点が評価された。視覚的な効果にとどまらず、都市環境における治水効果やヒートアイランド抑制まで見据えた緑化は、地域社会への大きな貢献になるであろう。緑を飾りとして扱うのではなく、むしろ植栽を建築のデザインに融合させ、住人の暮らしに還元しようとする姿勢が重要な視点である。